EasyManua.ls Logo

Fujitsu ARHG09LLTA

Fujitsu ARHG09LLTA
413 pages
To Next Page IconTo Next Page
To Next Page IconTo Next Page
To Previous Page IconTo Previous Page
To Previous Page IconTo Previous Page
Loading...
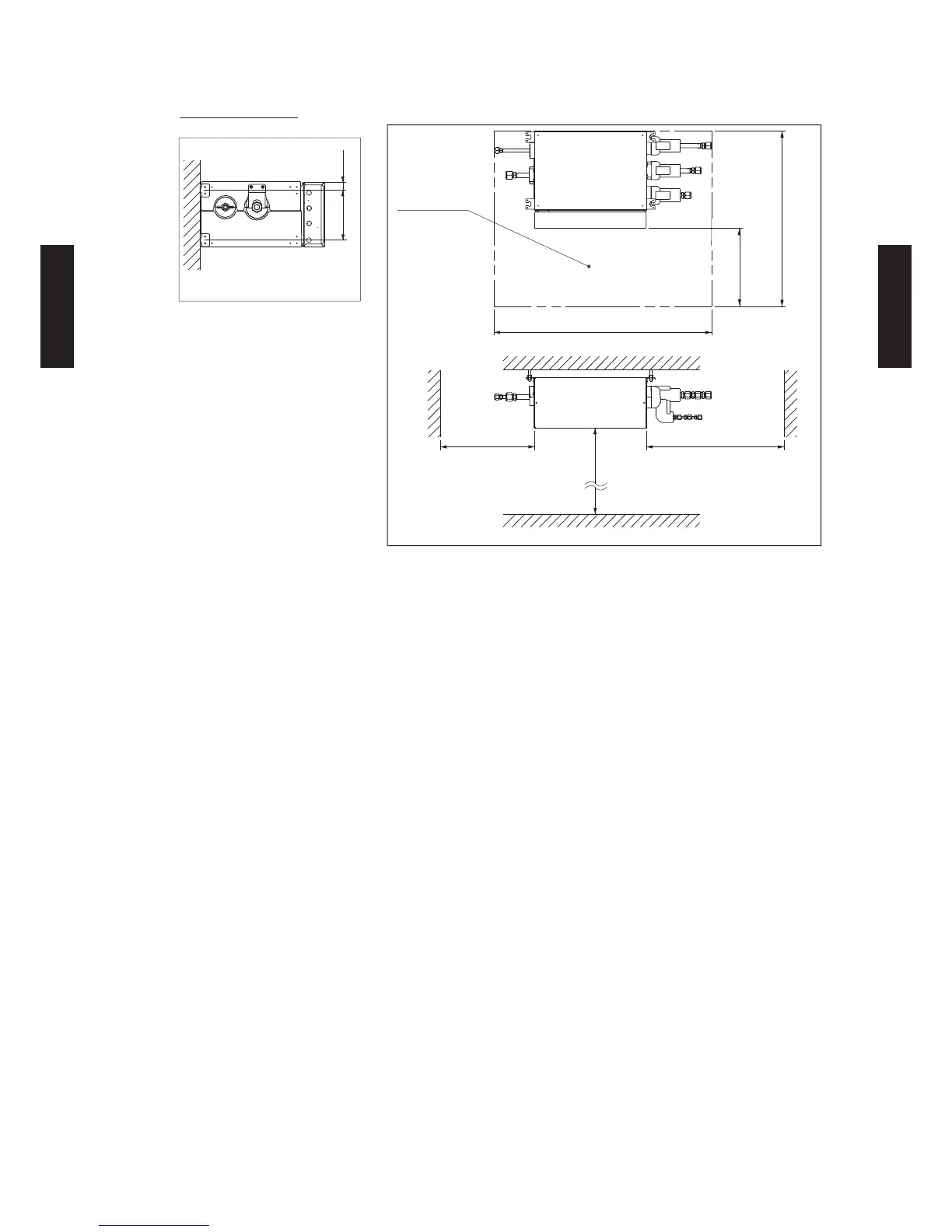
3. OUTDOOR UNIT & BRANCH BOX
Installation dimensions
Service access
850 or more
360 or more
1900 or more
530 or more
) ecaps ec i v r eS() ecaps ec i v r eS(
(Service space)
300 or more
700 or more
Wall installation
25
148
Floor
Unit : mm
- (03 - 09) -
OUTDOOR
UNITS
OUTDOOR
UNITS

Table of Contents

Related product manuals