EasyManua.ls Logo

Fujitsu General ARXG45KHTB

Fujitsu General ARXG45KHTB
154 pages
To Next Page IconTo Next Page
To Next Page IconTo Next Page
To Previous Page IconTo Previous Page
To Previous Page IconTo Previous Page
Loading...
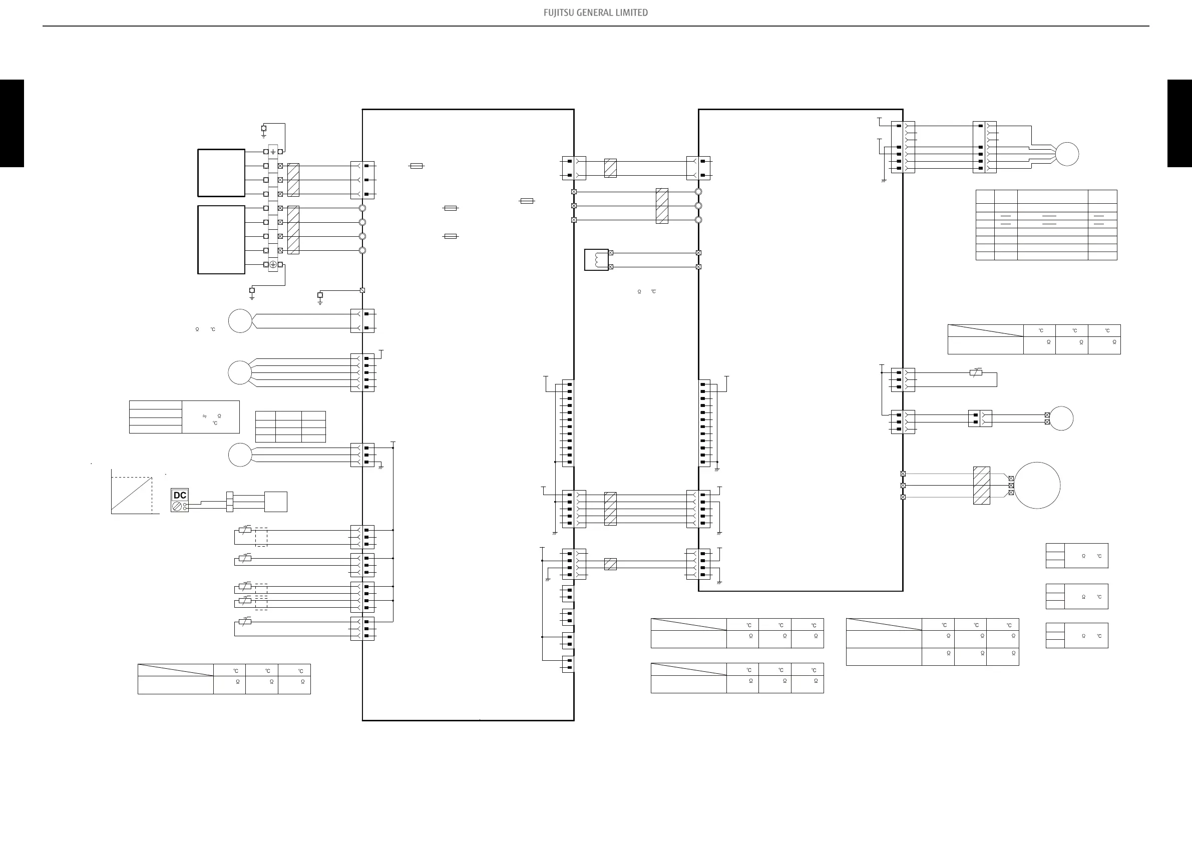
8-2. Models: AOHG45KRTA and AOHG54KRTA
UL1430 AWG24 WHITE
UL1430 AWG24 WHITE
UL1430 AWG24 WHITE
UL1430 AWG24 WHITE
UL1430 AWG24 WHITE
UL3271 AWG14 WHITE
UL3271 AWG14 WHITE
UL1015 AWG20 WHITE
UL1015 AWG20 WHITE
UL1015 AWG16 WHITE
UL1015 AWG16 RED
UL1015 AWG16 BLACK
UL1015 AWG20 RED
UL1015 AWG20 BLACK
UL1015 AWG20 WHITE
UL1015 AWG14 RED
UL1015 AWG14 WHITE
UL1015 AWG14 BLACK
UL1015 AWG14 BLUE
UL1015 AWG20 GREEN
BLACK
BLACK
RED
BLUE
ORANGE
YELLOW
WHITE
WHITE
RED
BLACK
BLACK
BLACK
BLACK
BLACK
BLACK
BLACK
BLACK
BLACK
BLACK
BLACK
UL1430 AWG24 WHITE
UL1430 AWG24 WHITE
UL3271 AWG14 WHITE
UL3271 AWG14 RED
UL3271 AWG14 BLACK
UL1430 AWG24 WHITE
UL1430 AWG24 WHITE UL1430 AWG22 WHITE
UL1430 AWG22 WHITE
UL1430 AWG22 WHITE
UL1430 AWG22 YELLOW
UL1430 AWG22 BROWN
UL1430 AWG22 BLACK
UL1430 AWG22 RED
BLACK
BLACK
BLACK
WHITE
YELLOW
BROWN
RED
12
11
10
9
8
7
6
5
4
3
2
1
12
11
10
9
8
7
6
5
4
3
2
1
5
4
3
2
1
4
3
2
1
3
1
3
1
7
6
5
4
1
7
6
5
4
1
3
2
1
3
2
1
2
1
5
4
3
2
1
2
1
4
3
2
1
2
1
2
1
2
1
C
5
4
3
2
1
3
2
1
3
2
1
4
3
2
1
3
2
1
3
2
1
3
1
5
3
1
DC5V-3
DC13V-3
DC5V-1
DC13V-3
DC13V-4
DC5V-1
DC15V-2
DC340V
DC5V-3
DC13V-3
DC13V-4
C
D
D
C
A
B
P205
B2 ( 8.0 ) B-PSIR-C1
RED
W200
L1-IN
W202
L3-IN
W201
L2-IN
P203
REACTOR-OUT
P204
REACTOR-IN
P600
B12B-PASK-1
WHITE
FLASH
P662
B05B-PASK-1
WHITE
P663
B04B-PASK-1
WHITE
P650
B5 ( 7-2.3 ) B-XASK-1-A
WHITE
P700
B03B-XAKK-1-A
BLACK
P770
B03B-XNISK-A-1
WHITE
P400
U
P402
W
P401
V
EMI FILTER
TRCB-25-15-12
2 TURNS
EMI FILTER
GRFC-8
3 TURNS
EMI FILTER
GRFC-8
1 TURN
EMI FILTER
GRFC-7
1 TURN
EMI FILTER
GRFC-7
3 TURNS
EMI FILTER
TRCB-25-15-12
1 TURN
EMI FILTER
GRFC-8
1 TURN
UL1015 AWG20 GREEN
W101
L1-IN
W103
L3-IN
W102
L2-IN
W104
N-IN
P109
E
UL1015 AWG14 GREEN
P20
B03B-XASK-1-A
WHITE
P30
B05B-PLISK-1
WHITE
P10
B03B-PASK-1
WHITE
P1
B03B-PLIEK-1
BLUE
P15
B04B-PLIRK-1
RED
P5
B03B-PLISK-1
WHITE
P60
B2P3-VH-B
WHITE
P108
B3 ( 8.0 ) B-PSILE-1
BLUE
P661
B04B-PASK-1
WHITE
P660
B05B-PASK-1
WHITE
P580
B02B-XAYK-1-A
YELLOW
PA580
B02B-XAMK-1-A
GREEN
P590
B02B-XAKK-1-A
BLACK
PA590
B02B-XAEK-1-A
BLUE
P710
B12B-PASK-1
WHITE
FLASH / EEPROM
P104
L1-OUT
P106
L3-OUT
P105
L2-OUT
P107
B2 ( 8.0 ) B-PSIR-C1
RED
EX. IN1
EX. IN2
EX. OUT1
EX. OUT2
GRAY MARK
RED MARK
BROWN MARK
HIGH PRESSURE SENSOR
EXPANSION VALVE COIL 1
THERMISTOR ( COM. TEMP. )
THERMISTOR ( PIPE MID. TEMP. )
THERMISTOR ( PIPE OUT TEMP. )
THERMISTOR ( OUTDOOR TEMP. )
THERMISTOR ( DISCHARGE TEMP. )
THERMISTOR ( HEATSINK TEMP. )
HIGH PRESSURE SWITCH
COMPRESSOR
DC FAN MOTOR 1
FM
HP
SW1
CM
4WV
EEV.1
PRES.
SENSOR
HI
TERMINAL
F102
10A
AC250V
F100
30A
AC500V
F101
30A
AC500V
F104
10A
AC250V
1
2
3
L1
L2
L3
N
INDOOR UNIT
1P2W AC230V
50Hz
POWER SOURCE
3P4W AC400V
50Hz
TRANSISTOR PCB
36 model : K17PW-1900SUE-TR1-SV
45 model : K17PW-1902SUE-TR1-SV
54 model : K17PW-1901HUE-TR1-SV
INVERTER ASSEMBLY
36 model : EZ-0190HUE
45 model : EZ-0193HUE
54 model : EZ-0191HUE
1
3
4
5
6
Pin No.
Terminal
code
Vm
GND
Vcc
Vsp
FG
Function of terminal
Revolution pulse output
Speed control voltage input
Control power voltage input
GND
Motor power voltage input
Lead wire
color
Red
Black
White
Yellow
Brown
2
7
P650 DC Fan Motor
1(Red) - 2(Blue)
1(Red) - 3(Orange)
1(Red) - 4(Yellow)
1(Red) - 5(White)
P30 Expansion Valve Coil
46.0
(20 )
Recommended Drive Condition
Unipolar Drive, 1-2 Phase Excitation.
Coil resistance
4-WAY VALVE COIL
DC Resistance 1,970
(20 )
U-V
V-W
U-W
Compressor
Winding Resistance
36 model
2.164
(25 )
U-V
V-W
U-W
54 model
1.570
(20 )
REACTOR
3.01mH 10A
DC Resistance 132.0 m
(25 )
Pin No.
Wiring and coloring
1
3
2
Signal Color
Vcc
Vout
GND
Red
White
Black
With the connector connected to the Main PCB,
measure the voltage between P20 : 2 - 3 of the Main PCB
P20
P High pressure sensor
1
RED
WHITE
BLACK
+
-
3
2
Characteristics of pressure sensor
4.5
5.0
0.5
0
Output [DCV]
Pressure [MPa]
S
High pressure sensor
P700
Thermistor Characteristics.
Thermistor ( Heatsink temp. )
0.33 k
0.12 k
0.08 k
4.12 V
4.62 V 4.75 V
Thermistor
Temperature
(20 ) (30 )
( 0 )
P10 Thermistor Characteristics.
0 20
30
Thermistor
Thermistor ( Compressor temp. )
168.60 k
0.36 V
Temperature
62.55 k
0.86 V
40.01 k
1.23 V
P1 Thermistor Characteristics.
0 20
30
Thermistor
Thermistor ( Pipe-mid. temp. )
16.05 k
1.14 V
Temperature
5.98 k
2.21 V
3.84 k
2.77 V
Thermistor ( Discharge temp. )
P15 Thermistor Characteristics.
0 20
30
Thermistor
Thermistor ( Pipe temp. )
Temperature
16.05 k
1.14 V
5.98 k
2.21 V
3.84 k
2.77 V
168.60 k
0.36 V
62.55 k
0.86 V
40.01 k
1.23 V
P5 Thermistor Characteristics.
0 20
30
Thermistor
Thermistor ( Outdoor temp. )
35.21 k
2.61 V
Temperature
12.64 k
3.76 V
7.97 k
4.14 V
AC
U-V
V-W
U-W
45 model
1.742
(20 )
MAIN PCB
36 model : G36KQTA (Y) - A02-SV
45 model : G45KQTA (Y) - A02-SV
54 model : G54KQTA (Y) - A02-SV
8-2. Models: AOHG45KRTA and AOHG54KRTA - (02-18) - 8. PC board diagrams
TECHNICAL DATA
AND PARTS LIST
TECHNICAL DATA
AND PARTS LIST

Table of Contents

Related product manuals