EasyManua.ls Logo

Fujitsu General ARXG45KHTB - Dimensions

Fujitsu General ARXG45KHTB
154 pages
Print Icon
To Next Page IconTo Next Page
To Next Page IconTo Next Page
To Previous Page IconTo Previous Page
To Previous Page IconTo Previous Page
Loading...
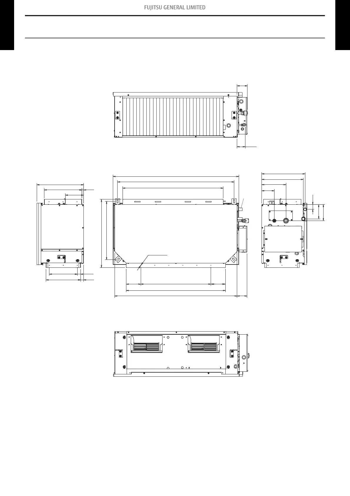
2. Dimensions
2-1. Indoor unit
¢ Models: ARXG45KHTB and ARXG54KHTB
Unit: mm
Front view
Top view
Side view (L)
Side view (R)
Rear view
P5
×
120 = 600
585
85
P120
×
2 = 240
108
208
356
371
1,080
1,000
862
126
1,050
851
125
295
26
28
155
14
324
400
123
41
500
139
12-
Φ
3
Drain
port
71
88
2-1. Indoor unit - (01-3) - 2. Dimensions
GENERAL
INFORMATION
GENERAL
INFORMATION

Table of Contents

Related product manuals