EasyManua.ls Logo

FULTON J Series - Page 10

FULTON J Series
88 pages
Print Icon
To Next Page IconTo Next Page
To Next Page IconTo Next Page
To Previous Page IconTo Previous Page
To Previous Page IconTo Previous Page
Loading...
J OIL-E-08 2008
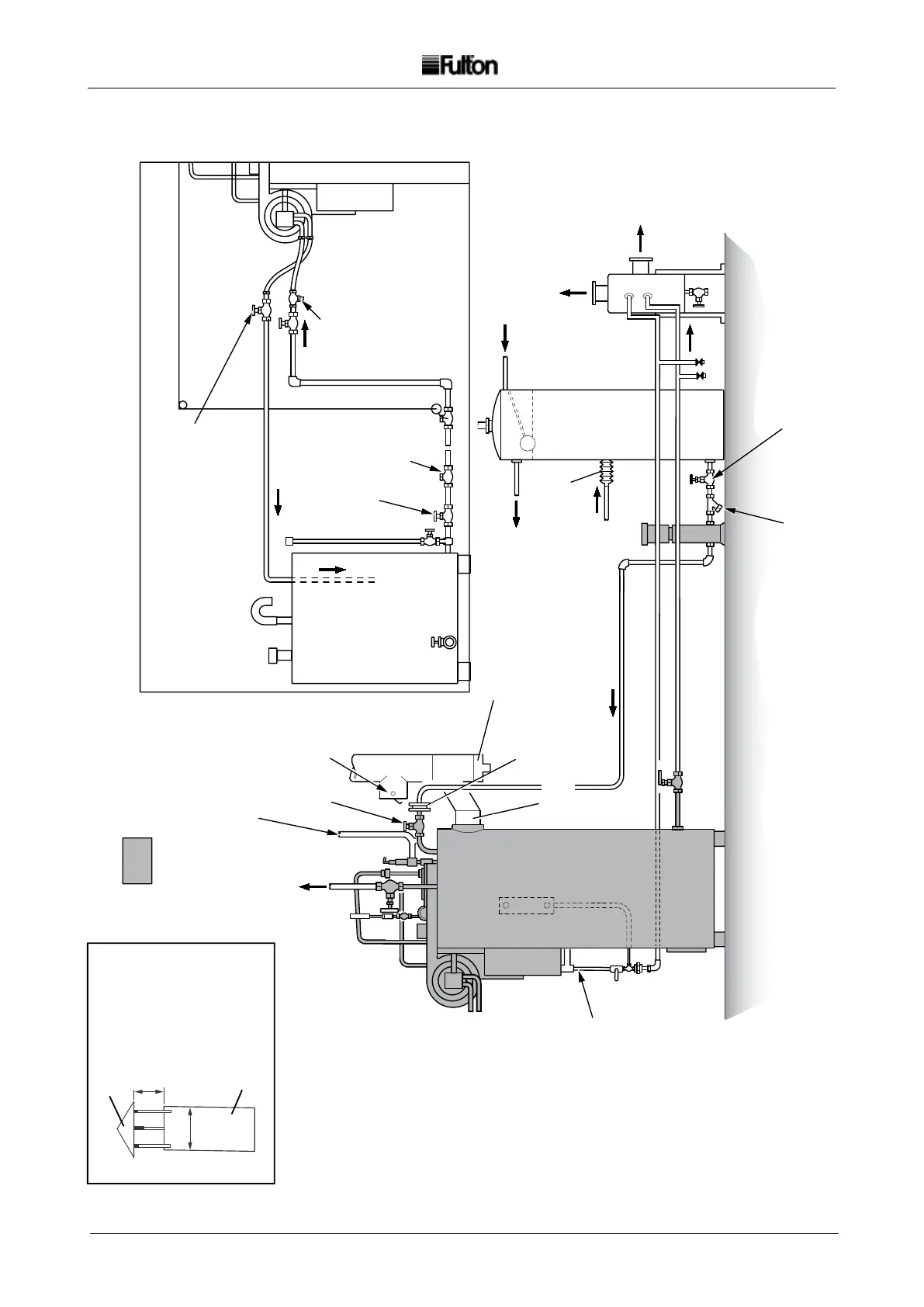
FIG. 3 TYPICAL INSTALLATION
5
STANDARD BOILER
TRIM SUPPLIED
WHEN ORDERING
THE BOILER
STEAM SUPPL Y
PIPE SAFETY VA LVE
TO SAFE AREA, FITTING
UNIONS AND DRAIN
DRAUGHT
STABILISER
(WHERE
FITTED)
WA TER
COLUM N
BLOWDOWN
LINE
BOILER BLOWDOWN
VA LVE
CLEANOU T
DOOR
FEED WA TER
CHECK VA LVE
FLUE
SPIGOT
CONDENS ATE RETURN
FLEXIBLE LINK
OVERFLOW
MAKE-U P SUPPL Y
FEED WA TER
PUMP
NOTE: A BREAK TANK MA Y
BE REQUIRED CHECK TH E
LOCA L WA TER AUTHORITY
BYE-LAW S
OVERFLOW
TO DRAIN
DRAIN
STAINLESS
STEEL
TANK
SET
ISOLATING
VA LVE
STRAINER
FU LTON
BLOWDOWN
SEP ARA TO R
CONNECTIONS TO OIL STORAGE T ANK
OIL FEED
LINE
OIL FILTER
(METAL CART RIDGE)
FIT AN ISOLATING VA LVE IN
OIL RETURN LINE ONLY
IF OIL TANK OR PIPE WORK
IS ABOVE BURNER LEVEL
VEN T
FILL
OIL RETURN LINE
SIGHT GLASS
ISOLATING
VA LVE
CHECK
VA LVE
SLUDG E
COCK
BALL
VA LVE
FIRE VA LVE LINE
Cowl
Flue
D = Diameter of flue
H = 1.5 X D
H
D
2
2

Other manuals for FULTON J Series

Related product manuals