EasyManua.ls Logo

FULTON PHW 500 - Fulton Ph Neutralizing Kit Without Pump; Field Connections for Condensate Drain to Ph Neutralization Tank

FULTON PHW 500
84 pages
Print Icon
To Next Page IconTo Next Page
To Next Page IconTo Next Page
To Previous Page IconTo Previous Page
To Previous Page IconTo Previous Page
Loading...
Questions? Call (315) 298-5121, or visit us online at www.fulton.com
SECTION 2 PHW-IOM-2013-0214 INSTALLATION
2-13
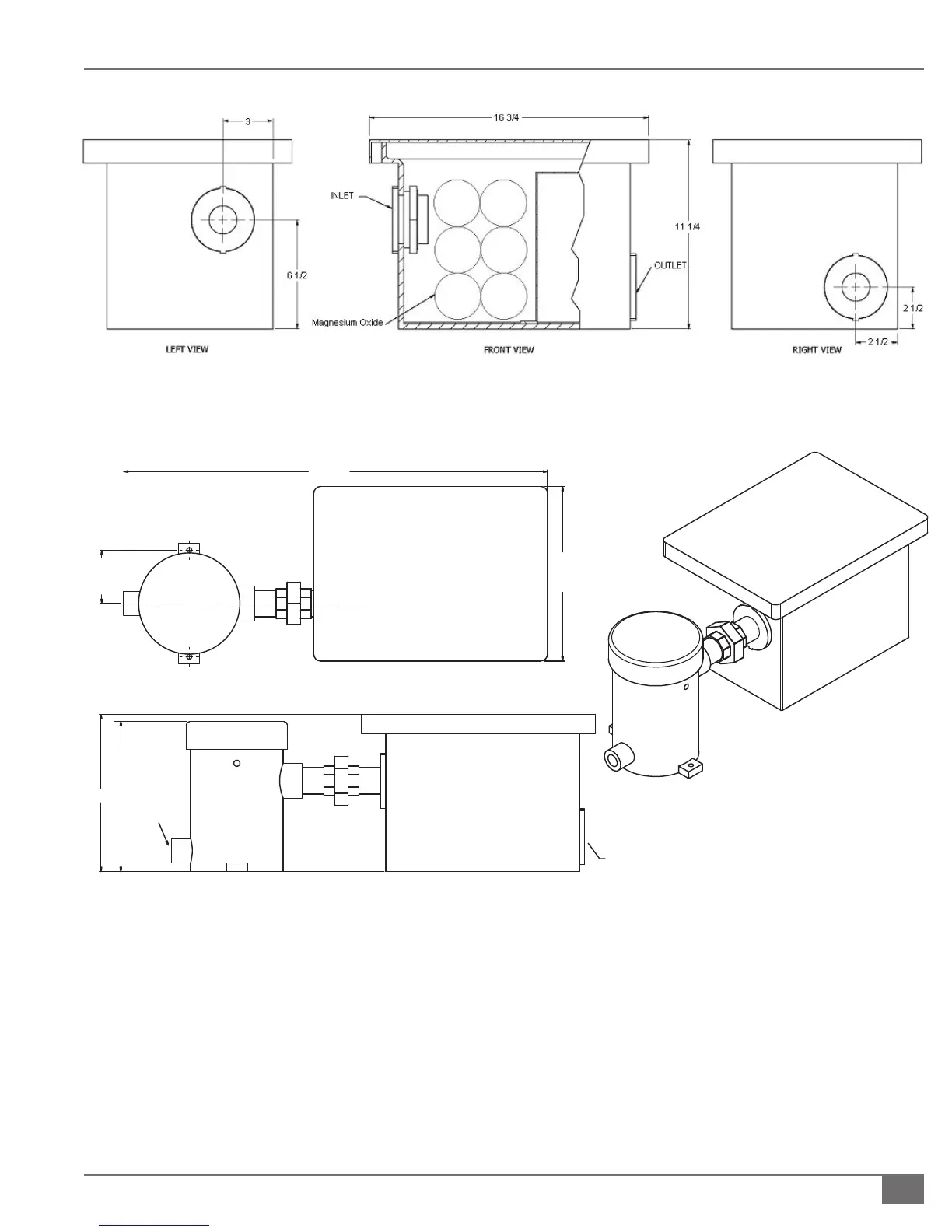
FIGURE 8 - FULTON PH NEUTRALIZING KIT (WITHOUT PUMP)
FIGURE 9 - FIELD CONNECTIONS FOR CONDENSATE DRAIN TO PH NEUTRALIZATION TANK
TOP VIEW
30 3/8
[771]
12 1/2
[318]
3 13/16
[97]
(TYP.)
FRONT VIEW
1 1/2" PLASTIC FITTING
CONNECTION TO DRAIN
1" NPT
CONNECTION
TO BOILER
10 3/4
[273]
11 1/4
[286]
ISOMETRIC VIEW

Table of Contents

Related product manuals