EasyManua.ls Logo

FUNAI 31A-664 - Block Diagrams

FUNAI 31A-664
55 pages
Print Icon
To Next Page IconTo Next Page
To Next Page IconTo Next Page
To Previous Page IconTo Previous Page
To Previous Page IconTo Previous Page
Loading...
1-9-1
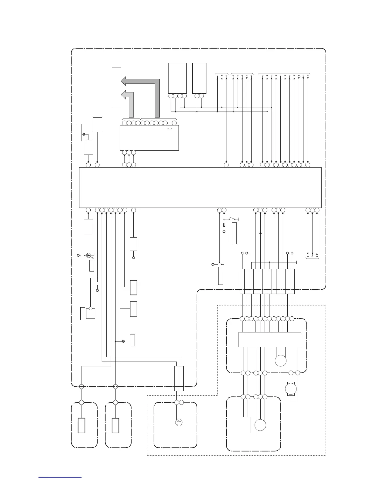
BLOCK DIAGRAMS
Servo / System Control Block Diagram
HM456BLS
MLOADING
MOTOR
CONTROL
HEAD
CN504
ACE HEAD ASSEMBLY
MAIN CBA
KEY- 2
C-CONT
C-FG
D-PFG
ST-S
T-REEL
C-F/R
KEY- 1REMOCON-IN
CTL(+)
RESET
REC-SAF-SW
PG-DELAY
CTL(-)
D-V-SYNC
D-REC-H
RF-SW
H-A-SW
C-ROTA
END-S
14
90
87
94
95
76
10
4
80
34
78
2
13
15
18
33
16
31
8
7
RS501
REMOTE
SENSOR
LM-FWD/REV
81
D-CONT77
(DECK ASSEMBLY)
T-REEL
Q501
RESET
Q503
S-REEL79
SW-POINT
AL+5V
VR501
TIMER+5V
S-REEL
PS503
TP506
IIC-BUS SDA
IIC-BUS SDA
IIC-BUS SCL
A-MUTE-H
IIC-BUS SDA
IIC-BUS SCL
Hi-Fi-H-SW
A-MODE
A-MUTE-H
Hi-Fi-H-SW
A-MODE
H-A-COMP
17
V-ENV
6
P-ON-H
C-POW-SW
P-ON-H
C-POW-SW
P-DOWN-L
67
66
86
P-DOWN-L
C-SYNC
58
SW506
TO
VIDEO BLOCK
TO
Hi-Fi AUDIO
BLOCK
TO
AUDIO BLOCK
SDA
SDA
SCL
SCL
TU701(TUNER UNIT)
IC503 (MEMORY)
72
71
32
19
83
IIC-BUS SCL
D-V-SYNC
D-REC-H
RF-SW
H-A-SW
C-ROTA
IIC-BUS SDA
DAVN-L
56
DAVN-L
H-A-COMP
V-ENV
C-SYNC
IIC-BUS SCL
3
5
SDA
SCL
12
11
LD-SW9
AL+12V/+20.5V
P-ON+15V
AL+5V
AL+5V
SW507
AL+12V
P-ON+5V
LD-SW
AL+5V
D502
S-LED
TO
POWER
SUPPLY
BLOCK
LINE-MUTE
KEY
SWITCH
KEY
SWITCH
TP507
SENS-INH
IC561
(LED DISPLAY)
IC501
(SERVO/SYSTEM CONTROL)
DRV-DATA
DRV-STB
DRV-CLK
DRV-DATA
DRV-STB
DRV-CLK
FP562
LED DISPLAY
D1
D2
D3
D4
23
22
21
28
2
1
68
69
70
20
LINE-MUTE
28
5
6
CN502
12 P-ON+15V
11
AL+12V(2)
10 GND
9
D-PFG
8
D-CONT
7
LM-FWD/REV
6
GND
5
C-CONT
4
C-F/R
3
C-FG
2
P-ON+5V
1
AL+12V/+20.5V
SENSOR CBA
SENSOR CBA
END-S
ST-S
Q504
Q505
REC-SAFETY
END-S
CL504
2 CTL(+)
1 CTL(-)
a
f
j
b
c
d
11
16
14
13
e
12
17
7
CYLINDER ASSEMBLY
DRUM
MOTOR
PG
SENSOR
M
CAPSTAN MOTOR
M
CAPSTAN
MOTOR
MOTOR
DRIVE
CIRCUIT

Related product manuals