EasyManua.ls Logo

GE GTW330ASK_WW

GE GTW330ASK_WW
71 pages
To Next Page IconTo Next Page
To Next Page IconTo Next Page
To Previous Page IconTo Previous Page
To Previous Page IconTo Previous Page
Loading...
– 67 –
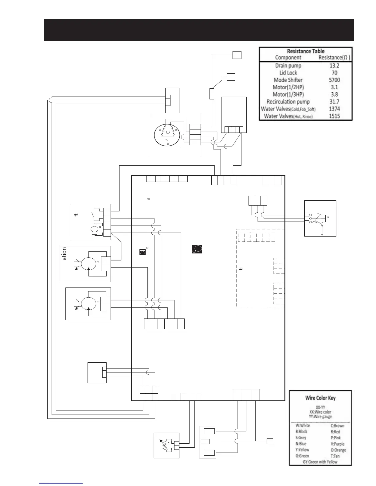
Schematics / Wiring Diagrams
(Continued Next Page)
14
Fuse
Overload
51
Start
Capacitor
Main Motor
Splice
Backsplash Cover
Ground
Chasis Ground
Thermistor
1
Speed Sense
13
MAIN BOARD
Connector loca ons
MODELS 6XX ONLY
J514
J513J511
13
J513
J514B
1
6
19
1
4
1
14
6
3
6
1
3
J701
J602
J101
J512
J511
J615
Drain Pump
1
Mode Shi er
Motor/Switch
1
Recircul
Pump
Lid Ground
G-18
G-18
GY-18
B_RBBD-18
B_SMTH-18
B_RBBD-18
B_SMTH-18
GY-18
GEA2
Connector
178
V-22
V-22
Y-22
R-22
Y-22
O-18
C-18
N-18
O-18
N-18
C-18
V-20
W-20
V-20
W-20
C-20
N-20
T-20
R-20
R-20
C-20
T-20
S-20
C-20
4
1
C
-
2
0
N-20
S-20
Y-18
W-18
C-18
W-18
C-18
Y-18
GY-18
GY-18
GY-16
GY-16
W-18
W
-
1
8
Y-18
Y
-
1
8
GY
-
16
GY-16
Y-20
Lid Lock Asm
13
striker
R-20
V-20
Y-20
R-20
V-20
W-24
W-24
W-24
W-24
R-22
Posi ve common
-5V
CLK
COM
COM
COM
COM
COM
COM
Diagnos c
LED
3.1
3.1
LINE
NEUTRAL
GND EARTH
Pressure sensor
Line
Lock input
Switch input
31.7
10000
5700
70
13.2
Thermistor 5VDC
Isolated common

Related product manuals