EasyManua.ls Logo

GE MGI09CAB3 - Mounting Plate Dimensions

GE MGI09CAB3
Print Icon
To Next Page IconTo Next Page
To Next Page IconTo Next Page
To Previous Page IconTo Previous Page
To Previous Page IconTo Previous Page
Loading...
100
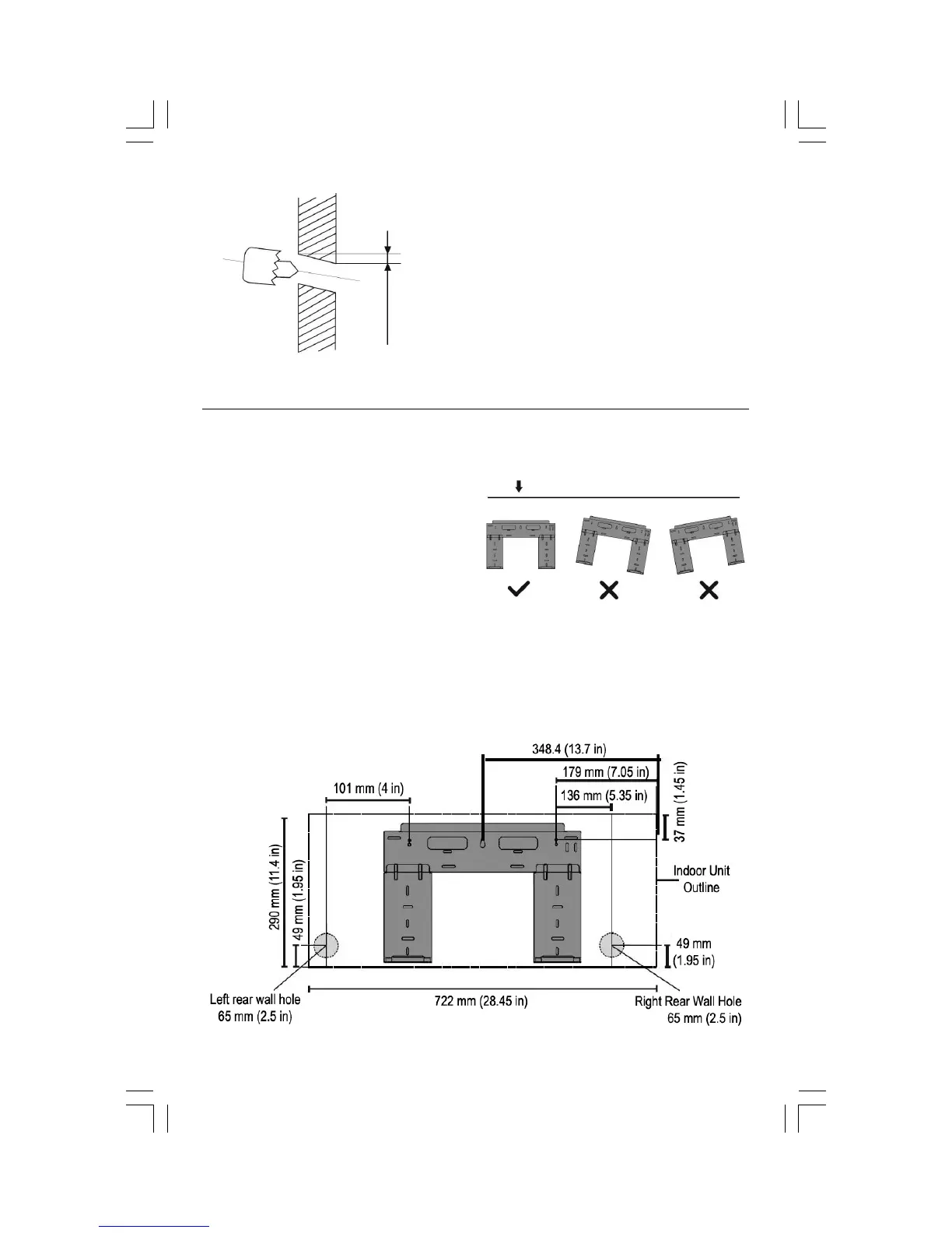
Mounting plate dimensions
Indoor Outdoor
Wall
5 to 7 mm
(0.2 to 0.3 in)
Fig. 3.2
Different models have different mounting
plates. In order to ensure that you have
ample room to mount the indoor unit, the
diagrams on this section show different
types of mounting plates along with the fol-
lowing dimensions:
• Width of mounting plate.
• Height of mounting plate.
• Width of indoor unit relative to plate.
• Height of indoor unit relative to plate.
• Recommended position of wall hole (both
to the left and right of mounting plate).
• Relative distances between screw holes.
Correct orientation of mounting plate
Model A

Table of Contents

Related product manuals