EasyManua.ls Logo

GE MGI09CAB3 - Dimensiones de la Placa de Montaje

GE MGI09CAB3
Print Icon
To Next Page IconTo Next Page
To Next Page IconTo Next Page
To Previous Page IconTo Previous Page
To Previous Page IconTo Previous Page
Loading...
39
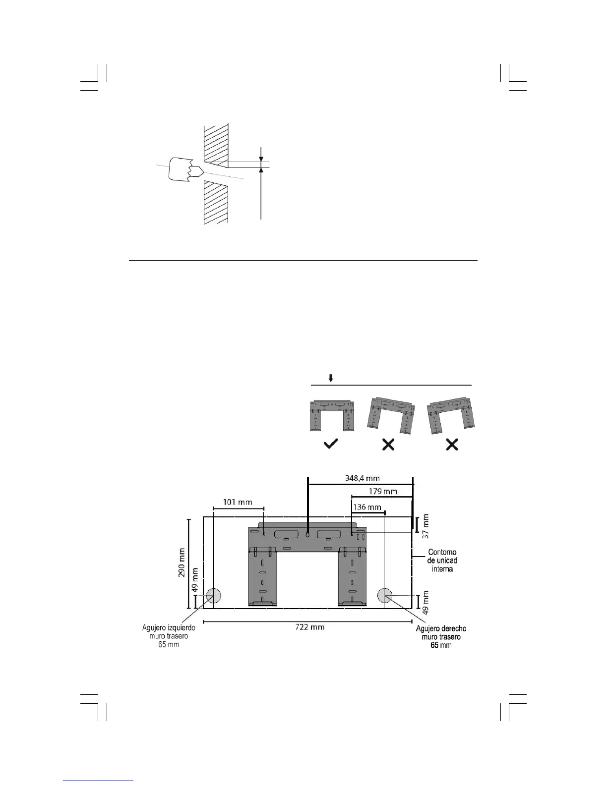
Dimensiones de la placa de montaje
Interior Exterior
Muro
5 a 7 mm
Fig. 3.2
Los diferentes modelos usan placas de mon-
taje diferentes. Para asegurarse de que us-
ted tiene espacio suficiente para montar la
unidad interna, las ilustraciones de esta sec-
ción muestran las diferentes placas de mon-
taje y sus dimensiones:
• Ancho de la placa de montaje.
• Alto de la placa de montaje.
• Ancho de la unidad interna en relación con
la placa.
• Alto de la unidad interna en relación con la
placa.
Orientación correcta de la placa de
montaje
• Posición recomendada del agujero en el
muro (ya sea a la izquierda o derecha de la
placa de montaje).
• Distancias relativas entre los agujeros de
los tornillos.
Modelo A

Table of Contents

Related product manuals