EasyManua.ls Logo

GE P442 - Page 582

GE P442
622 pages
To Next Page IconTo Next Page
To Next Page IconTo Next Page
To Previous Page IconTo Previous Page
To Previous Page IconTo Previous Page
Loading...
P44x/EN IN/H
b6
Installation
(IN) 14
-24 MiCOM P40 Agile
P442, P444
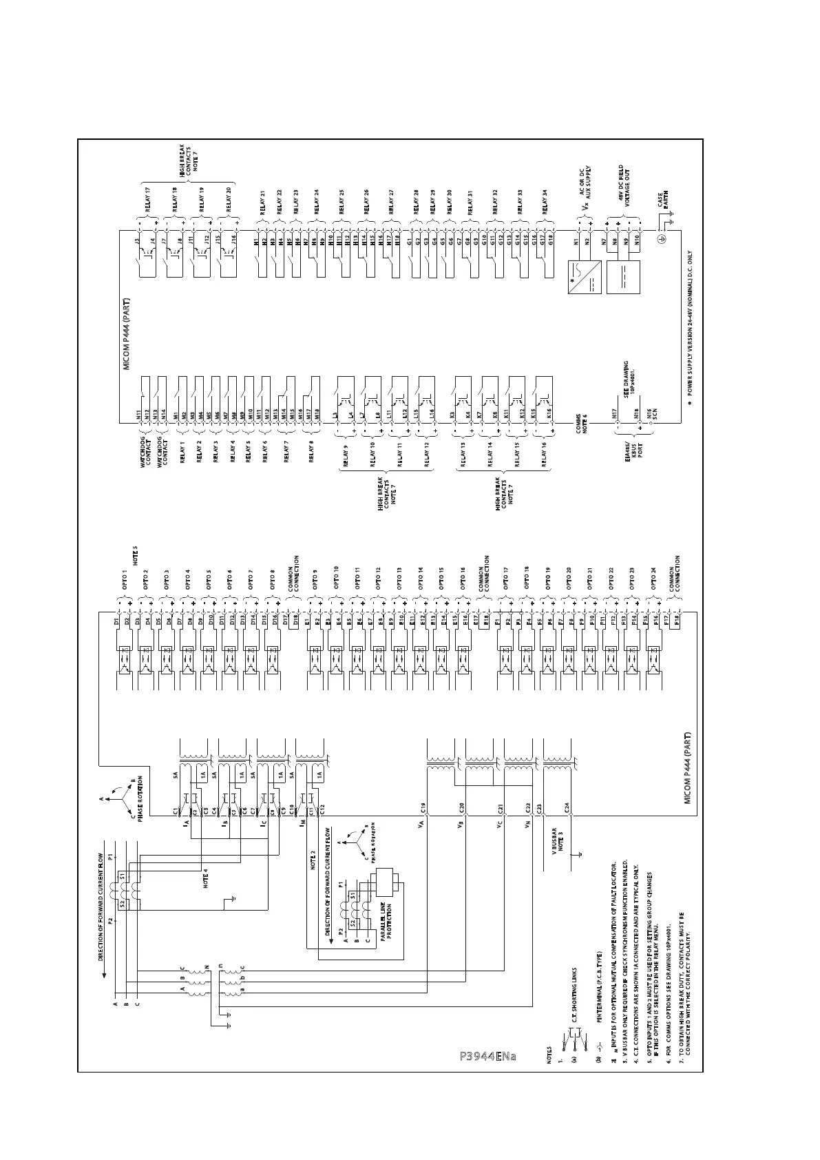
8.3 MICOM P444 with High Break contacts - Wiring Diagram (2/4)
L
N
O
R
A
B
S
U
B
V
.
3
.
D
E
L
B
A
N
E
N
O
I
T
C
N
U
F
M
S
I
N
O
R
H
C
N
Y
S
K
C
E
H
C
F
ID
E
R
I
U
Q
E
R
Y
S
N
O
I
T
C
E
N
N
O
C
.
T
.
C
.
4
A
1N
W
O
H
S
E
R
A
D
E
T
C
E
N
N
O
C
L
A
C
I
P
Y
T
E
R
A
D
N
A
.
Y
L
N
O
A
R
D
E
E
S
S
N
O
I
T
P
O
S
M
M
O
C
R
O
F
.
6
.
1
0
0
4
x
P
0
1
G
N
I
W
(
b
)
L
A
N
I
M
R
E
T
N
I
P
)
E
P
Y
T
.
B
.
C
.
P
(
1
.
(
a
)
R
O
H
S
.
T
.
C
S
K
N
I
L
G
N
I
T
F
1
8
F
1
7
F
1
6
F
1
5
F
1
2
F
1
3
F
1
4
F
1
1
F
1
0
C
2
1
C
V
R
A
B
S
U
B
V
3
E
T
O
N
C
2
4
V
N
C
2
3
C
2
2
B
V
C
2
0
V
A
C
1
9
F
5
F
9
F
8
F
6
F
7
F
3
F
4
F
2
F
1
E
1
4
E
1
6
E
1
8
E
1
7
E
1
5
E
1
3
E
1
2
E
1
1
E
1
0
R
O
F
F
O
N
O
I
T
C
E
R
I
D
T
N
E
R
R
U
C
D
R
A
W
FLOW
P
R
O
T
E
C
T
I
O
N
L
E
L
L
A
R
A
P
E
N
I
L
R
O
F
F
O
N
O
I
T
C
E
R
I
D
T
N
E
R
R
U
C
D
R
A
W
FLOW
N
S
2
C
B
P
2
A
a
c
b
n
A
A
C
B
B
C
P
2
C
3
4
E
T
O
N
D
9
M
T
O
R
E
S
A
H
P
N
O
I
T
A
S
1
C
2
E
T
O
N
P
1
A
B
C
1
2
C
1
1
1
A
C
9
I
C
1
0
I
C
C
8
1
A
5
A
C
5
C
6
C
7
I
B
C
4
1
A
5
A
5
A
D
1
8
E
5
E
7
E
8
E
9
E
6
E
4
E
3
E
1
E
2
D
1
6
D
1
7
D
1
5
D
1
4
D
1
3
D
1
2
D
1
0
D
1
1
T
O
R
E
S
A
H
P
N
O
I
T
A
A
C
B
S
2
S
1
I
A
C
2
C
1
1
A
5
A
P
1
D
7
D
8
D
6
D
5
D
2
D
3
D
4
D
1
P(444PMOCiM )TRA
-
R
E
L
A
Y
2
7
L
P
P
U
S
R
E
W
O
P
L
N
O
.
C
.
D
)
L
A
N
I
M
O
N
(
V
8
4
-
4
2
N
O
I
S
R
E
V
Y
Y
1
2
O
T
P
O
-
K
B
U
S
P
O
R
T
E
I
A
4
8
5
/
+
4
2
O
T
P
O
C
O
N
N
E
C
T
I
O
N
C
O
M
M
O
N
+
-
2
2
O
T
P
O
3
2
O
T
P
O
-
+
-
+
*
1
0
P
x
4
0
0
1
.
A
R
D
E
E
S
G
N
I
W
-
N
1
8
S
C
N
N
1
6
+
N
1
7
6
E
T
O
N
C
O
M
M
S
9
1
O
T
P
O
0
2
O
T
P
O
-
+
+
-
7
1
O
T
P
O
8
1
O
T
P
O
+
-
-
+
5
1
O
T
P
O
C
O
M
M
O
N
6
1
O
T
P
O
C
O
N
N
E
C
T
I
O
N
+
-
+
4
1
O
T
P
O
3
1
O
T
P
O
-
-
+
+
+
L
P
P
U
S
X
U
A
Y
x
V
N
2
N
1
0
N
9
N
8
N
7
E
A
R
T
H
C
A
S
E
-
D
L
E
I
F
C
D
V
8
4
T
U
O
E
G
A
T
L
O
V
-
+
+
G
1
1
*
N
1
G
1
8
G
1
7
G
1
4
G
1
5
G
1
6
G
1
2
G
1
3
R
E
L
A
Y
3
4
C
D
R
OC
A
-
R
E
L
A
Y
3
2
R
E
L
A
Y
3
3
G
5
G
8
G
9
G
1
0
G
6
G
7
G
2
G
4
G
3
G
1
H
1
8
R
E
L
A
Y
3
0
R
E
L
A
Y
3
1
R
E
L
A
Y
2
9
R
E
L
A
Y
2
8
P
(
4
4
4
P
M
O
C
i
M
)
T
R
A
R
E
L
A
Y
4
M
8
R
E
L
A
Y
5
R
E
L
A
Y
6
R
E
L
A
Y
7
8
Y
A
L
E
R
C
O
N
N
E
C
T
I
O
N
1
1
O
T
P
O
2
1
O
T
P
O
+
-
+
-
9
O
T
P
O
0
1
O
T
P
O
+
-
+
-
-
7
O
T
P
O
8
O
T
P
O
C
O
M
M
O
N
+
-
+
6
O
T
P
O
5
O
T
P
O
-
+
+
-
M
1
4
M
1
5
M
1
6
M
1
7
M
1
8
M
1
0
M
1
2
M
1
3
M
1
1
M
9
W
A
T
C
H
D
O
G
C
O
N
T
A
C
T
C
O
N
T
A
C
T
W
A
T
C
H
D
O
G
R
E
L
A
Y
3
R
E
L
A
Y
1
R
E
L
A
Y
2
+
3
O
T
P
O
4
O
T
P
O
+
-
-
+
1
O
T
P
O
2
O
T
P
O
-
+
-
5
E
T
O
N
N
1
1
M
2
M
5
M
7
M
6
M
4
M
3
N
1
2
N
1
3
N
1
4
M
1
H
6
R
E
L
A
Y
2
3
H
1
2
H
1
6
H
1
7
H
1
5
H
1
3
H
1
4
H
9
H
1
0
H
1
1
H
7
H
8
R
E
L
A
Y
2
6
R
E
L
A
Y
2
4
R
E
L
A
Y
2
5
H
3
H
5
H
4
H
2
H
1
R
E
L
A
Y
2
1
R
E
L
A
Y
2
2
T
U
P
N
I
.
2
L
A
N
O
I
T
P
O
R
O
F
S
I
L
A
U
T
U
M
A
S
N
E
P
M
O
C
F
F
O
N
O
I
T
.
R
O
T
A
C
O
L
T
L
U
A
M
I
N
I
D
E
T
C
E
L
E
S
S
I
N
O
I
T
P
O
S
I
H
T
F
I
A
L
E
R
E
H
T
.
U
N
E
M
Y
T
P
O
.
5
1
S
T
U
P
N
IO
T
S
U
M
2
D
N
A
P
U
O
R
G
G
N
I
T
T
E
S
R
O
F
D
E
S
U
E
B
S
E
G
N
A
H
C
+
-
+
-
-
+
+
-
+
-
+
-
-
+
+
-
R
E
L
A
Y
9
K
4
R
E
L
A
Y
1
6
K
1
6
K
1
5
R
E
L
A
Y
1
4
R
E
L
A
Y
1
5
K
1
2
K
1
1
K
8
K
7
7
E
T
O
N
S
T
C
A
T
N
O
C
K
A
E
R
B
H
G
I
H
L
1
2
R
E
L
A
Y
1
2
R
E
L
A
Y
1
3
K
3
L
1
6
L
1
5
R
E
L
A
Y
1
0
R
E
L
A
Y
1
1
L
8
L
1
1
L
7
L
4
L
3
+
-
+
-
-
+
+
-
R
E
L
A
Y
1
7
K
A
E
R
BH
G
I
H
C
O
N
T
A
C
T
S
J
1
2
J
1
6
J
1
5
R
E
L
A
Y
2
0
J
8
J
1
1
J
7
J
4
R
E
L
A
Y
1
9
R
E
L
A
Y
1
8
7
E
T
O
N
J
3
H
T
I
W
D
E
T
C
E
N
N
O
C
T
C
E
R
R
O
C
E
H
T
Y
T
I
R
A
L
O
P
.
Y
T
U
D
K
A
E
R
B
H
G
I
H
N
I
ATBOOT.7 TSUMSTCATNOC, EB
7
E
T
O
N
S
T
C
A
T
N
O
C
K
A
E
R
B
H
G
I
H
N
O
T
E
S
P3944ENa

Table of Contents

Related product manuals