EasyManua.ls Logo

golmar Stadio Plus - RD-Plus;Uno Repeater Connection

golmar Stadio Plus
52 pages
Print Icon
To Next Page IconTo Next Page
To Next Page IconTo Next Page
To Previous Page IconTo Previous Page
To Previous Page IconTo Previous Page
Loading...
111
OPTIONAL CONNECTIONS
SA
+
T TR RM M
SAR-90
SA
+
T TR RM M
SAR-90
TF-104
SEC
~~
A
_
+
D A1
Malla
V
in
V
out
CN4
A
_
+
D A1
Malla
V
in
V
out
CN4
uxiliary devices activation with Platea Plus monitors.
A
Activation of a second lock release
The use of a TF-104 transformer will be necessary.
IMPORTANT: the lock release must be 12Va.c. type.
To stairs light push button
To activate auxiliary devices the use of a SAR-90 relay unit will be required and must be
connected between + and A1 (for activation by ) or 2C (for activation by ). The second
option requires an internal modification on the monitor, as described on page 96. This
feature disables the intercom function. If both functions are needed, use terminal A1.
If this device is shared for all the monitors, link their A1 or 2C terminal and use just one relay
unit. In case that each monitor has its own application use a SAR-90 relay unit for each
monitor and don't link the A1 or 2C monitor terminals.
Activation of stairs light,
second d.c. lock release, ...
SA
+
T TR RM M
SAR-90
A
_
+
D 2C
Malla
V
in
V
out
CN4
Activation of a second camera
*Requires an internal
modification, see page 96.
112
OPTIONAL CONNECTIONS
onnection of a repeater RD-Plus/Uno.
C
A
A
_
_
+
+
D
D
Malla
Malla
V
in
V
in
V
out
V
out
CN4
CN4
A
_
+
D
Malla
V
in
V
out
CN2
A
_
+
D
Malla
V
in
V
out
CN4
D4L-PLUS
D4L-PLUS Platea PlusPlatea Plus
Platea UnoPlatea Plus
IN
D1 D2
CTin
JP1
OUT
IN
D1 D2
CTin
JP1
OUT
_ _
++
D2D1
1 2 3 4
D1
D2
UNO PLUS PLUS UNO
UNO PLUS UNO PLUS
1 2 3 4
1 2 3 4
1 2 3 4
1 2 3 4
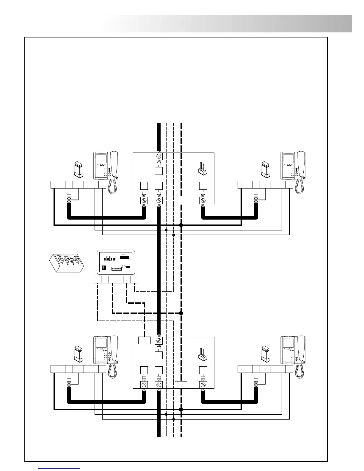
RD-Plus/Uno
GND
If there´s one or more Uno monitors or telephones in the installation, if the distance between the
doorpanel and the last monitor or telephone exceeds 200 metres, or if the building has more
than 200 monitors or telephones, a digital repeater RD-Plus/Uno should be installed.
Refer to the following diagram.
The installation is the same for monitors as for telephones (coaxial is not involved).

Related product manuals