EasyManua.ls Logo

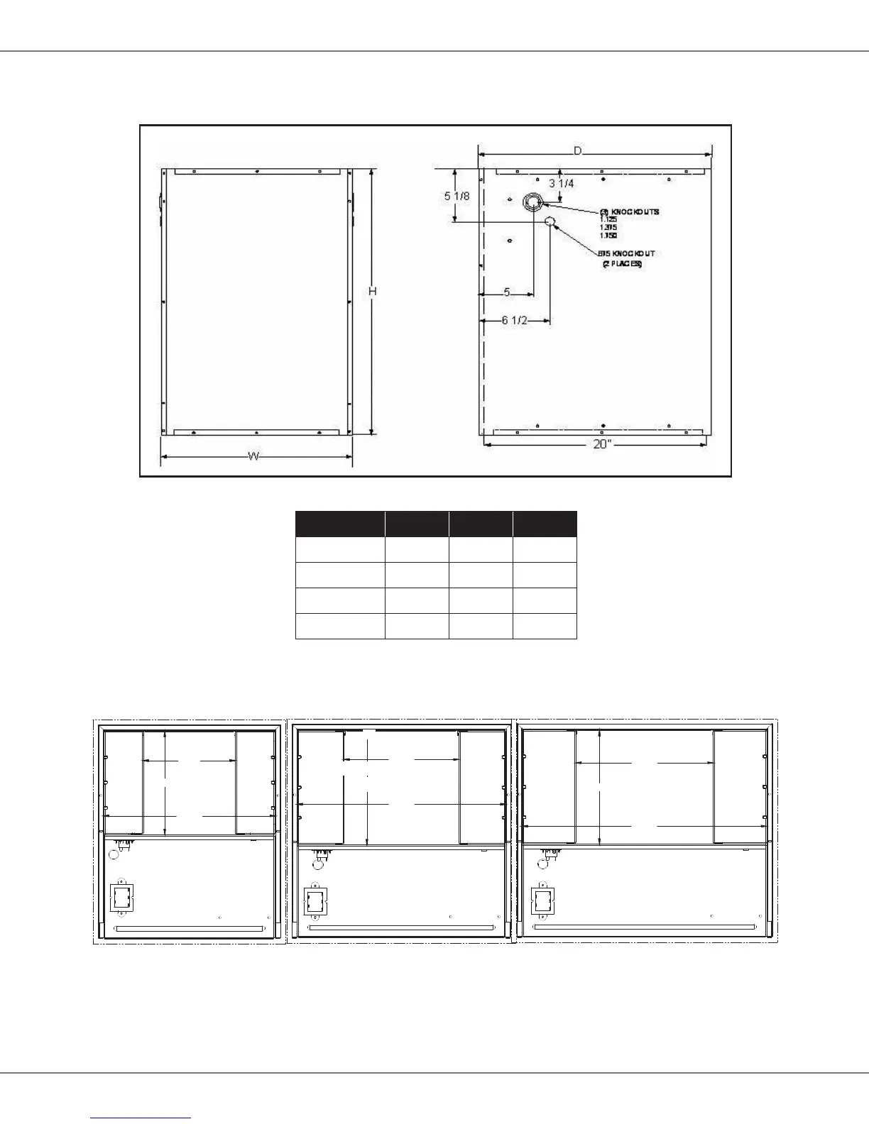
Goodman MBR - Unit Dimensions and Views; Side and Front View Dimensions; Top View Knockout Locations

Goodman MBR
8 pages
Print Icon
To Next Page IconTo Next Page
To Next Page IconTo Next Page
To Previous Page IconTo Previous Page
To Previous Page IconTo Previous Page
Loading...
4 www.goodmanmfg.com SS-GMBR
Dimensions
Top View
8⅞"
10¼"
16 ½"
13¼"
11¼”
23 ½"
S
M
A
L
L
M
E
D
I
U
M
L
A
R
G
E
8
.
8
4
0
1
0
.
1
5
9
1
6
.5
0
0
1
1
.
0
2
9
1
1
.2
0
9
2
0
.
0
2
1
1
3
.
1
7
8
1
1
.2
0
9
2
3
.4
6
4
17½"
21"
24½"
11"
11¼"
20⅛"
W H D
MBR0800* 17½" 26" 21"
MBR1200* 17½" 26" 21"
MBR1600* 21" 30" 21"
MBR2000* 24½" 30" 21"
Side and Front Views

Related product manuals