EasyManua.ls Logo

Goodman MSG-12HRN1W - System Operation; Refrigerant Cycle Diagrams; Operation Limits

Goodman MSG-12HRN1W
30 pages
Print Icon
To Next Page IconTo Next Page
To Next Page IconTo Next Page
To Previous Page IconTo Previous Page
To Previous Page IconTo Previous Page
Loading...
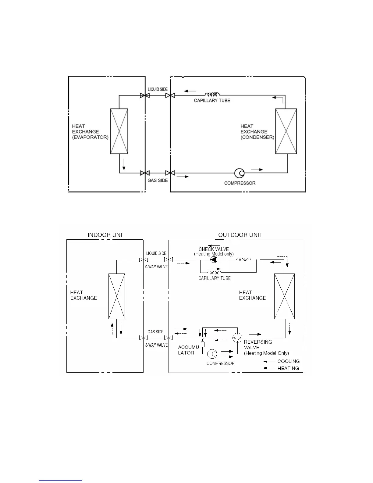
SYSTEM OPERATION
11
REFRIGERANT CYCLE
Cooling only
Heat pump mode
(OUTDOOR
CAPILLARY TUBE
(INDOOR COIL)
OPERATION LIMITS
Cooling operation
All units may operate in the cooling mode up to a maximum outdoor ambient temperature of 111°F (44°C), and down to a
minimum outdoor ambient temperature of 66°F (19°C). The indoor side may be operated in the cooling mode with indoor
ambient temperature between 52°F and 88°F (11°C and 31°C).
Heating operation
Heat pump units may operate in the heating mode up to a maximum outdoor ambient temperature of 77°F (25°C), and down
to a minimum outdoor ambient temperature of 16°F (-9°C). The indoor side may be operated in the heating mode with indoor
ambient temperature between 59°F and 86°F (15°C and 30°C).

Related product manuals