EasyManua.ls Logo

Goodman *PH 16 - Gpc1560 H41

Goodman *PH 16
56 pages
Print Icon
To Next Page IconTo Next Page
To Next Page IconTo Next Page
To Previous Page IconTo Previous Page
To Previous Page IconTo Previous Page
Loading...
45
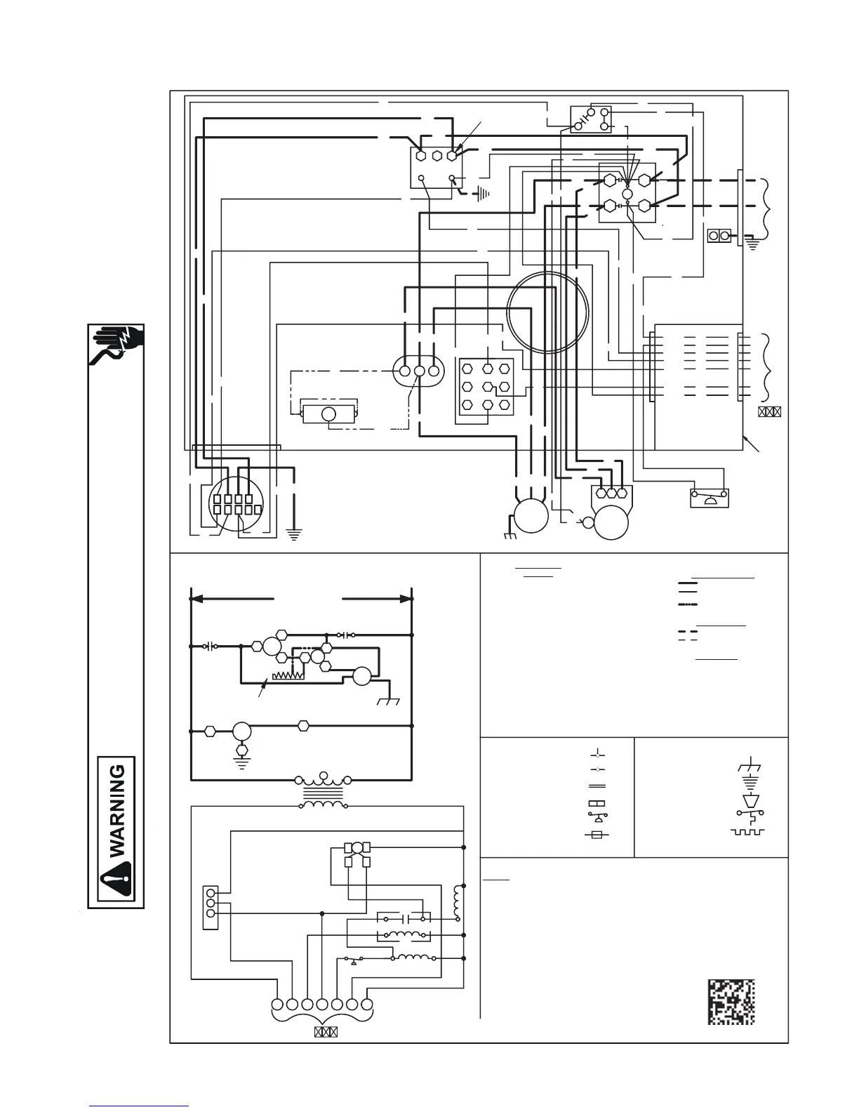
WIRING DIAGRAMS
HIGH VOLTAGE!
DISCONNECT ALL POWER BEFORE SERVICING OR INSTALLING THIS
UNIT. MULTIPLE POWER SOURCES MAY BE PRESENT. FAILURE TO
DO SO MAY CAUSE PROPERTY DAMAGE, PERSONAL INJURY OR DEATH.
GPC1560H41**
NOTE #2
WH
NOTE #3
EM
TR
24V
208-230
3
240
208-230/1/60
SUPPLY VOLTAGE
C
COMP
C
S.A.
S
T1
R
L1
C
NOTE #4
H
F
RCCF
CM
T2
C
L2
H
RCCF
F
C
YL
BR
PU
2
24V
208
TR
C
BK
1
PU
COMP
CM
BR
BR
41
PLF
PU
BK
YL
S
BK
RD
BK
5
6
2
3
CR
LVJB
RD
BL
BR
WH
GR
PU
R
C
W2
W1
G
Y
A
T
O
T
S
M
R
E
H
T
T2
T1
RD
BL
NOTE #3
PU
L1
GND
C
L2
PU
BK
60
/
/
1
0
3
2
-
8
0
2
7
8
9
BL
BR
208-230/1/60 0140G03702-A
RD
RD
BK
BK
RD
C L G N
1
2
3
BL
BL
RD
RD
GR
GR
GR
EM
GR
SEE NOTE 2
L
3 1
2
R W2 W1 Y G C
4
5
6
PLF
SEE NOTE #2
IF USED
THERMOSTAT
N
G
SEE UNIT RATING PLATE FOR TYPE AND SIZE
OF OVER CURRENT PROTECTION
EM
1
C
2 3
SEE
NOTE 5
YL
RD
SA
(IF USED) SEE NOTE 4
PU
WH
BK
PU
4
5
WH
WH
BK
HPS
CONTROL
BOX
C
HPS
COMPONENT
LEGEND
C
CM
COMP
EM
GND
LVJB
PLF
RCCF
SA
TR
HPS
CSR
SOL
CONTACTOR
CONDENSER MOTOR
COMPRESSOR
EVAPORATOR MOTOR
EQUIPMENT GROUND
LOW VOLTAGE JUNCTION BOX
FEMALE PLUG / CONNECTOR
RUN CAPACITOR FOR
COMPRESSOR AND FAN
START ASSIST
TRANSFORMER
HIGH PRESSURE SWITCH
COMPRESSOR SOLENOID RELAY
HI STAGE SOLENOID
F
ACTORY WIRING
LINE VOLTAGE
LOW VOLTAGE
OPTIONAL HIGH
VOLTAGE
FIELD WIRING
HIGH VOLTAGE
LOW VOLTAGE
WIRE CODE
BK BLACK
BL BLUE
BR BROWN
GR GREEN
OR ORANGE
PU PURPLE
RD RED
WH WHITE
YL YELLOW
NOT
ES:
1. REPLACEMENT WIRE MUST BE SAME SIZE AND TYPE INSULATION AS ORIGINAL
(AT LEAST 105C) USE COPPER CONDUCTOR ONLY.
2. TO CHANGE EVAPORATOR MOTOR SPEED MOVE YELLOW AND WHITE LEADS
FROM EM "2" AND "3" TO "4" AND "5". IF BOTH LEADS ARE ENERIZED,
THE HIGHER SPEED SETTING IS USED.
3. FOR 208 VOLT TRANSFORMER OPERATION MOVE PURPLE WIRES FROM
TERMINAL 3 TO TERMINAL 2 ON TRANSFORMER.
4. START ASSIST FACTOR EQUIPED WHEN REQUIRED
5. USE COPPER CONDUCTORS ONLY
++
USE N.E.C. CLASS 2 WIRE
EQUIPMENT GROUND
FIELD GROUND
FIELD SPLICE
SWITCH (TEMP)
IGNITER
SWITCH (PRESS.)
OVERCURRENT
PROT. DEVICE
JUNCTION
TERMINAL
INTERNAL TO
INTEGRATED CONTROL
PLUG CONNECTION
1
2
4
3
YL
YL
YL
BL
BL
YL
YL
YL
YL
Y2YL
YL
YL
YL
YL
YL
YL
SOL
BL
BL
BL
CSR
Y2
SOL
GR
CSR
BL
BL

Table of Contents

Related product manuals