EasyManua.ls Logo

Goodman *PH 16 - Apc1560 H41

Goodman *PH 16
56 pages
Print Icon
To Next Page IconTo Next Page
To Next Page IconTo Next Page
To Previous Page IconTo Previous Page
To Previous Page IconTo Previous Page
Loading...
47
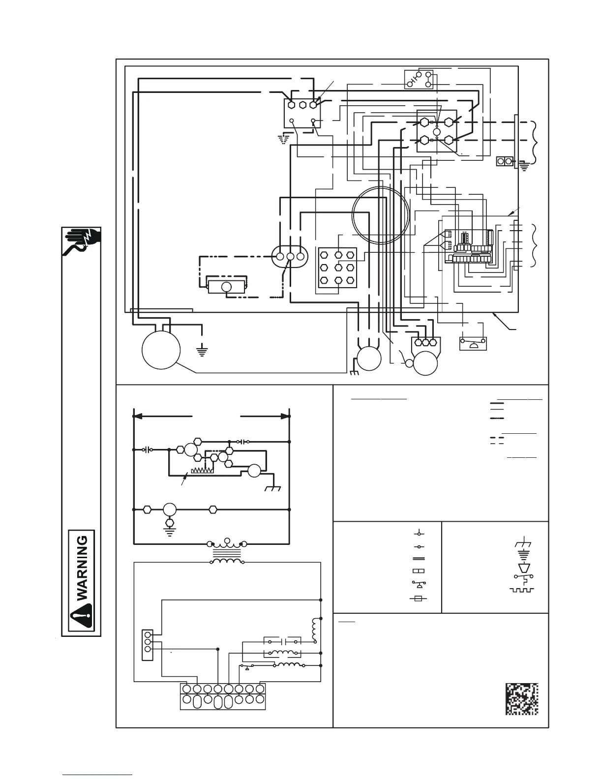
WIRING DIAGRAMS
HIGH VOLTAGE!
DISCONNECT ALL POWER BEFORE SERVICING OR INSTALLING THIS
UNIT. MULTIPLE POWER SOURCES MAY BE PRESENT. FAILURE TO
DO SO MAY CAUSE PROPERTY DAMAGE, PERSONAL INJURY OR DEATH.
APC1560H41**
NOTE #2
VSM
TR
24V
208-230
3
CONTROL
BOX
240
208-230/1/60
SUPPLY VOLTAGE
C
COMP
C
S.A.
S
T1
R
L1
C
NOTE #3
H
F
RCCF
CM
T2
C
L2
H
RCCF
F
C
YL
BR
RD
2
24V
208
TR
C
BK
1
RD
COMP
CM
BR
BR
41
PLF
PU
BK
YL
S
BK
RD
BK
5
6
2
3
CR
T2
T1
RD
BL
NOTE #2
PU
BL
L1
GND
C
L2
PU
BK
60
/
/
1
0
3
2
-
8
0
2
7
8
9
BL
208-230/1/60 0140G03704-A
RD
RD
BK
BK
RD
RD
RD
GR
N
3 1
2
4
5
6
PLF
C
IF USED
L
G
SEE
NOTE 4
YL
RD
SA
(IF USED) SEE NOTE 3
PU
BK
PU
BK
COMPONENT LEGEND
C
CM
COMP
EM
GND
LVJB
PLF
RCCF
SA
TR
HPS
CSR
SOL
CONTACTOR
CONDENSER MOTOR
COMPRESSOR
EVAPORATOR MOTOR
EQUIPMENT GROUND
LOW VOLTAGE JUNCTION BOX
FEMALE PLUG / CONNECTOR
RUN CAPACITOR FOR
COMPRESSOR AND FAN
START ASSIST
TRANSFORMER
HIGH PRESSURE SWITCH
COMPRESSOR SOLENOID RELAY
HI STAGE SOLENOID
FACTORY
WIRING
LINE VOLTAGE
LOW VOLTAGE
OPTIONAL HIGH
VOLTAGE
FIELD WIRING
HIGH VOLTAGE
LOW VOLTAGE
WIRE CODE
BK BLACK
BL BLUE
BR BROWN
GR GREEN
OR ORANGE
PU PURPLE
RD RED
WH WHITE
YL YELLOW
SEE UNIT RATING PLATE FOR TYPE AND SIZE
OF OVER CURRENT PROTECTION
NOTES:
1. REPLACEMENT WIRE MUST BE SAME SIZE AND TYPE INSULATION AS ORIGINAL (AT
LEAST 105C) USE COPPER CONDUCTOR ONLY.
2. FOR 208 VOLT TRANSFORMER OPERATION MOVE PURPLE WIRES FROM TERMINAL 3
TO TERMINAL 2 ON TRANSFORMER.
3. START ASSIST FACTOR EQUIPED WHEN REQUIRED
4. USE COPPER CONDUCTORS ONLY
+ +
USE N.E.C. CLASS 2 WIRE
EQUIPMENT GROUND
FIELD GROUND
FIELD SPLICE
SWITCH (TEMP)
IGNITER
SWITCH (PRESS.)
OVERCURRENT
PROT. DEVICE
JUNCTION
TERMINAL
INTERNAL TO
INTEGRATED CONTROL
PLUG CONNECTION
R
C
W2
W1
G
A
T
O
T
S
M
R
E
H
T
++
OT2
OT1OTC
O
W/W2
E/W1
R
YCON
COM
O
W2
ED
OUTDOOR
CONDENSER
HEATPUMP
VSTB
C RY1G
Y1/ Y2
HUMI DI ST AT
W2
24 VAC
CR
Y1
431
2
875
6
DIP SW ITCH
ON
OFF
HUM
W1
HEATER
THERMOSTA T
WH
BR
BL
RD
GR
YL
Y2
LVJB
VSM
R
W2
Y2
W1
Y1
G
COM
YCON
R
W/
W2
Y2
E/
W1
Y1
G
C
THERMOSTAT
Y\
Y2
VSTB
++
BL
BL
BL
BL
WH
WH
WH
BR
HPS
CSR
SOL
HPS
12
4
3
SOL
BL
BL
BL
BL
BL
YL
YL
YL
YL
BL
YL
YL
YL
YL
YL
YL
YL
PU
PU
PU
PU
PU
PU
PU
GR

Table of Contents

Related product manuals