EasyManua.ls Logo

Graco RTX 1500 - Maintenance

Graco RTX 1500
38 pages
Print Icon
To Next Page IconTo Next Page
To Next Page IconTo Next Page
To Previous Page IconTo Previous Page
To Previous Page IconTo Previous Page
Loading...
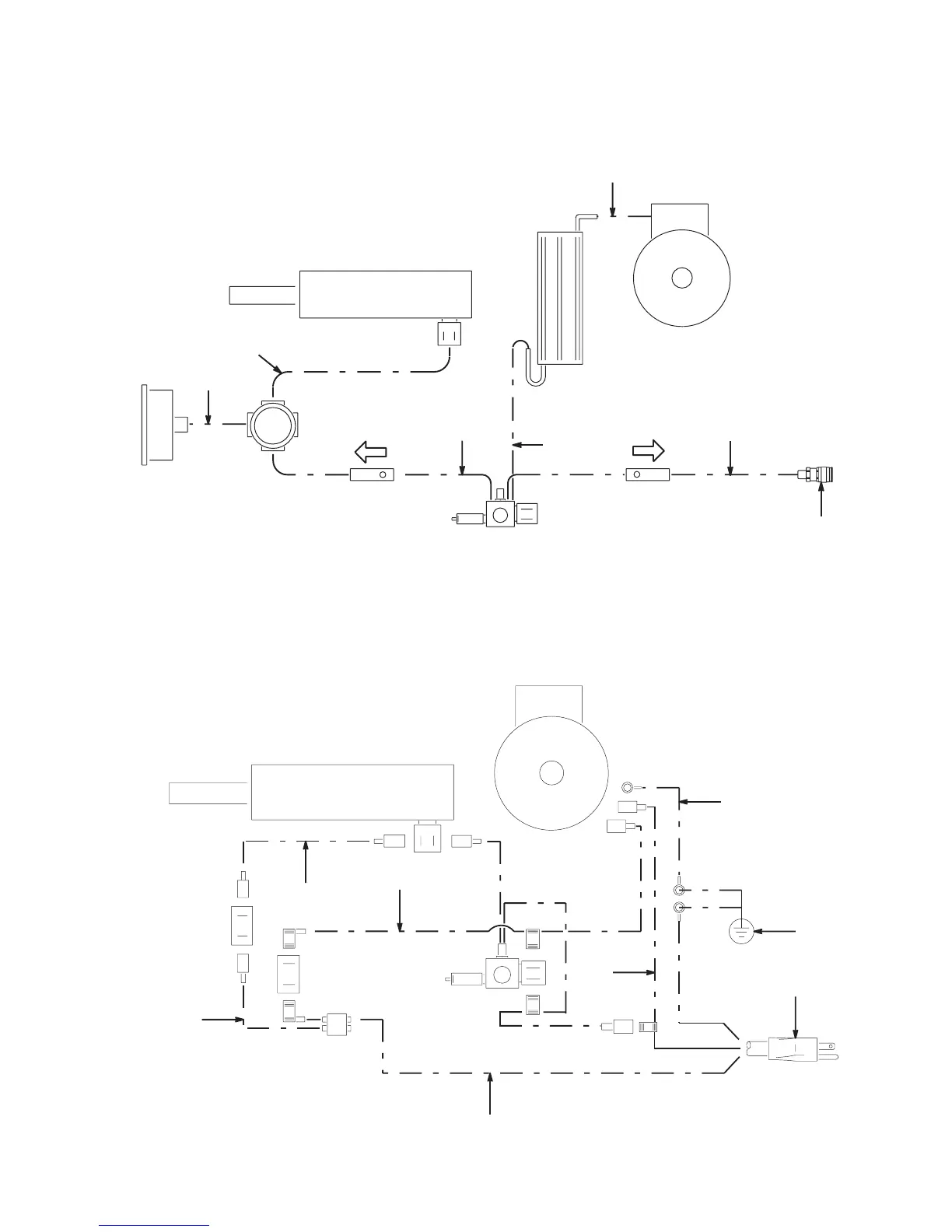
Air Diagram
30 310645F
Air Diagram
Wiring Diagram
82
16
47
2B
17
54
58
Air Cylinder
Guage
Air Flow Control
Air Cooler
Air Compressor
One Way Valve
One Way Valve
Regulator
ti4369a
8
39
51
32
150/151
50
150/151
150/151
Green
(Green/Yellow)
Black (Brown)
White (Blue)
Power
Switch
Prime
Switch
Air Cylinder
Air Compressor
Air Flow
Control
ti4370b
(230V)

Other manuals for Graco RTX 1500

Related product manuals