EasyManua.ls Logo

Grant Vortex Boilerhouse Combi - Or in Twin-Tube

Default Icon
52 pages
Print Icon
To Next Page IconTo Next Page
To Next Page IconTo Next Page
To Previous Page IconTo Previous Page
To Previous Page IconTo Previous Page
Loading...
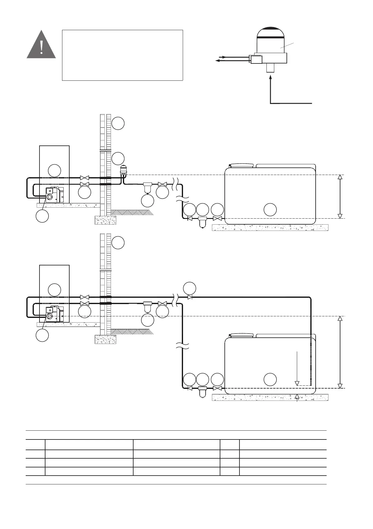
Number / item correspondence table diagrams fig 3-2/3-3
1 oil tank exterior wall 7 burner
2 isolation valve oil filter (max filtration 15μm) 8 non-return valve
3 oil strainer oil pump 9 air separator
10 boiler isolation valves
* Position of de-aeration device must be level with or above the oil pump
* The air separator must be positioned at the level of the oil pump or placed above
Figure 3-2: Bitube oil supply
Figure 3-3: Supply with oil fi lter pot fitted with TOC DUO air separator
123
2
4
4
5
8
8
5
9
7
7
6
6
10
10
3.5m Max
123
2
3.5m Max
150mm
10
Fuel Storage and Fuel SystemPage 14
1/4" BSP female
connections
Tiger Loop
SUPPLY
TO PUMP
RETURN
FROM PUMP
SUPPLY
FROM TANK
Figure 3-4: Tiger loop de-aeration device
Refer to your oil tank supplier for any advice
concerning the type of single-tube, two-tube
oil supply, fi lter pot with separator, piping
diameter, safety device, compliance with
safety standards. Grant IRL cannot be held
responsible for liability for a faulty fuel oil
supply.
CAUTION

Table of Contents

Related product manuals