EasyManua.ls Logo

GRE HPG25 - Adjusting the Bypass; Electrical Connection

GRE HPG25
278 pages
Print Icon
To Next Page IconTo Next Page
To Next Page IconTo Next Page
To Previous Page IconTo Previous Page
To Previous Page IconTo Previous Page
Loading...
13
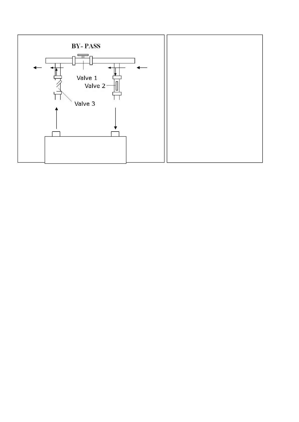
3.6 Adjusting the bypass
How to get the optimum water flow.
Please turn on the heat pump under heating function, firstly close the by-pass then open it slowly to start the
heat pump (the machine can't start running when the water flow is insufficient)
Continue to adjust the by-pass, at the meantime to check the Inlet water temp. & Outlet water temp., it will
be optimum when the difference is around 2 degree.
3.7 Electrical connection
Note: Although the heat pump is electrically isolated from the rest of the swimming pool system, this
only prevents the flow of electrical current to or from the water in the pool. Earthing is still required
for protection against short-circuits inside the unit. Always provide a good earth connection.The
installer must consult the electricity provider if necessary and ensure that the equipment is
connected correctly to an electricity network with impedance under 0.095 ohm.
Warning : Before any work inside the appliance, you must cut the appliance’s electricity supply as there is a
risk of electric shock which may cause material damage, serious injury or even death.
Incorrectly tightened terminals may cause the terminal box to heat up, which can invalidate
the warranty.
Only a qualified and experienced technician is authorised to carry out cabling work within the
appliance or to replace the power cord.
Before connecting the unit, verify that the supply voltage matches the operating voltage of the heat pump.
It is recommended to connect the heat pump to a circuit with its own fuse or circuit breaker (slow type; curve
D) and to use adequate wiring.
Connect the electrical wires to the terminal block marked POWER SUPPLY ’.
A second terminal block marked ‘WATER PUMP is located next to the first one. The filter pump (max. 5 A
0 V) can be connected to the second terminal block here. This allows the filter pump operation to be
controlled by the heat pump.
Out
In
Heat Pump
Please take below steps to adjust
the by-pass:
1. Valve 1 wide open. Valve 2 &
valve 3 closed.
2. Slowly open valve 2 & valve 3 by
half, then close the valve 1 slowly
to increase the water flow to valve 2
& valve 3.
3. If it shows ‘ON’ or ‘EE3’ on
display, it means the water flow into
heat pump is not enough, then you
need adjust the valves to increase
the water flow through the heat
pump.
To pool
From pool

Related product manuals