EasyManua.ls Logo

Gree GMV-280WL/C-X - Page 114

Gree GMV-280WL/C-X
173 pages
To Next Page IconTo Next Page
To Next Page IconTo Next Page
To Previous Page IconTo Previous Page
To Previous Page IconTo Previous Page
Loading...
GREE DC Inverter Multi VRF System II Service Manual
110
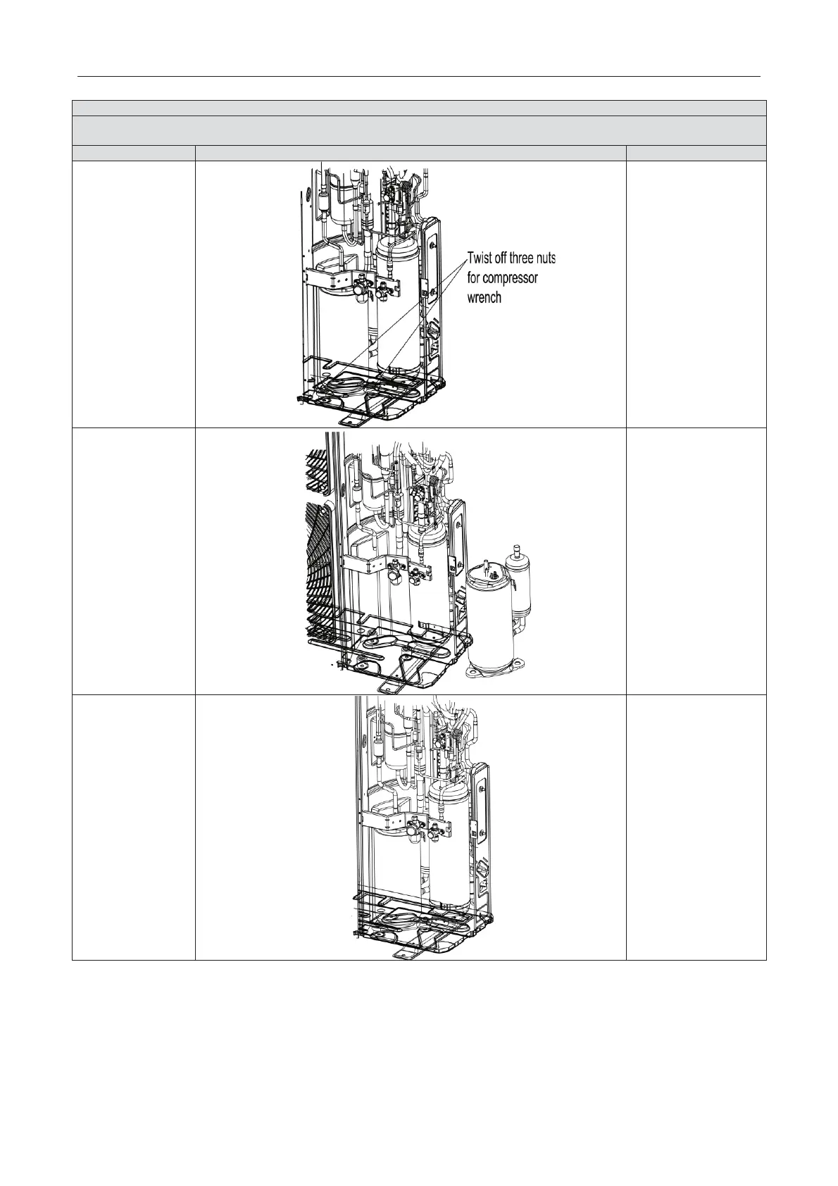
Removal operation of compressor
Remark: Before removing the compressor, please make sure that there’s no refrigerant inside the pipeline and the power
is disconnected.
Process
Photo
Operation Instruction
3)
Loose nuts
fixing the foot of
compressor
Twist off the nuts for
compressor with
wrench
4)
Remove the
chassis from
compressor
● Take ou
t the
compressor and
replace it
Note: When replacing
the compressor, do
not damage nearby
pipelines and other
parts
5)
Fix the new
compressor at the
chassis
After replacing the
compresor, fix the
nuts at the bottom of
compressor

Table of Contents

Other manuals for Gree GMV-280WL/C-X

Related product manuals