EasyManua.ls Logo

Gree GRS-CQ14Pd/NhG-M - Connexion du Circuit Hydraulique

Gree GRS-CQ14Pd/NhG-M
180 pages
To Next Page IconTo Next Page
To Next Page IconTo Next Page
To Previous Page IconTo Previous Page
To Previous Page IconTo Previous Page
Loading...
Pompe à chaleur air-eau
34
Dimensions du raccord
Description Filet du raccord de tuyau
Sortie d’eau chaude du réservoir d'eau 1/2″Femelle BSP
Entrée/sortie d’eau en circulation du réservoir d'eau 3/4″Femelle BSP
Entrée d'eau de climatisation du réservoir d'eau 1/2″Femelle BSP
Raccord de tuyau 3/4″Femelle BSP
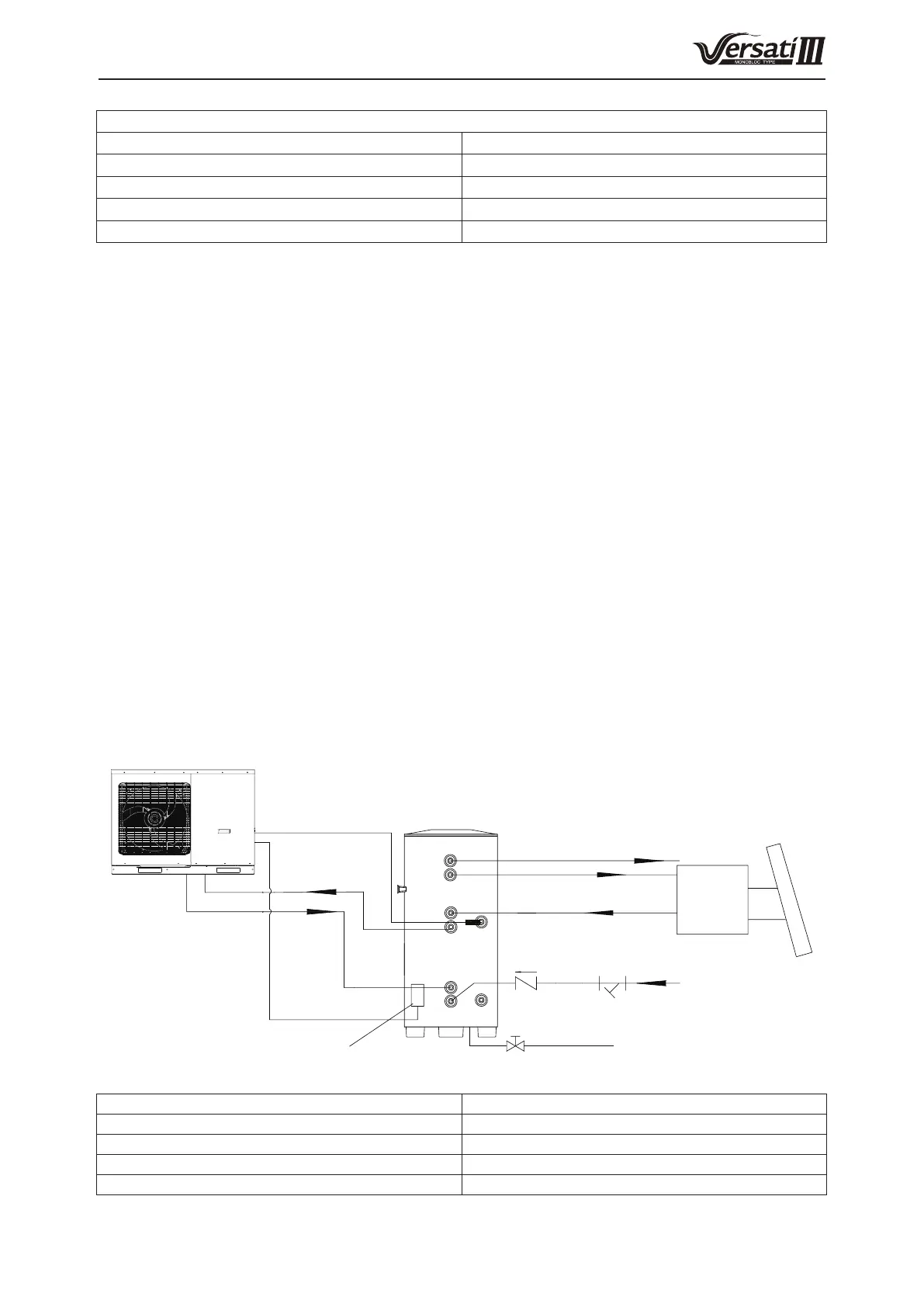
16.3 Connexion du circuit hydraulique
(1) Si la connexion entre le réservoir d'eau et l’unité intérieure passe par le mur, percer un trou de φ70 pour passer
le tuyau d’eau en circulation. Ceci est inutile si le trou n’est pas nécessaire.
(2) Préparation de la tuyauterie : pour le tuyau de sortie/entrée d’eau en circulation, un tuyau PPR d’eau chaude de
diamètre extérieur dn25 et de série S2,5 (épaisseur du mur de 4,2 mm) est recommandé. Pour, le tuyau d’en-
trée d’eau de climatisation et le tuyau de sortie d’eau chaude du réservoir d'eau, des tuyaux d’eau chaude de
diamètre extérieur nominal dn20 et de séries S2,5 (épaisseur du mur de 3,4mm) sont également recommandés.
Si d’autres tuyaux isolés sont utilisés, se reporter aux dimensions précédentes pour le diamètre extérieur et
l’épaisseur du mur.
(3) Installation des tuyaux d’entrée/sortie d’eau en circulation : connecter l’entrée d'eau de l’unité à la sortie en cir-
culation du réservoir d'eau et la sortie d’eau de l’unité à l’entrée en circulation du réservoir d'eau.
(4) Installation des tuyaux d’entrée/sortie du réservoir d'eau : soupape de sûreté, ltre et vanne d’arrêt doivent être
installés pour le tuyau d’entrée d’eau conformément au schéma d’installation de l’unité. Une vanne d’arrêt au
minimum est nécessaire pour le tuyau de sortie d’eau.
(5) Installation des tuyaux de sortie en bas du réservoir d'eau : connecter une extrémité du tuyau PPR à la sortie
d’évacuation au sol. Une vanne d’arrêt doit être installée au milieu du tuyau d'évacuation et à un emplacement
facile d’accès pour les utilisateurs.
(6) Après la connexion de la tuyauterie du circuit hydraulique, procéder au test de fuite. Après cela, bander les
tuyaux hydrauliques, le capteur de température d’eau et les câbles avec le ruban fourni avec l'unité.
(7) Se reporter au schéma d'installation de l’unité pour plus de détails.
Réservoir d'eau
Sortie d’eau chaude
Soupape
de sûreté
Vanne d’arrêt
Câble d'alimentation de la résistance auxiliaire
Filtre
Entrée d’eau froide
Autre
système
thermique
Eau du robinet
Sortie d’échappement
Capteur de température
de réservoir d'eau
Description Filet du raccord de tuyau
Entrée/sortie d’eau en circulation de l’unité principale 1″Mâle BSP
Entrée d'eau de climatisation du réservoir d'eau 1/2″Femelle BSP
Entrée/sortie d’eau en circulation du réservoir d'eau 3/4″Femelle BSP
Sortie d’eau chaude du réservoir d'eau 1/2″Femelle BSP

Table of Contents

Other manuals for Gree GRS-CQ14Pd/NhG-M

Related product manuals