EasyManua.ls Logo

Growatt SPF 6KT HVM - Product Overview

Growatt SPF 6KT HVM
32 pages
To Next Page IconTo Next Page
To Next Page IconTo Next Page
To Previous Page IconTo Previous Page
To Previous Page IconTo Previous Page
Loading...
3
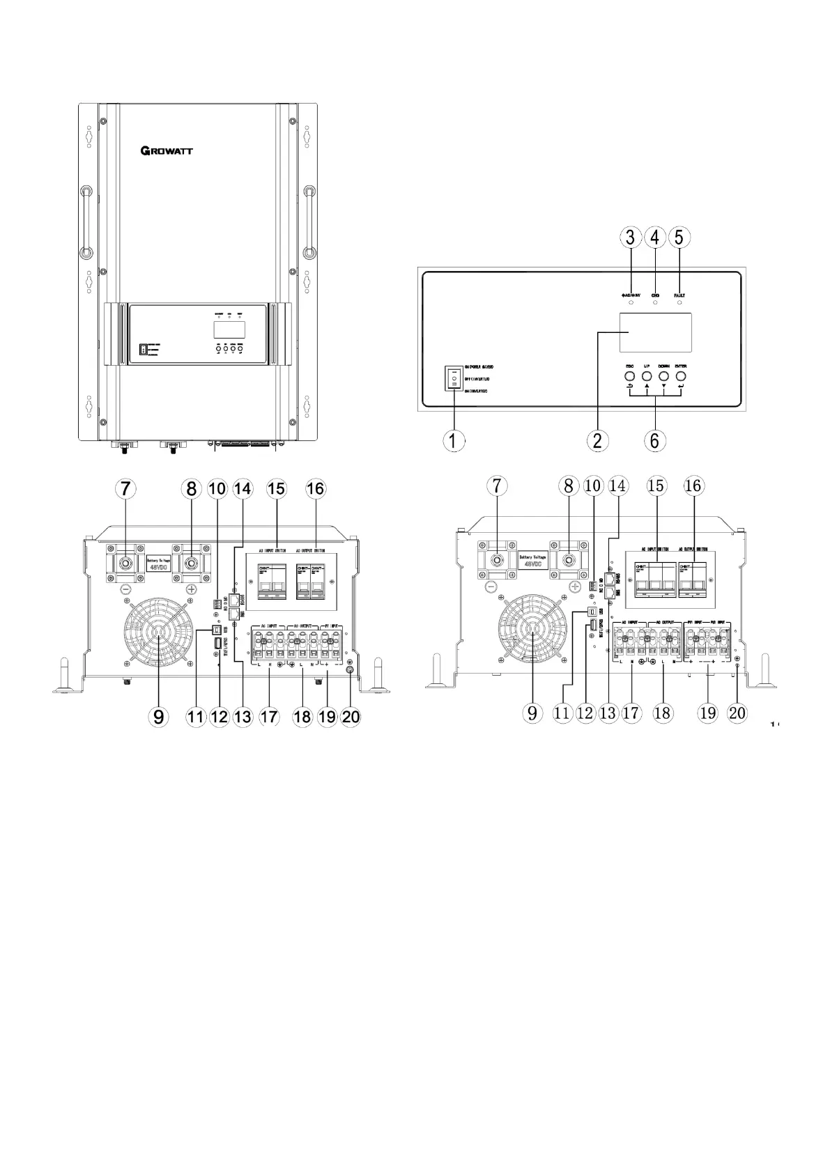
Product Overview
(4KW/5KW/6KW) (8KW/10KW/12KW)
1. ON/OFF Power Switch
2. LCD Display
3. Status Indicator
4. Charging Indicator
5. Fault Indicator
6. Function Buttons
7. Negative Battery Terminal
8. Positive Battery Terminal
9. DC Fan
10. Dry Contact For AGS
11. USB Port
12. Wi-Fi/GPRS Device Port
13. BMS Port
14. RS485/Remote LCD PortOptional
15. AC Input Breaker
16. AC Output Breaker
17. AC Input Terminal
18. AC Output Terminal
19. PV Input Terminal
20. Grounding Terminal

Related product manuals