EasyManua.ls Logo

Haas VF-2 - Page 191

Haas VF-2
564 pages
Print Icon
To Next Page IconTo Next Page
To Next Page IconTo Next Page
To Previous Page IconTo Previous Page
To Previous Page IconTo Previous Page
Loading...
96-8000 191
G CODES
June 1999
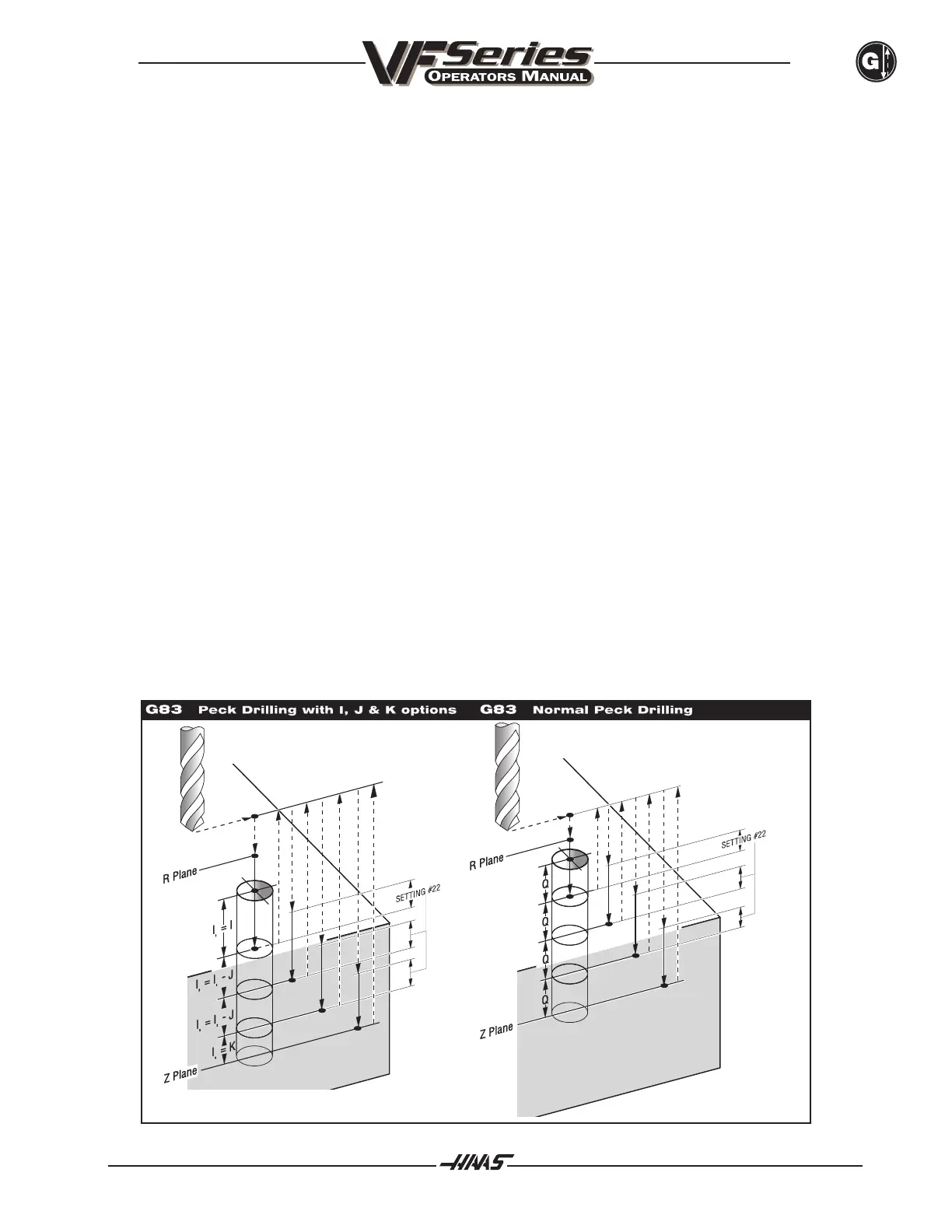
G83 Normal Peck Drilling Canned Cycle Group 09
F Feed Rate in inches (mm) per minute
I Optional size of first cutting depth
J Optional amount to reduce cutting depth each pass
K Optional minimum depth of cut
L Number of repeats
P Optional pause at end of last peck, in seconds
Q The cut-in value, always incremental
R Position of the R plane
X Optional X-axis motion command
Y Optional Y-axis motion command
Z Position of bottom of hole
This G code is modal in that once activated, every motion of X and/or Y will cause this canned cycle to be
executed until it is canceled or another canned cycle is selected.
If I, J, and K are specified, a different operating mode is selected. The first pass will cut in by I, each succeed-
ing cut will be reduced by amount J, and the minimum cutting depth is K.
If P is specified, the tool will pause at the bottom of the hole after the last peck for that amount of time. The
following example will peck several times and dwell for five seconds at the end:
G83 Z-0.62 F15. R0.1 Q0.175 P5.
The same dwell time applies to all subsequent blocks that do not specify a dwell time. When the canned
cycle is cancelled (i.e. G00, G01, G80, RESET) the dwell time will be reset to zero. This dwell cannot be used
in the same block as an M97, M98, M99, or G65, because these codes use P for different purposes.

Table of Contents

Related product manuals