EasyManua.ls Logo

Haas VF-2 - MACHINE FOOTPRINT: VF-11

Haas VF-2
564 pages
Print Icon
To Next Page IconTo Next Page
To Next Page IconTo Next Page
To Previous Page IconTo Previous Page
To Previous Page IconTo Previous Page
Loading...
33
INSTALLATION
June 1999
96-8000
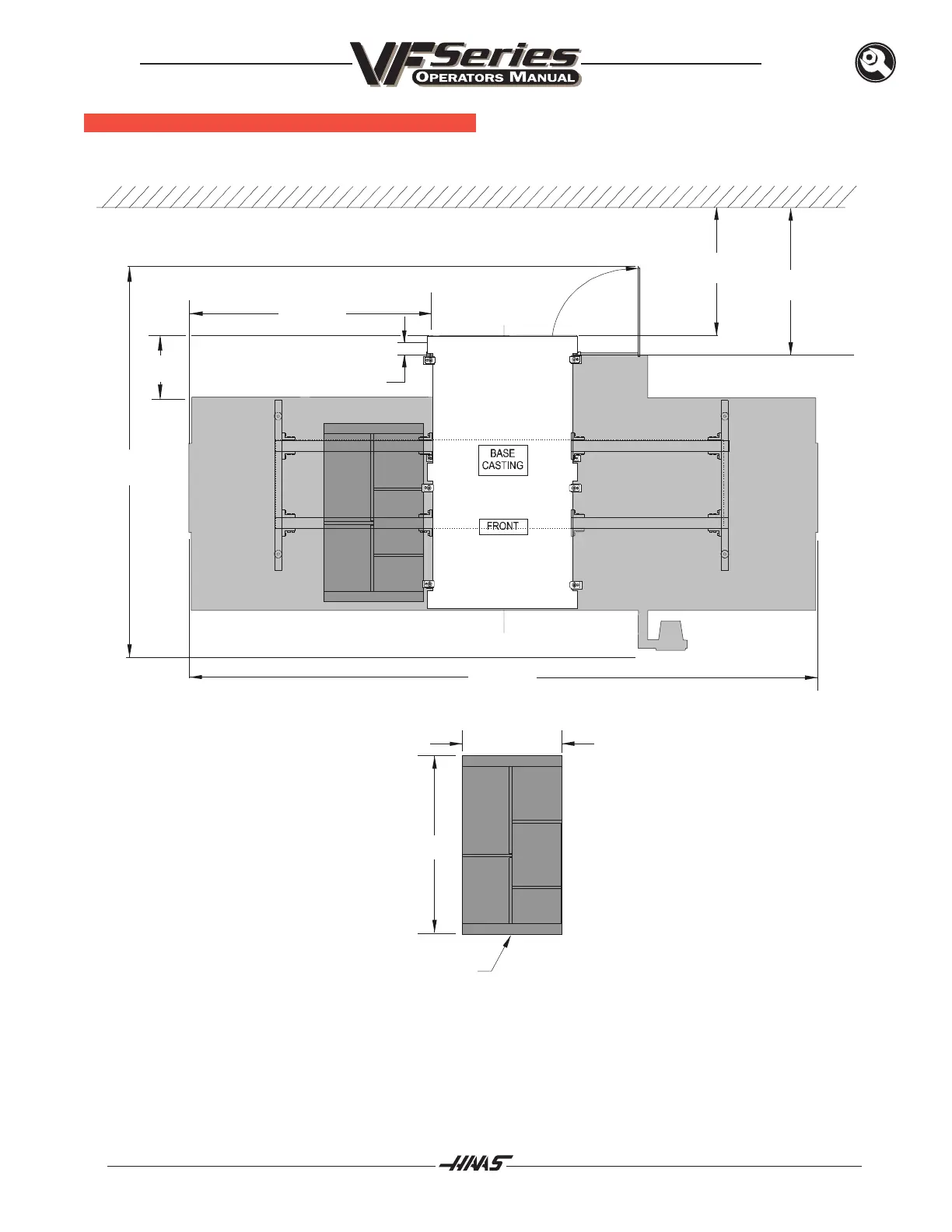
MACHINE F OOTPRINT: VF-11
37.35
(64.9 cm)
159.60
(405.4 cm)
98.60
(250.0 cm)
257.00
(652.8 cm)
52.00 MIN.
(132.0 cm)
DOOR
SWING
60.00 MIN.
(152.4 cm)
40.20
(102.0 cm)
72.80
(185.0 cm)
COO
LANT TANK
BASE
CASTING
FRONT
5.04
(12.8 cm)

Table of Contents

Related product manuals