EasyManua.ls Logo

Haas VF-2 - ANCHOR PATTERN: VF-6;7;10

Haas VF-2
564 pages
Print Icon
To Next Page IconTo Next Page
To Next Page IconTo Next Page
To Previous Page IconTo Previous Page
To Previous Page IconTo Previous Page
Loading...
26
INSTALLATION
June 1999
96-8000
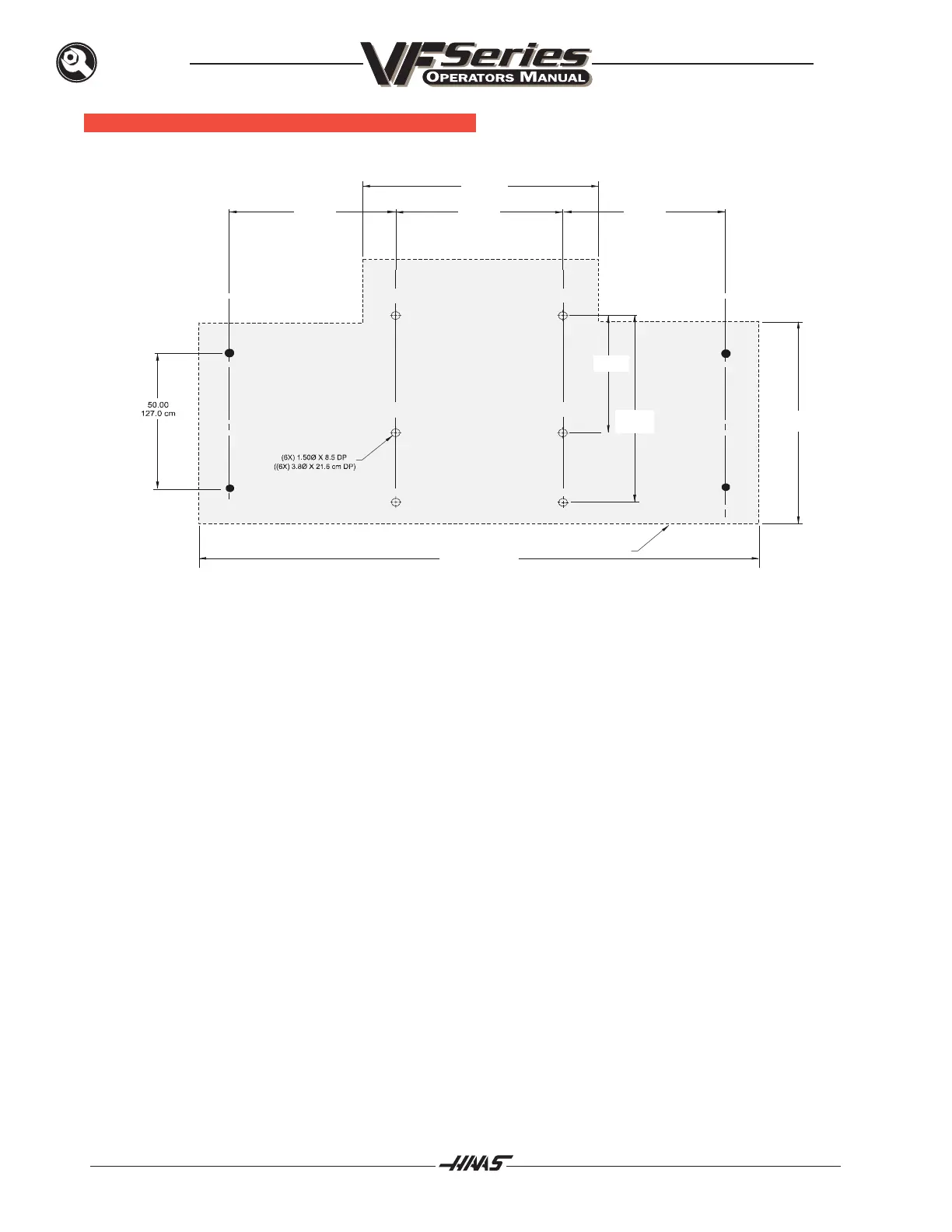
ANCHOR P ATTERN: VF-6/7/10
43.7 5
111.2 cm
60
111.2 cm
MACHINE
FRONT
57.75
146.7 cm
77.50
196.9 cm
Note:
Foundation must extend at
least 1ft. from bored holes.
Machines with outriggers must have
the foundation extend at least 1 ft. from
the outri
gg
er levelin
g
pads.
60
111.2 cm
73.00
127.0 cm
201.50
511.8 cm
81.00
205.7 cm
FOUNDATION LINE

Table of Contents

Related product manuals