EasyManua.ls Logo

Haier AU052FPERA - Wiring Diagram AU04;05;06 IFPERA

Haier AU052FPERA
77 pages
Print Icon
To Next Page IconTo Next Page
To Next Page IconTo Next Page
To Previous Page IconTo Previous Page
To Previous Page IconTo Previous Page
Loading...
11
AU04/05/06IFPERA
0150520925
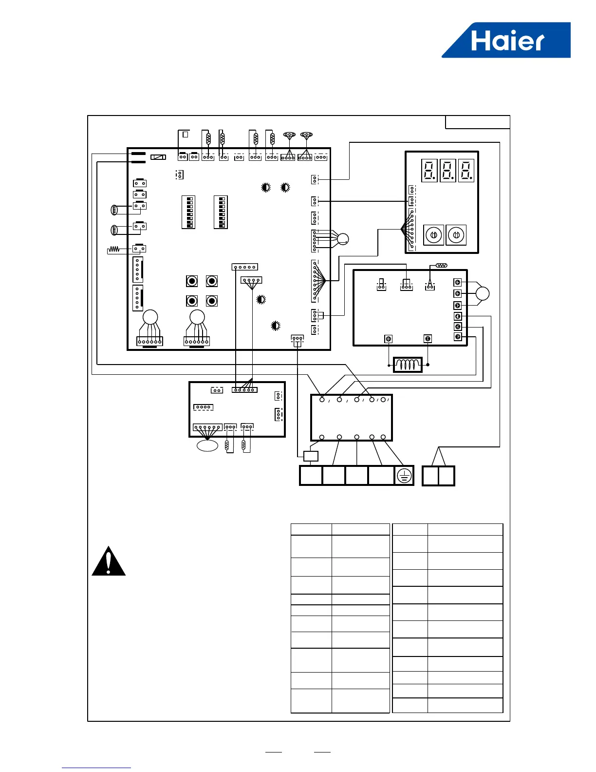
CONTROL BOARD
LED
DISPLAY
P
ACL
HPS Td Te1 Ts Ta Ps Pd
ACN
BM2
CN26
CN1CN2 CN3 CN4 CN5 CN6 CN7
LED4
LED3
LED1
LED2
CN29 CN28
CN32
CN31
CN30
SW01
LD1 LD2 LD3
SW02
CN20
CN24
CN10
CN11
CN9
CN8
EEV
CN30
6.3A 250VAC
FUSE1
CN18
SW1SW3
SW4 SW2
CN25
HEATER
CN16
4WV
CN17
SV1
NO
12345678
BM1
NO
12345678
DCFAN1
M
M
CN21
<SYMBOL>
Symbol
Signification
Ta
Pd
Ps
EEV
Ambient
Temperature
Sensor
High Pressure
Sensor
Low Pressure
Sensor
Electronic
Expend Valve
Tfin
Ipm Temperature
Sensor
R
Red
W
White
B L
Blue
B
Black
B
W
<WARNING>
<NOTES>
Please power off firstly for about 10
minutes before checking control box,
and make sure the voltage between
P and N below 20V.
·Please check the power firstly before test , and make
sure the crankcase heater powering on for 12 hours
at least to protecting compressor.
·The switch BM1-1 is used for locking the indoor units
number, the initial situation is “ OFF”. After power on,
the display board will display U**】, “**” indicates
the number of Indoor units that the outdoor unit can
communicate with. If it can match the actual number
of indoor units, please change “OFF” to “ON”, or else
fix the communication problem firstly.
·Forbid connecting the power wire to the “P” and “Q”,
otherwise the control board will be damaged.
·Please make sure the earth wire connecting the grou-
nding hole on the electric box firmly.
PQ
HEATER
SV1
4WV
DCFAN1,2
ACFAN1,2
Symbol Signification
Crankcase
Heater
Unloading
Valve
Four-way
Valve
DC Fan Motor
AC Fan Motor
HPS
Td
Te1
High Pressure
Switch
Compressor
Vent Sensor
Defrost
Temperature
Sensor
Compressor
Inhale Sensor
COMP
INV BOARD
U
V
W
Tfin
B
W
T
R
S
CN8
P
P1
CN7
REACTOR
RY2
R
R
W
DCFAN2
M
CN33
CN31
0151800273
CN7
PMV2
CN5
CN11
CN1
CN10
CN2
N
R
S
T
R
W
B
BL
B
L1 L2 L3 N E
L1 L2 L3 N E
NOISE FILER
CT
CN20
CN8
TX1
CN9
TX2
TX2
TX1
PMV2
Electronic
Expend Valve
TC1 Temp Sensor
of Valve Plate
TC2 Temp Sensor
of Valve Plate
CN15
ACFAN2
CN14
ACFAN1
CN19
PTC
Ts

Table of Contents

Other manuals for Haier AU052FPERA

Related product manuals