EasyManua.ls Logo

Haier AU052FPERA - Selection of Installation Location of Outdoor; Single-Unit Installation; Multi-Unit Installation

Haier AU052FPERA
77 pages
Print Icon
To Next Page IconTo Next Page
To Next Page IconTo Next Page
To Previous Page IconTo Previous Page
To Previous Page IconTo Previous Page
Loading...
21
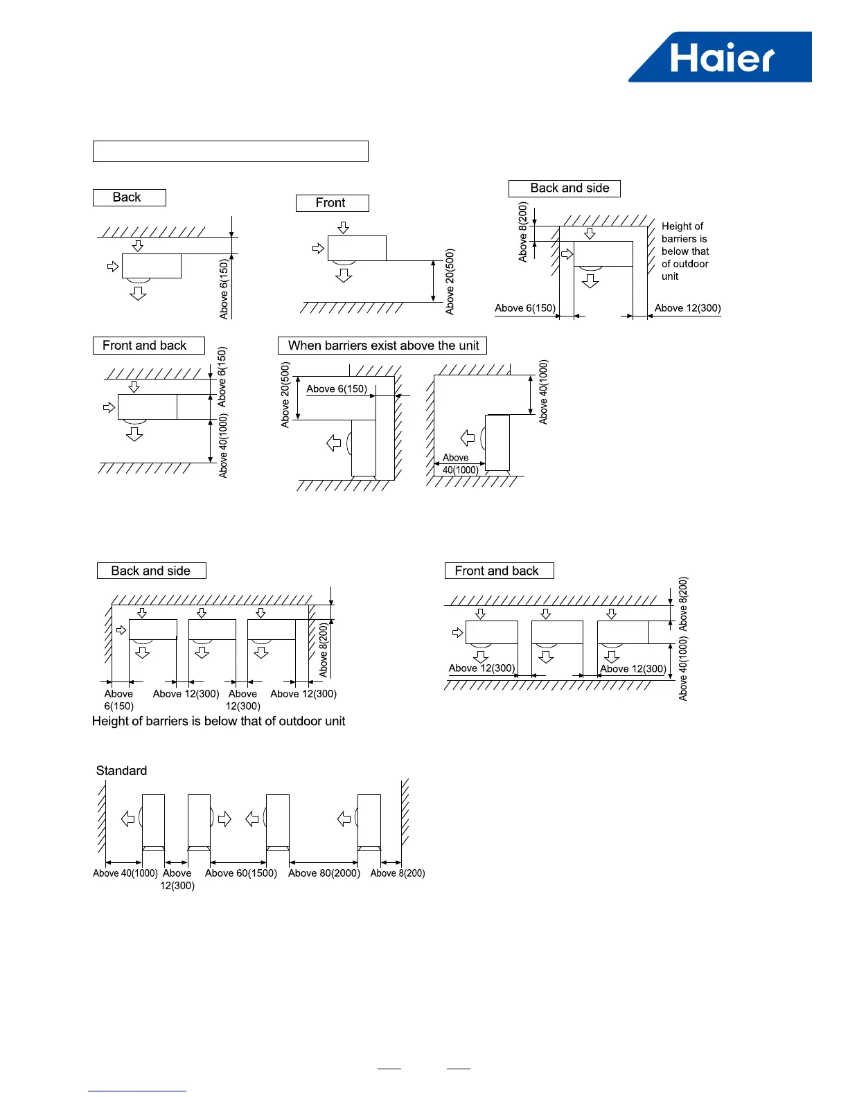
Selection of installation location of outdoor
(1) Single-unit installation (unit: in.(mm))
(2) Multi-unit installation (unit: in.(mm))
(3) Multi-unit installation in front and back (unit: in.(mm))
The top and two side surfaces must be exposed to open space, and barriers on at least one side of the front and
back shall be lower than the outdoor unit.
The top and two side surfaces must be exposed to open space, and barriers on at least one side of the front and
back shall be lower than the outdoor unit.
The installation service spaces shown in the illustrations are based on an air intake temperature of 95°F(35°C)(DB)
for COOL operation. In regions where the air intake temperature regularly exceeds 95°F(35°C)(DB), or if the heat
load of outdoor units is expected to regularly exceed the maximum operating capacity, reserve a larger space
than that indicated at the air intake side of units.
Regarding the required air outlet space, position the units with consideration to the space required for the onsite
refrigerant piping work as well. Consult your dealer if the work conditions do not match those in the drawings.

Table of Contents

Other manuals for Haier AU052FPERA

Related product manuals