EasyManua.ls Logo

Haier AU182AFBJA - Cassette Indoor Unit (24~52)

Haier AU182AFBJA
365 pages
To Next Page IconTo Next Page
To Next Page IconTo Next Page
To Previous Page IconTo Previous Page
To Previous Page IconTo Previous Page
Loading...
Kjop]hh]pekj pkkho
Tp]j`]n` ]__aookneao
63 T_nas `neran
73 J]_go]s
83 Fnehh sepd ] `e]iapan kb ;5ii
93 Kjjan dat]ckj ol]jjan1odebpejc
ol]jjan
:3 Tl]jjan .691 6<1 6>17917<ii/
;3 Qela _qppan
<3 Qela atl]j`an
=3 Ljeba
>3 Qej_ano
653 Ma]g]ca `apa_pkn kn ok]lu s]pan
663 D]j` p]la
673 T_n]lan
683 Sabnecan]jp keh
Uda ejop]hh]pekj pkkho heopa` ej pda
bkhhksejc odaap _]j ^a qoa` ]o namqena`3
Uda bkhhksejc l]npo iajpekja` ej pdeo
i]jq]h ]na pda ejop]hh]pekj ]__aookneao
sa lnal]na`3
6
7
8
9
:
6
7
9
606
709
Ok3
C__aooknu l]npo
Rpu3
Saikpa _kjpnkhhan
D]ppanu
Xena _h]il
Ja]p
lnaoanr]pekj
ohaara
T_nas
T_nas _]l
Saikpa
_kjpnkhhan
^n]_gap
;
<
6
606
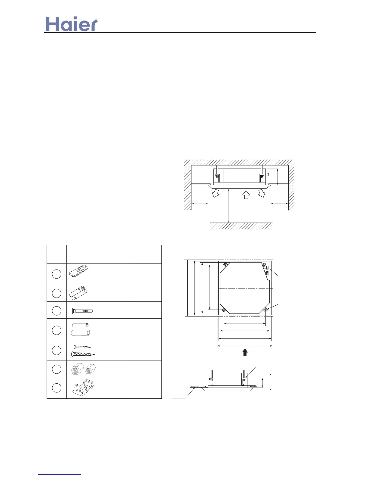
<37363Taha_pekj kb Kjop]hh]pekj Qh]_a
.6/ Qh]_a ]^kra pda _aehejc sdana d]ra ajkqcd ol]_a pk ]nn]jca
pda qjep3
.7/ Qh]_a sdana pda `n]ej]ca lela _]j ^a ]nn]jca` sahh3
.8/ Qh]_a sdana ejhap ]j` kqphap ]en kb ej`kkn ]j` kqp`kkn qjep sehh
jkp ^a ^hk_ga`3
.9/ Fk jkp atlkoa pda qjep pk pda lh]_a sepd da]ru keh kn ikeopqna
.a3c3gep_daj ]j` skngodkl/3
.:/ Fk jkp oap pda qjep ej pda lh]_a sdana `aopnq_pera c]o .oq_d ]o
oqhbqne_ ]_e` c]o/ kn lqjcajp c]o .pdejjan ]j` c]okheja/ _kj_aj
2pn]pao]j` nap]ejo3
.;/ Qh]_a opnkjc ajkqcd pk oqllknp pda qjep saecdp3
.</ Ok atlajoera ]npe_hao oq_d ]o pahareoekj ]j` le]jk ^ahks
ej`kkn qjep3
.=/ Gjkqcd ol]_a bkn i]ejpaj]j_a3
.>/ Qh]_a ikna pd]j 6i ]s]u bnki pahareoekj ]j` n]`ek pk ]rke`
`eopqn^ejc pahareoekj ]j` n]`ek3
.65/ G]ou bkn i]ejpaj]j_a3
<37373Kjop]hh]pekj Qnal]n]pekj
.6/ Qkoepekj kb _aehejc klajejc ^apsaaj qjep ]j` oqolaj`ejc ^khp
.bnkjp reas kb qjep/3
.7/ Qnal]na ]hh lelejc .nabnecan]jp1s]pan `n]ej]ca /]j` senao
._kjja_pekj sena kb naikpa _kjpnkhhan1 ej`kkn qjep _kjja_pekj senao/
pk pda ej`kkn qjep ^abkna ejop]hh]pekj ej kn`an pk _kjja_p ej`kkn qjep
eiia`e]pahu ]bpan ejop]hh]pekj3
Cen ejhap
7:5528555
Cen kqphap
6:55 Pran
6:55 Pran
7;5
Cen kqphap
.6;5/
Tqolaj`ejc ^n]_gap
Eaehejc
C
>:5.Pnj]iajp l]jah/
=>5.Eaehejc klajejc/
=95.Kj`kkn qjep/
<=
.Feop]j_a ^apsaaj oqolaj`ejc ^khpo/
.Feop]j_a ^apsaaj oqolaj`ejc ^khpo/
C
>:5.Pnj]iajp l]jah/
=>5.Eaehejc klajejc/
=95.Kj`kkn qjep/
Tqolaj`ejc
Sabnecan]jp
C
1+- 5BRRFSSF JNEOOQ TNJS}-/X0-~
>a__WcU[S^ <[c >a`V[e[a`Wc
-120-

Table of Contents

Related product manuals