EasyManua.ls Logo

Harmar Mobility AL010 - Page 28

Harmar Mobility AL010
36 pages
Print Icon
To Next Page IconTo Next Page
To Next Page IconTo Next Page
To Previous Page IconTo Previous Page
To Previous Page IconTo Previous Page
Loading...
Outside Vehicle Lis: Installaon & Service Manual
06DEC19 | P/N: 630-00106 REV A
28
OUTSIDE VEHICLE LIFTS: SECTION 6
LIFT ADJUSTMENTS
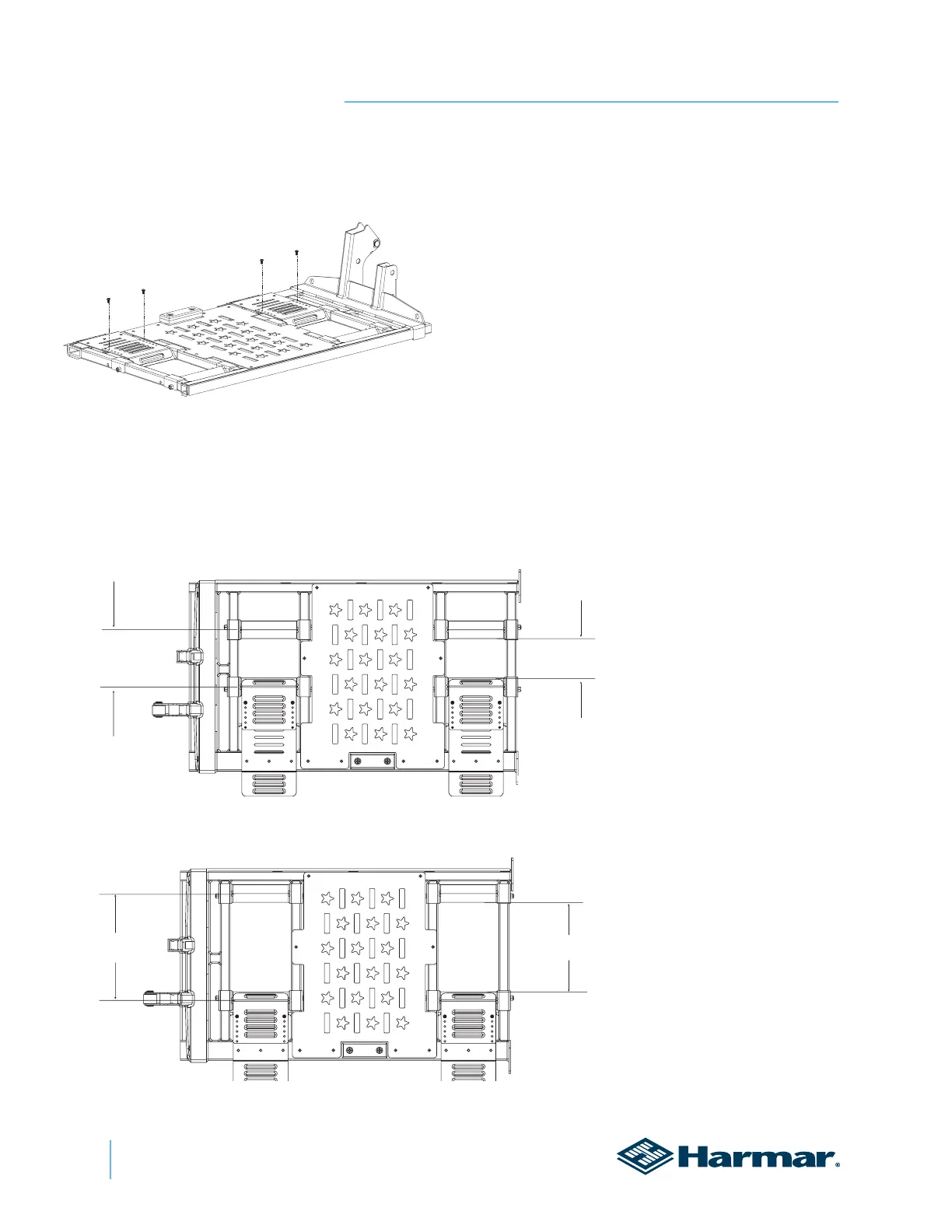
6. 
screwdriver. See Figure 6-28.

7. 



References for AL580-HDX
" increments.


5.75ˈˈ
4.00ˈˈ
PEAK TO PEAK
EDGE TO EDGE
10.75ˈˈ
9.00ˈˈ
PEAK TO PEAK
EDGE TO EDGE

Other manuals for Harmar Mobility AL010

Related product manuals