EasyManua.ls Logo

Heatilator CNXT70IT - 16 Reference Materials; Appliance Dimension Diagram

Heatilator CNXT70IT
55 pages
Print Icon
To Next Page IconTo Next Page
To Next Page IconTo Next Page
To Previous Page IconTo Previous Page
To Previous Page IconTo Previous Page
Loading...
Heatilator • CNXT Series • 4000-011 Rev N • 11/05 49
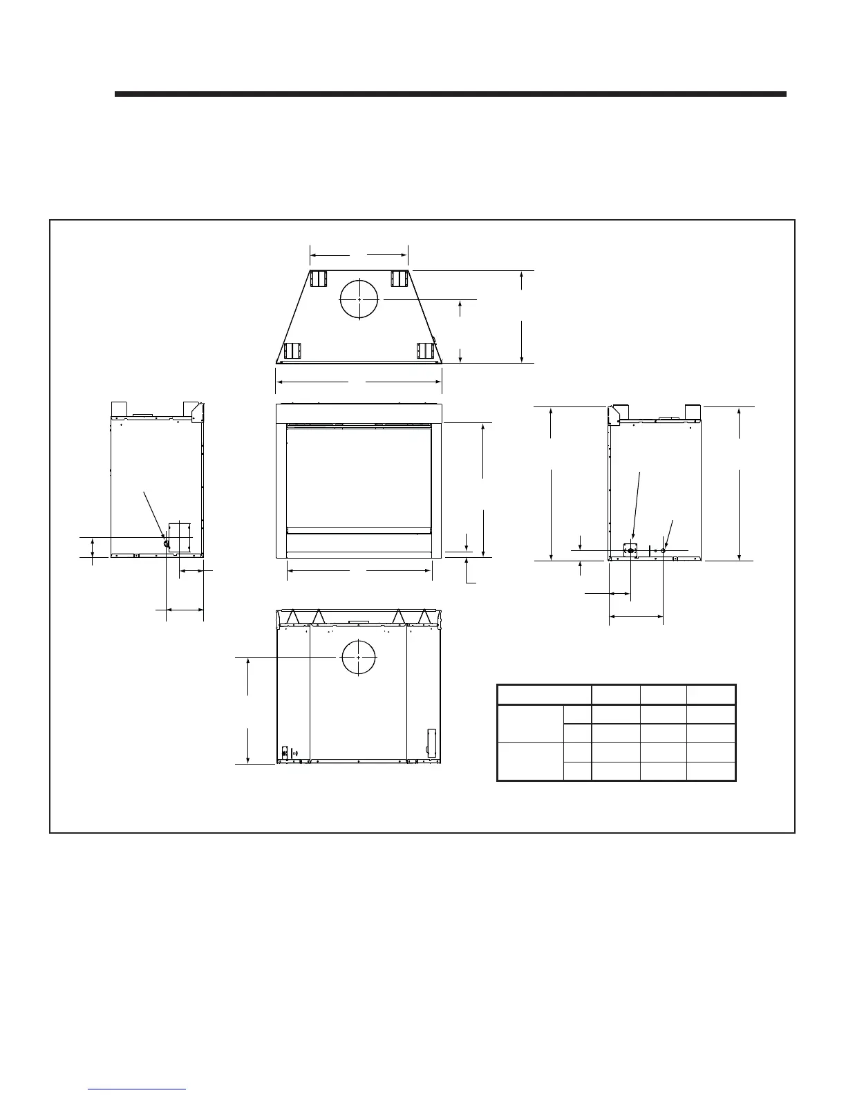
A. Appliance Dimension Diagram
Dimensions are actual appliance dimensions. Use for reference only. For framing dimensions and clearances refer to Sec-
tion 3.
Figure 16.1 Appliance Dimensions
16
16
Reference Materials
B
38 in.
(965 mm)
1-1/2 in.
(38 mm)
26-1/2 in.
(673 mm)
2-1/2 in.
(64 mm)
6 in.
(152 mm)
14-3/8 in.
(365 mm)
Electric
Access
3-5/8 in.
(92 mm)
6-3/8 in.
(162mm)
Gas Line
Access
9-1/4 in.
(235 mm)
C
A
23 in.
(584 mm)
15 in.
(381 mm)
Alternative
Gas Line
Access
33-1/2 in.
(851 mm)
38-5/8 in.
(981 mm)
Model # A B C
CNXT70I
Series
in. 41 36 24-1/2
mm 1041 914 622
CNXT90I
Series
in. 47 42 30-1/2
mm 1194 1067 775

Table of Contents

Related product manuals