EasyManua.ls Logo

HELI CPD18 - Page 57

Default Icon
131 pages
Print Icon
To Next Page IconTo Next Page
To Next Page IconTo Next Page
To Previous Page IconTo Previous Page
To Previous Page IconTo Previous Page
Loading...
54
B-
300W
-
80VDC -1 2V D C
+12V
EN C B
PT HE RM ( +)
V
300A
W
-B
B-
DC-DC
100A
-
-
12V+
C
EN C A
V
+B
F1
MC
80V+
W
U
-B
B+
KEY
COMMON
2A2
2A1
ACE2 (2uc)80V/350A Pump controller
250A
+B
F2
-B-B
KS
ES 4 RW
1 RW
3 RU
2 RY
F5-15A
F3-10A
1A13
1A6
1A3
1A5
1A4
1A1
1A2
KEY
BA CK WO R D
FORWORD
PPOT
CPOT1
NPOT
H.B.
1A14
1A7
1A8
1A15
1A23
CA N H
CA N L
1A21
1A20
F30-15A
50
F10-10A
32
31
F40-15A
70
F60-10A
40
33
34
XLR
XLL
FL
XSW
12V-40W
F20-10A
30
42 41
QL
HL
LSW
3A2
CA N H
CA N L
20
CA N T
3A4
3A3
3A18
3A7
3A22
3A15
B+
21
22
S1
Re ver se
bu zze r
Reverse lamp
SL
100B /1 00C/100D
1A11
K3
HSW
HORN
35
RC
S3
12V-11W
12V-40W
12V-6W
12V-11W
Speed encoder
3A12
3A13
M MM M
12V-21W
12V-40W
12V-35W
12V-40W
12V-5W
12V-21W
CL
12V-21W
Caution lamp
53 51 52
Em er ge n cy S W.
Ke y S W.
Ma i n co n ta ct o r
3A1
KEY
10
Mo de SW .
1A9
SEAT
MO DE L S
MO DE L P
3A16
OPSH
OPSH
3A19
3A20
K1
OU T 2
BUZZER
12VDC
12VDC
12VDC
3A17+B AT T I N
0 Y
An ti- low er
el ect rom agn et i c va l ve
12V-11W
MO DE L E
1A16
NLC
NENC
1A10CPOT2
MC C OIL
3A6
P.B.
ENABLE
Traction Motor
OPTION
ACE3 80V/450A Traction controller
Liftin g e na bl e
蜂鸣提示Caution buzzer
后大灯Rear head lamp
刮水器Wiper
驾驶室顶灯Cab lamp
电风扇Cab fan 风扇开关Fan Sw.
顶灯开关Cab lamp SW.
雨刷开关Wiper SW.
后大灯开关Rear head lamp Sw.
警示灯开关Caution lamp Sw.
SMART DISPLAY 80V
B-
B-
B-
Ac c. po t.
Pump Motor
Speed encoder
2A23
2A22
PT HE RM ( +)
NTHERM(-)
2A8
2A14
EN C B
+12V
2A7
2A15
GND
EN C A
+5V
2A5
2A4
2A6
2A3
Li ft in g C PO T
2A13
Lifting
sensor
CA N T
1A12
2A21
2A12
2A11
2A20
CA N H 1
CA N H 2
CA N L 2
CA N L 1
Ch an ne l C
3A10
3A14
Ch an ne l B
St ee ri n g
Encoder
12Vf ro m DC
op tio nal f un c ti o n
Muc
Suc
HY DR OS T EE R3A11
Battery
management
system
+ +
_
_
12V
80V
B- B-
DC -D C
C
Coil
NETWORKING DEVICE
VCC
WO RK SI GN AL
GND
CANL
CANH
op tio nal f un c ti o n
0 Y
0 Y
0 Y
1A21
1A20
0 Y
op t i o na l f u n cti o n
3A11
0 Y
br ake S w.
S2
1A17
1A19
20
12VDC
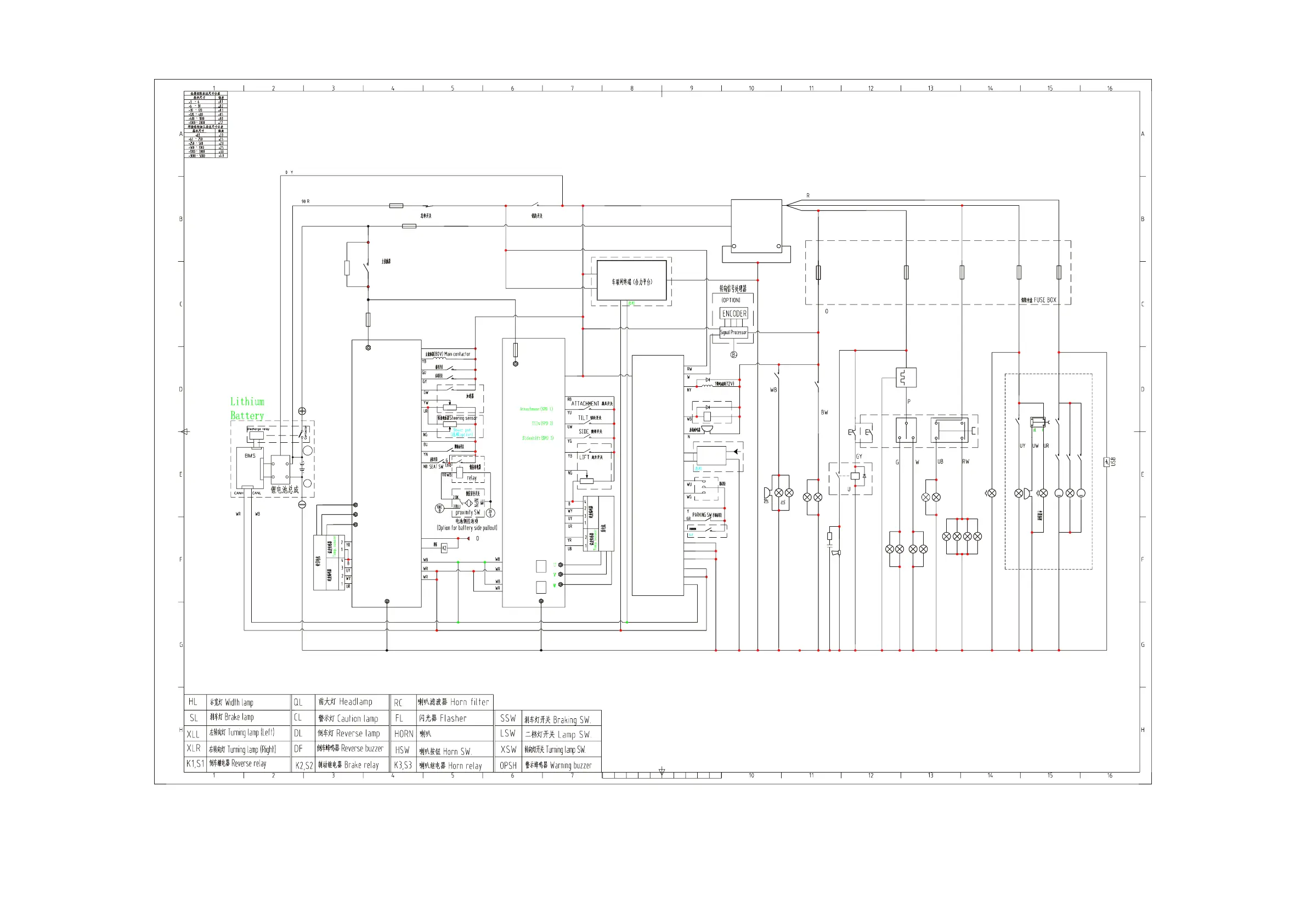
Figure 4-12 Circuit diagrams of electric system (CPD3035-GB2Li)

Table of Contents

Related product manuals