EasyManua.ls Logo

Hitachi HTA-DD3E - Wiring Diagram; Overall Wiring Schematic

Hitachi HTA-DD3E
53 pages
Print Icon
To Next Page IconTo Next Page
To Next Page IconTo Next Page
To Previous Page IconTo Previous Page
To Previous Page IconTo Previous Page
Loading...
 9 
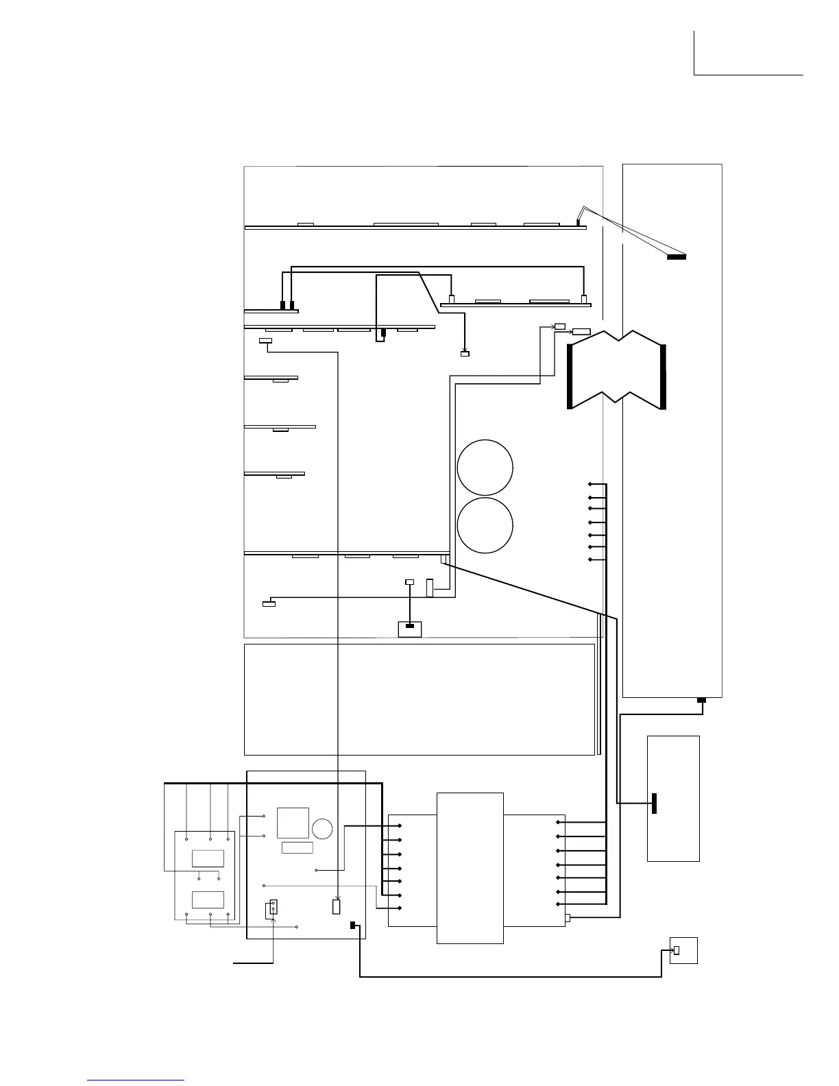
HTA-DD3
WIRING DIAGRAM
FL DISPLAY UNIT
CN2B
CN1B
CN1A
CN1BCN2A
W17A
W15A
W16A
W18A
W14A
W19A
W13A
CN204
CN204A
CN201A
CN14
CN12
TUNER/VOL UNIT
AUDIO IN. UNIT
DIGITAL IN. UNIT
VIDEO(C)IN. UNIT
VIDEO(S)IN. UNIT
MAIN UNIT
CN22
PG22
PG13
CN205
THERMAL
UNIT
VIDEO(COMP.)IN. UNIT
SPEAKER OUT. UNIT
CN206
PG14
CN201
DSP UNIT
PG205
PG206
W19B
W18B
W17B
W16B
W15B
W14B
W13B
POWER T.(2nd) UNIT
W5B
W7B
W9B
W6B
W8B
W10B
W4B
POWER T.(Pry.) UNIT
POWER CONTROL UNIT
PG3
CN13
CN3
PHONES/SPEAKER SW UNIT
POWER SW UNIT
*PG15
PG12
W3A
W1A
W1B W2B
W6A W7A
W10A W9A W8A
W3B
W2A
POWER CORD
PG25
*VOLTAGE SELECTOR
(for W, WUN, WAU)
REMARKS * SHOULD BE FOLLOW PWB ASS'Y.
*CN15

Related product manuals