EasyManua.ls Logo

Hitachi SJ100 Series

Hitachi SJ100 Series
160 pages
To Next Page IconTo Next Page
To Next Page IconTo Next Page
To Previous Page IconTo Previous Page
To Previous Page IconTo Previous Page
Loading...
SJ100 Inverter
Inverter Mounting
and Installation
211
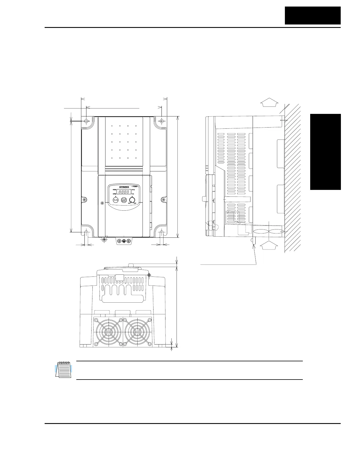
Dimensional drawings continued...
NOTE: Model SJ100-075LFU has (2) fans. All other models in this housing have
(1) fan.
182 (7.17)
160 (6.30)
236 (9.29)
170 (6.69)
Air
Air
257 (10.12)
1
7 (0.28)
7 (0.28)
7 (0.28)
6 (0.24)
Ground Terminal
SJ100 -055LFU
-055HFE
-055HFU
-075LFU
-075HFE
-075HFU

Other manuals for Hitachi SJ100 Series

Related product manuals