EasyManua.ls Logo

Honeywell ERX - Installation and Function Checks; Installation Procedures and Verification; Function Check Steps

Honeywell ERX
84 pages
Print Icon
To Next Page IconTo Next Page
To Next Page IconTo Next Page
To Previous Page IconTo Previous Page
To Previous Page IconTo Previous Page
Loading...
15
Installation and Operation of the ERX Recorder
Upon receiving the recorder, be sure that all items received are in good condition. Check the
packing list to make sure the shipment is complete. Report to your Mercury Representative any
damages and immediately file any shipping damage claims with the carrier who delivered the
shipment.
Function Check
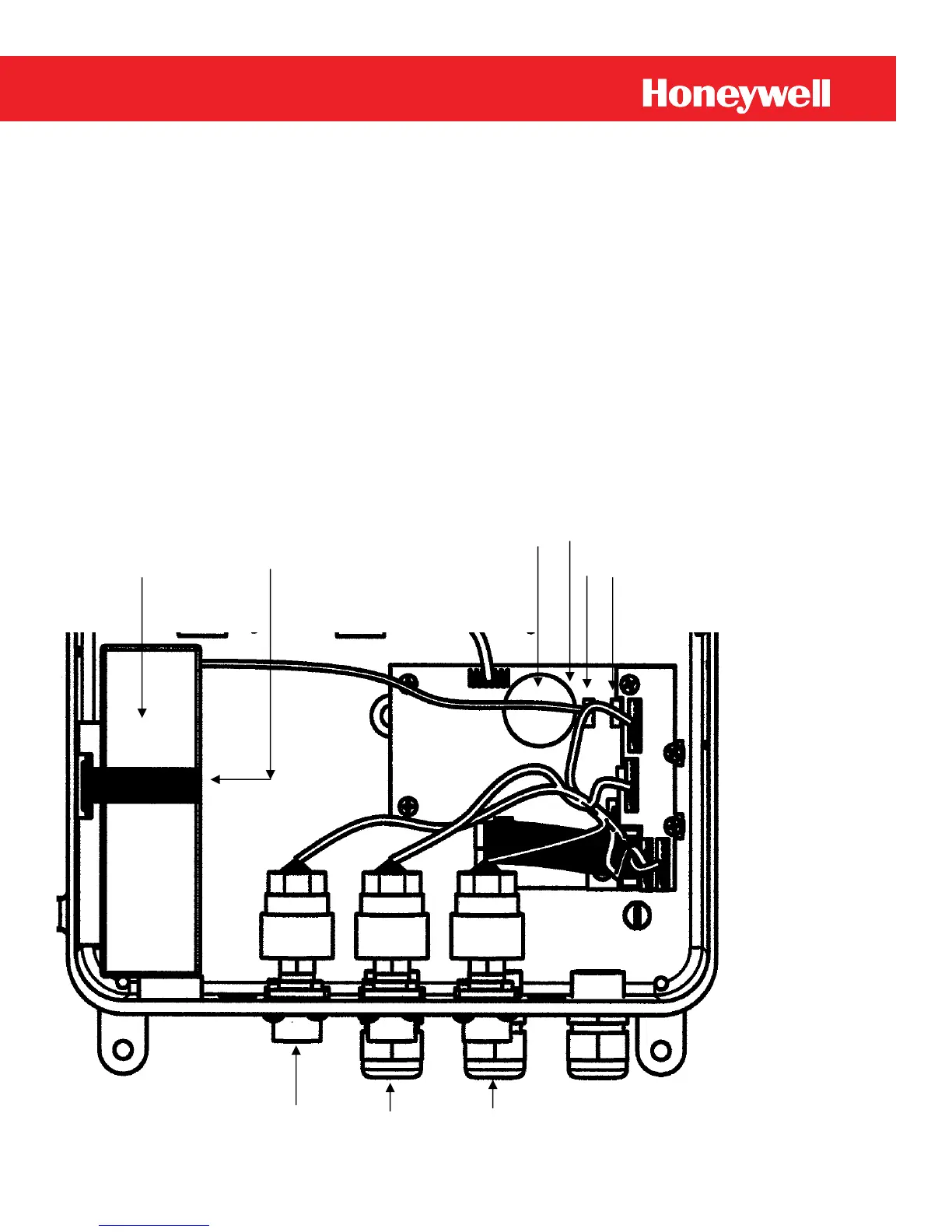
1. Open the case door, check for any loo
se parts, and verify that all connectors are properly
seated.
2. • Ensure Super Cap jumper is installed onto both pins of J1
3. • Remove Velcro strap that secures the Alkaline Receptacle Battery Pack (default battery
pack)
4. • Remove battery pack; open the cover by pulling on the Velcro tab underneath pack
5. • Install four alkaline D-cell batteries, observe polarity, secure cover and replace
battery
pack in the recorder, then secure with Velcro strap.
6. • Attach battery pack lead to either J3 or J4; J3 and J4 are parallel.
J1 Super Cap Jumper
Super Cap
Battery Velcro Strap J3 J4
P1 P2 P3

Table of Contents

Related product manuals