EasyManua.ls Logo

Honeywell Excel 800 LION - Connection Examples

Honeywell Excel 800 LION
88 pages
To Next Page IconTo Next Page
To Next Page IconTo Next Page
To Previous Page IconTo Previous Page
To Previous Page IconTo Previous Page
Loading...
Excel 800 LION
43 EN1B-0375GE51 R0308
Connection Examples
Active Sensor and Potentiometer
7
4
7
3
7
7
7
2
7
6
7
1
7
5
22
V
AUX
V
AUX
21
9
74 78
73
72
71
1
0
25 26
G
N
D
24
V~
2
4
V
~
24
V~
24
V~0
2
4
V
~
0
24
V~ 0
COM
B
C
O
M
B
COM
B
COM
A
C
O
M
A
COM
A
G
N
D
1
2
3
1 2 3 4
5
6 7
A1 A2 A3 A4 A5 A6 A7
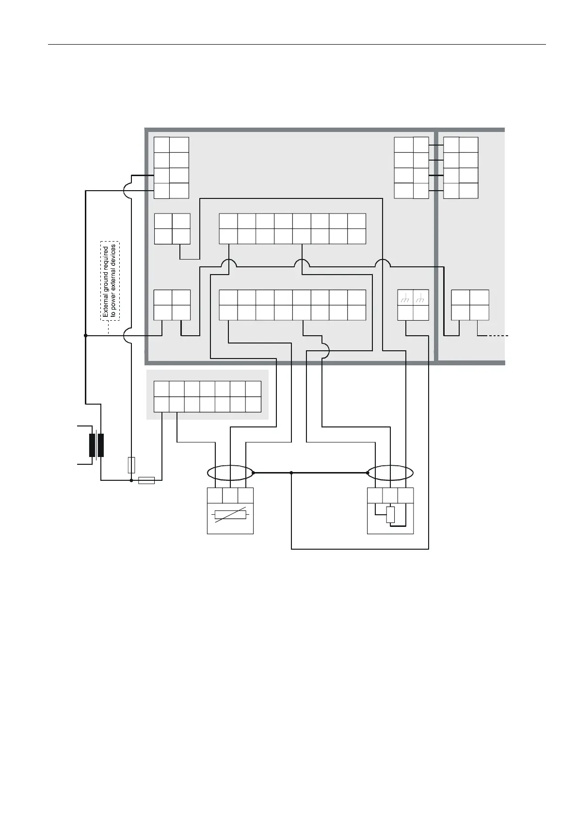
CLIOP821A Analog Input Module
1 2 3
0...10V
F1
F2
Shield
internally
connected
to
DIN
rail
11
GND
12
GND
13
GND
14
GND
1
5
GN
D
1
6
G
N
D
1
7
G
N
D
1
8
G
N
D
1
AI1
2 3 4 5
6
7
8
AI
2
A
I
3
A
I
4
A
I
5
A
I
6
A
I
7
A
I
8
Optional
Aux.
Terminal
Module
XS814
9
GND
10
GND
Active
Sensor
1:
24V~
power
supply
2:
0...10
VDC
signal
3:
GND
Aux.
Voltage
+
Pot.
1:
signal
2:
GND
3:
10
VDC
auxiliary
CLIOP821A
Fig. 62 Analog input module, wiring example 1
For fusing specifications see section "Fusing Specifications" on page 11.

Table of Contents

Related product manuals