EasyManua.ls Logo

Hotsy 992SS - Page 44

Hotsy 992SS
48 pages
Print Icon
To Next Page IconTo Next Page
To Next Page IconTo Next Page
To Previous Page IconTo Previous Page
To Previous Page IconTo Previous Page
Loading...
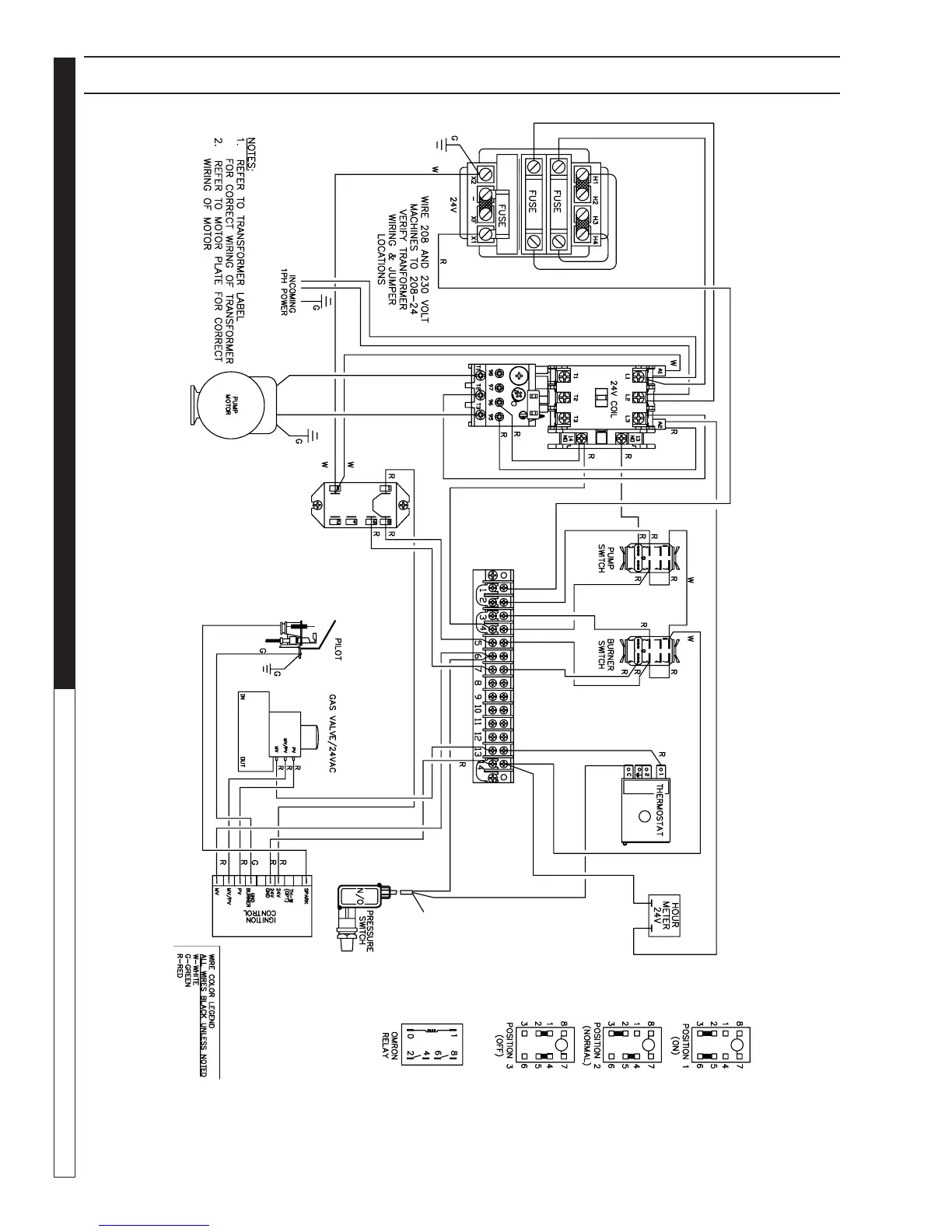
97-6574 • HOTSY 900-1400 GAS FIRED • REV. 10/05
PRESSURE WASHER Wiring Diagram
44
900/1400 1 PH W/ELECTRIC IGNITION

Related product manuals