EasyManua.ls Logo

HP ProLiant DL320e Gen8 - Optical Drive Cabling

HP ProLiant DL320e Gen8
96 pages
To Next Page IconTo Next Page
To Next Page IconTo Next Page
To Previous Page IconTo Previous Page
To Previous Page IconTo Previous Page
Loading...
Cabling 58
Item Description
3
Power cable
4
Capacitor pack cable
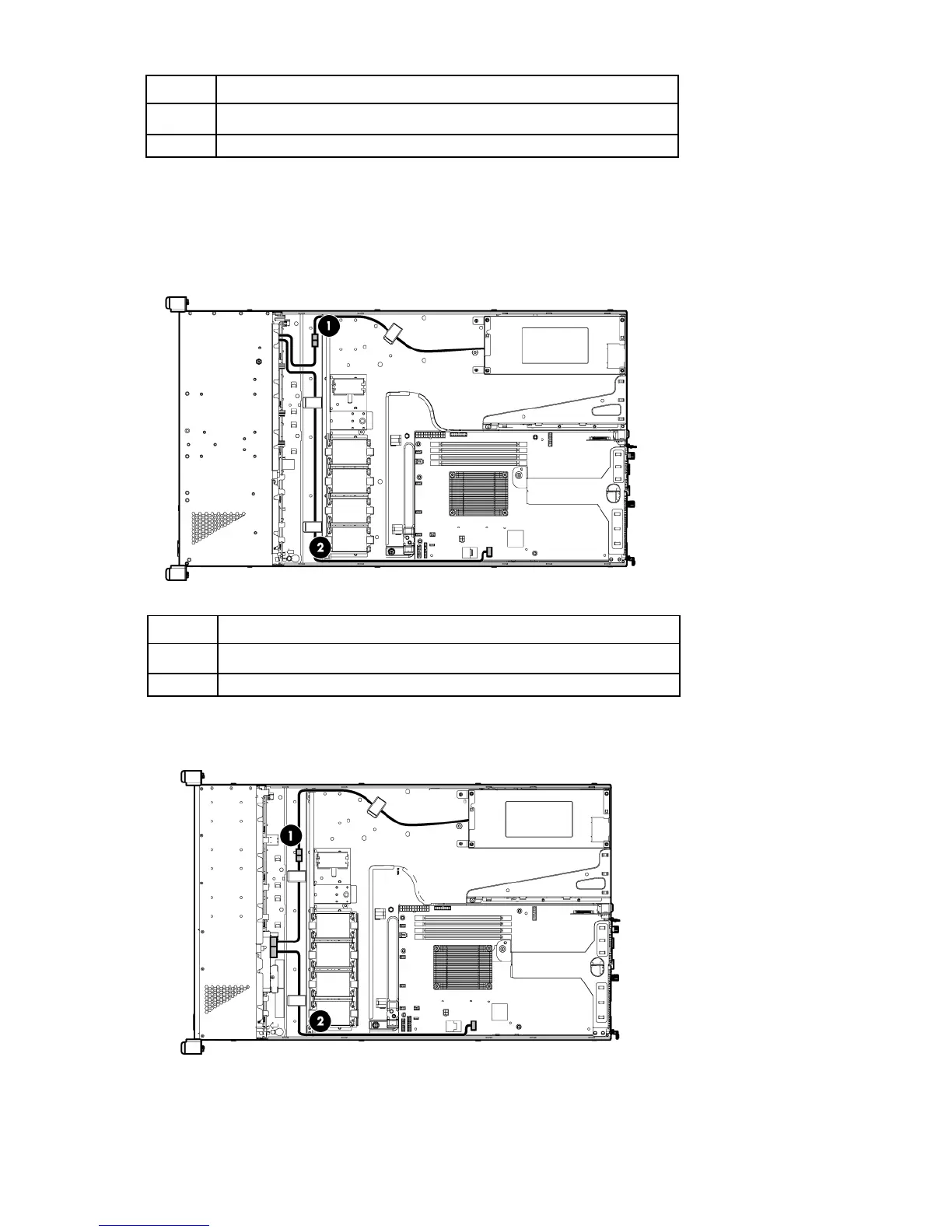
Optical drive cabling
LFF drive cage model
Item Description
1
Optical drive power cable
2
Optical drive SATA cable
SFF drive cage model

Table of Contents

Other manuals for HP ProLiant DL320e Gen8

Related product manuals