EasyManua.ls Logo

HP ProLiant DL320e Gen8 - Power Supply Cabling; Nonredundant Power Supply Cabling

HP ProLiant DL320e Gen8
96 pages
To Next Page IconTo Next Page
To Next Page IconTo Next Page
To Previous Page IconTo Previous Page
To Previous Page IconTo Previous Page
Loading...
Cabling 59
Item Description
1
Optical drive power cable
2
Optical drive SATA cable
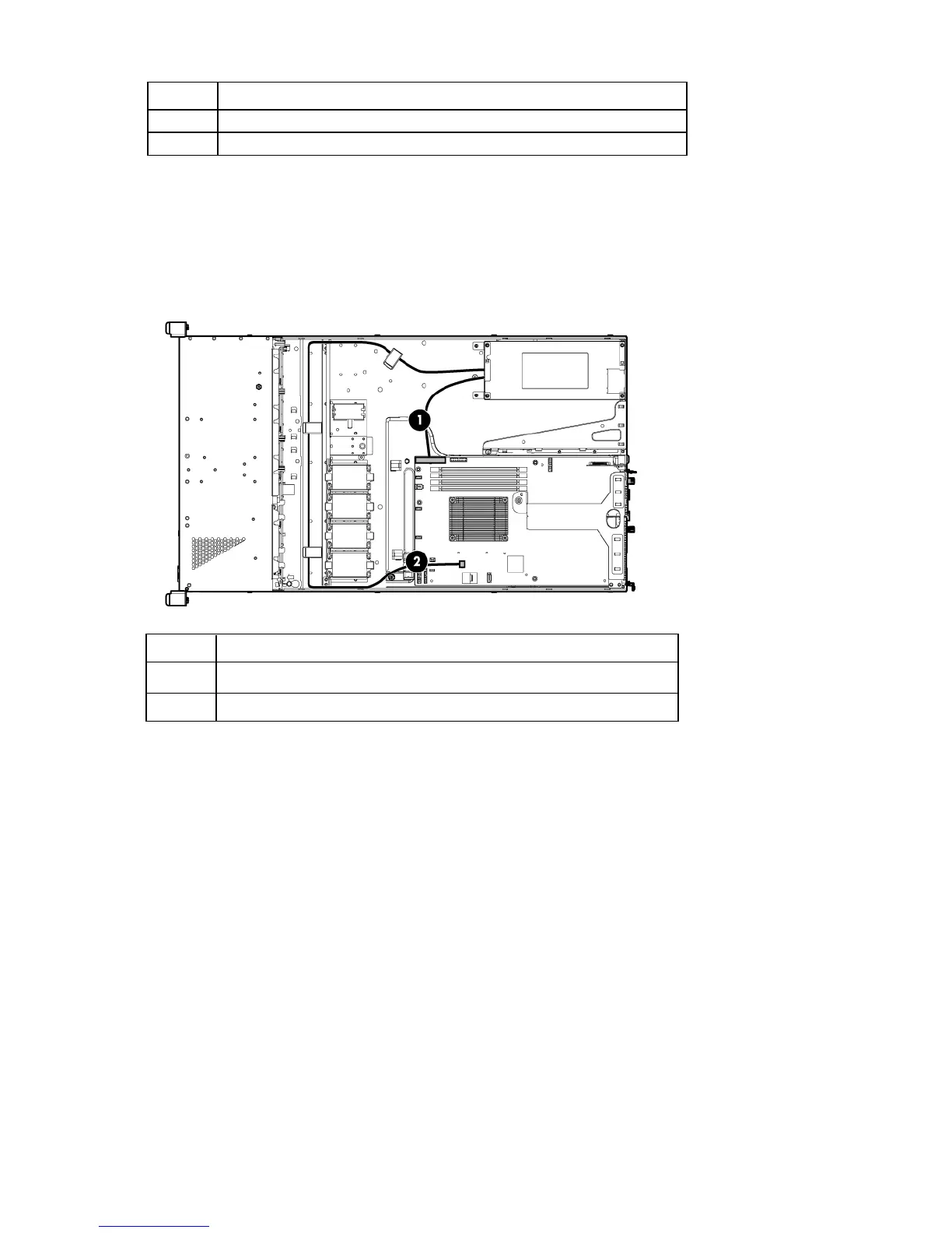
Power supply cabling
Nonredundant power supply cabling
Item Description
1
24-pin power supply cable
2
4-pin power supply cable

Table of Contents

Other manuals for HP ProLiant DL320e Gen8

Related product manuals