EasyManua.ls Logo

HTW VAW 2 - Dimensões

HTW VAW 2
Print Icon
To Next Page IconTo Next Page
To Next Page IconTo Next Page
To Previous Page IconTo Previous Page
To Previous Page IconTo Previous Page
Loading...
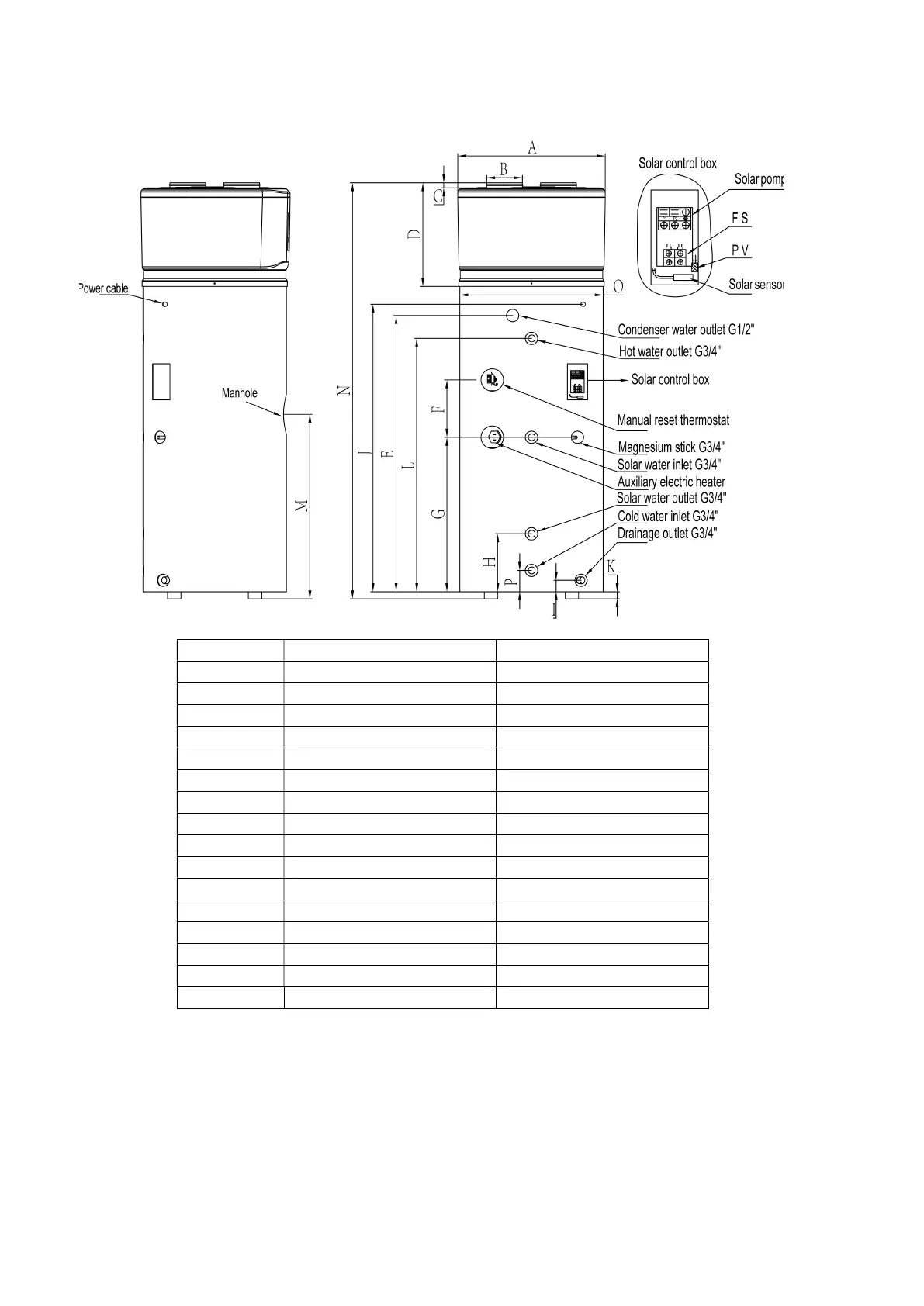
158
200L 300L
A
Φ576 Φ658
B
Φ160 Φ160
C
35 35
D
455 460
E
1135 1230
F
270 254
G
600 665
H
445 250
I
41 41
J
1185 1280
K
35 35
L
1020 1130
M
795 825
N
1750 1850
O
Φ560 Φ640
P
250 85
Remark:With magnesium stick
1) The solar heat exchange coil is optional.
2) Add the solar control. While the parameter 14= 1, solar energy control is available. The
terminal “TO PUMP” is connected solar energy water pump, “FS” is connected the flow switch of
solar water circuit, “SOLAR SENSOR” is testing the temp of solar thermal collector.
3) The Magnesium stick is an anti-corrosion element. It is assembled in the water tank to avoid
the creation of fur around the inside tank and to protect the tank, and other components. It can
help to extend the life-span of the tank. Check the magnesium stick every half year and
change it if it has been used out
Dimensions
200L, 300L

Table of Contents