EasyManua.ls Logo

Huawei UPS5000-E-200K-FM - Page 31

Huawei UPS5000-E-200K-FM
300 pages
Print Icon
To Next Page IconTo Next Page
To Next Page IconTo Next Page
To Previous Page IconTo Previous Page
To Previous Page IconTo Previous Page
Loading...
UPS5000-E-(50 kVA-300 kVA)
User Manual (50 kVA Power Modules)
2 Overview
Huawei Proprietary and Confidential
Copyright © Huawei Technologies Co., Ltd.
22
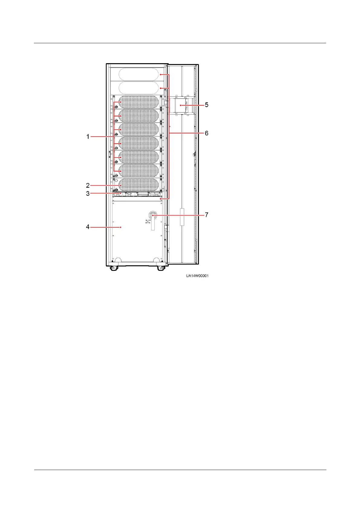
Figure 2-10 UPS5000-E-300K-SM front view (with the door open)
(1) Power
modules
(2) Bypass
module
(3) Control module
(4) Power distribution
subrack cover
(5) Monitor
display unit
(6) Filler
panels
(7) Maintenance bypass
switch

Table of Contents

Other manuals for Huawei UPS5000-E-200K-FM

Related product manuals