EasyManua.ls Logo

Hubbell Versa-Tech I - Dimensions - Crossarm Mount

Hubbell Versa-Tech I
50 pages
Print Icon
To Next Page IconTo Next Page
To Next Page IconTo Next Page
To Previous Page IconTo Previous Page
To Previous Page IconTo Previous Page
Loading...
PSP8620311
Rev. E
8
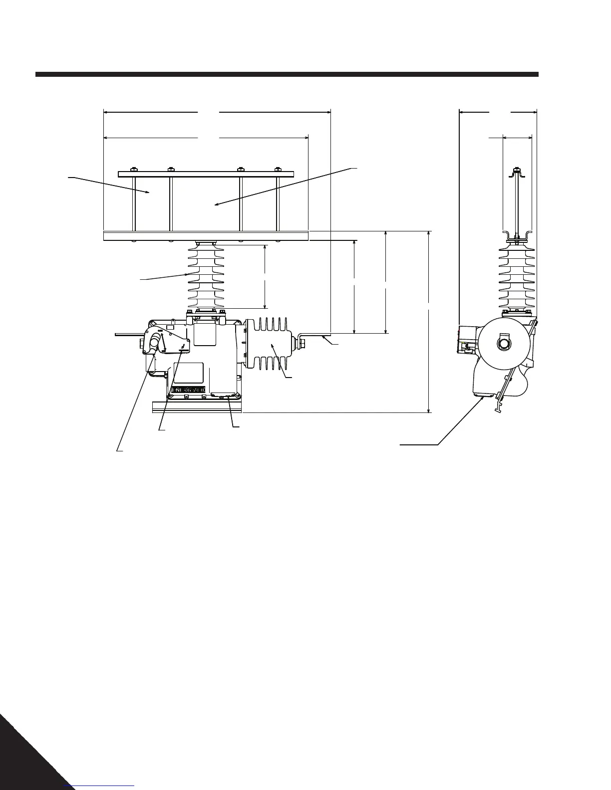
Dimensions - Crossarm mounting
1 — Overview
ADJUSTABLE
3" - 9-1/2"
ADJUSTABLE
5-1/8" - 10-1/4"
TYPICAL
OPERATING LEVER
LOCKOUT INDICATOR BEACON
AND COUNTER
2-HOLE NEMA
PAD (STANDARD)
TYPICAL
VACUUM INTERRUPTER
LEAKAGE DISTANCE - 39.4"
LOCKOUT INDICATOR BEACON
AND COUNTER
NON-RECLOSE LEVER
28.0
31.1
4.0
10.6
24.9
8.7
12.7
14.0
Side ViewFront View

Other manuals for Hubbell Versa-Tech I

Related product manuals