EasyManua.ls Logo

HygroMatik CompactLine - Equipment Dimensions C01 - C58

HygroMatik CompactLine
66 pages
Print Icon
To Next Page IconTo Next Page
To Next Page IconTo Next Page
To Previous Page IconTo Previous Page
To Previous Page IconTo Previous Page
Loading...
Page 17
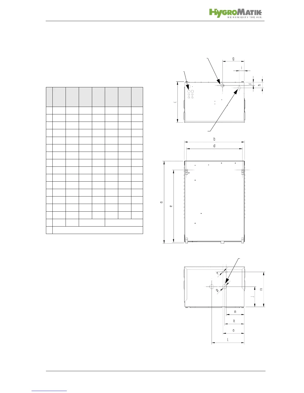
5.1.2 Equipment Dimensions C01 - C58
C01 C02 C06 C10 C17/
C22/
C30
C45 C58
a 370 350 438 480 653 707 790
b 355 392 401 414 480 527 615
c 171 221 187 217 283 325 392
d 280 317 351 369 435 482 564
e 293 273 394 436 609 657 740
f31313434383838
g 130 130 130 119 210 250 300
h40404343635861
i45453035355050
j 105 125 102 119 152 175 202
k 105 105 102 100 133 155 199
l------328
m 135 178 145 173 233 255 343
n 105 74 77 68 86 108 181
o------215
p27 27 26 42
r18,5
View from below
Rear view
Viem from
top
Cable entries
Waste water connection
Steam outlet
Water inlet

Table of Contents

Related product manuals