EasyManua.ls Logo

HygroMatik CompactLine - Page 23

HygroMatik CompactLine
66 pages
Print Icon
To Next Page IconTo Next Page
To Next Page IconTo Next Page
To Previous Page IconTo Previous Page
To Previous Page IconTo Previous Page
Loading...
Page 23
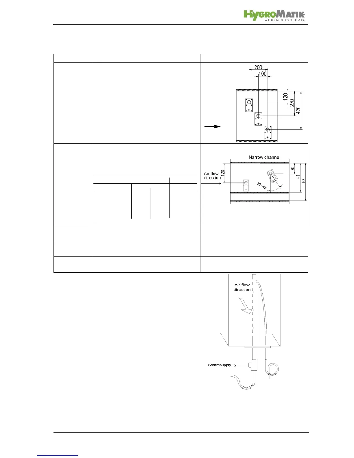
Steam manifold
placement:
Horizontal installation of the steam manifolds is preferred. Howe-
ver, installation from below into the air duct is possible.
Air duct Positioning of steam manifolds Sample
flat Staggered vertically and laterally
Air flow
very flat By tilting the steam manifold 30 - 45°
towards the air flow direction, the mini-
mum upper clearance can be reduced
to 70mm.
min. distances: H1[mm] H2[mm]
30° 45°
DN25 182 168 225
DN40 193 179 230
very flat duct
narrow, high Identical lenghts one on top of the other.
Staggered laterally if possible.
square Identical lenghts, staggered vertically
and laterally
low, very
wide
facing each other
Vertical installation of
steam manifold

Table of Contents

Related product manuals