EasyManua.ls Logo

HygroMatik SteamKit E - Page 20

HygroMatik SteamKit E
44 pages
Print Icon
To Next Page IconTo Next Page
To Next Page IconTo Next Page
To Previous Page IconTo Previous Page
To Previous Page IconTo Previous Page
Loading...
Page 20
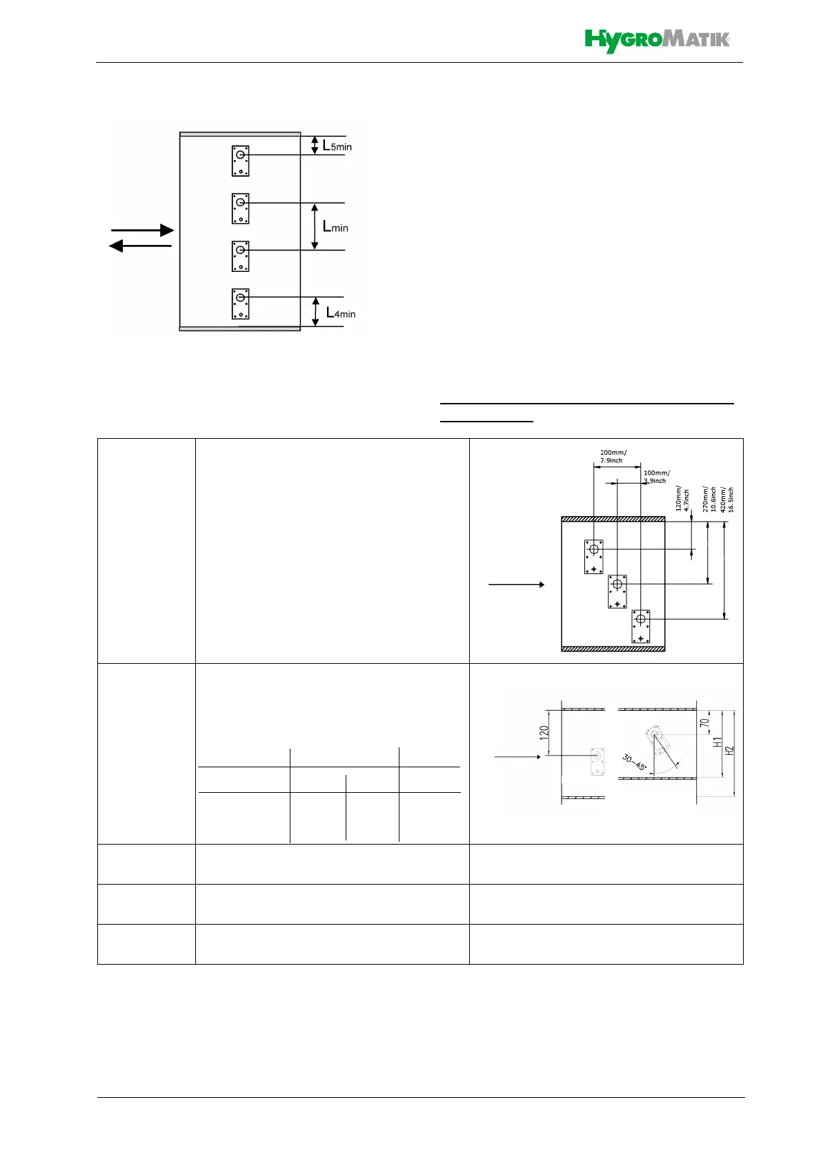
Minimum distance for condensation
avoidance:
L
min = 210mm/8.3 inch: „Steam manifold -
Next steam manifold“ distance
L4
min = 120mm/4.7 inch: „Lowest steam
manifold - Duct bottom plane“ distance
L5
min = 120mm/4.7 inch: „Highest steam
manifold - Duct ceiling plane“ distance
Steam manifold arrangement for special air
duct shapings
Air flow
direction
flat steam manifold laterally staggered (with
respect to air flow direction) in case of
L
min (s. above) not to be met
very flat by tilting the steam manifold 30 - 45°
towards the air flow direction, the mini-
mum upper clearance can be reduced
to 70 mm/2.8 inch.
Min[mm/inch] H1 H2
30° 45°
DN25/1“ 182/7.2 168/6.6 225/8.6
DN40/1 1/2“ 193/7.6 179/7.2 230/9.1
narrow, high identical lenghts one on top of the other,
staggered laterally if possible
square identical lengths, staggered vertically
and laterally
low, very
wide
facing each other
Air flow
direction
Air flow
direction
Air flow
direction
narrow channel

Table of Contents

Related product manuals