EasyManua.ls Logo

IBC SL 10-85 G3 - 20-160 G3

IBC SL 10-85 G3
124 pages
Print Icon
To Next Page IconTo Next Page
To Next Page IconTo Next Page
To Previous Page IconTo Previous Page
To Previous Page IconTo Previous Page
Loading...
SL20-160 G3
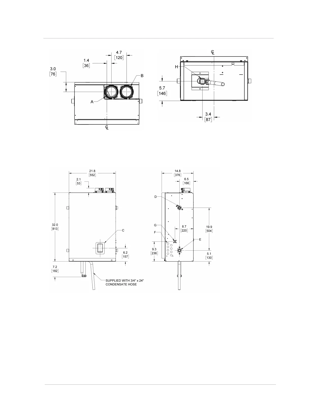
Figure 4 : Front and side view - SL20-160 G3
7
SL20-160 G3

Table of Contents

Other manuals for IBC SL 10-85 G3

Related product manuals