EasyManua.ls Logo

Icom IC-718 - Wiring Diagram

Icom IC-718
54 pages
Print Icon
To Next Page IconTo Next Page
To Next Page IconTo Next Page
To Previous Page IconTo Previous Page
To Previous Page IconTo Previous Page
Loading...
11 - 1
1
2
3
4
5
6
7
8
9
10
11
12
13
14
15
16
J3
GND
W4
1
2
3
4
5
6
7
8
9
10
11
12
13
14
15
16
J4101
1
2
3
4
5
6
7
8
9
10
11
12
13
14
15
16
17
18
19
20
21
22
23
24
25
26
27
28
29
30
J4401
CHASSIS
1
2
3
4
5
6
7
8
9
10
11
12
13
14
15
16
17
18
19
20
21
22
23
24
25
26
27
28
29
30
J6
W2
FRONT UNIT
+5V
SEN1
SEN2
GND
1
2
3
4
J1
1
2
3
4
S1
LOGIC
UNIT
EP1
SENSOR
+5V
SEN1
SEN2
GND
MAIN UNIT
5V
8V
8V
HV
14V
14V
MICE
MIC
FSKK
SEND
SQLS
PHOE
PHOE
PHO
PHO
CIVE
CIV
ALMS
STRT
GND
GND
GND
GND
SPS
SEND
SEND
SEND
SNDS
NC
GND
GND
PWS
14V
14V
14V
14V
ICL
ICH
HV
STAR
KEY
TEMP
14V
P1
P2
W6
W7
J1
PAT8
PA UNIT
J6
J7
P3
GND
GND
GND
PWS
14V
14V
14V
14V
14V
ICL
ICH
STAR
KEY
TEMP
PAT8
1
2
3
4
J13
J1
2
3
4
1
J12
KEY
STAR
14V
GND
HV
GND
GND
HV
ASC2
ASC1
FILTER
UNIT
T13V
GND
REF
L3
FOR
L5
L4
L2
L1
L6
1
2
3
4
5
6
7
8
9
10
J1
W8
W9
P4
J2
W5
1
2
3
4
5
6
7
8
9
10
J4001
T13V
GND
REF
L3
FOR
L5
L4
L2
L1
L6
KEY
DOTK
DASK
VOXL
AVXL
SML
ALML
REFL
FORL
PATL
BEEP
DNB
RXS
TXS
SBSY
KDS
1
2
3
4
5
6
7
8
9
10
11
12
13
14
15
16
17
18
19
20
21
22
23
24
25
26
27
28
29
30
J4201
GND
GND
AFGL
GND
RFGL
GND
RITL
GND
SFTL
GND
5VL
1
2
3
4
5
6
7
8
9
10
11
12
13
14
15
16
17
18
19
20
21
22
23
24
25
26
27
28
29
30
J7
W3
5V
8V
8V
HV
14V
14V
MICE
MIC
FSKK
SEND
SQLS
PHOE
PHOE
PHO
PHO
CIVE
CIV
ALMS
STRT
GND
GND
GND
GND
SPS
SEND
SEND
SEND
SNDS
NC
KEY
DOTK
DASK
VOXL
AVXL
SML
ALML
REFL
FORL
PATL
BEEP
DNB
RXS
TXS
SBSY
KDS
GND
1
2
3
4
5
6
7
8
9
10
J3
W3
1
2
3
4
5
6
7
8
9
10
J1
GND
AFGL
GND
RFGL
GND
RITL
GND
SFTL
GND
5VL
VR BOARD
MIC BOARD
PHONE
BOARD
J1
1
2
3
4
5
6
7
8
9
10
J5
W4
W5
1
2
3
4
5
6
7
8
9
10
J4
1
2
3
4
5
6
7
8
9
10
J2
MIC
MICE
GND
AFO
SEND
SQLS
UD
8V
W1
DSPS
DSST
SSTB
DINT
DRES
ASTB
MSTB
FSTB
BSTB
MCK
MDAT
POWS
GND
GND
GND
GND
AFO
AFE
AFE
AFE
GND
DSPS
DSST
SSTB
DINT
DRES
ASTB
MSTB
FSTB
BSTB
MCK
MDAT
POWS
GND
GND
UT-106 (OPT)
P6
P5
W10
W11
J701
W2
J14
J3
R1
1234
1234
ANT
FAN+
FAN-
1
2
3
J3601
FAN
1
2
3
P1
ALC
SQLS
SEND
MOD
13.8V
8V
GND
J4801
ALC
GND
BDT
AFO
ACC
FSKK
KEY
BAND
ALC
2
12
7
3
4
11
1
10
6
5
13
8
J4651
12
J2601
1234
1
234
P2601
123
4
J2602
1
2
3
4
5
6
7
8
9
10
J2603
PLL UNIT
1
2
J2
1st LO
2nd LO
BFO
1
2
J2001
1
2
J1
1
2
J201
1
2
J401
1
2
J4
1
2
P3
1
2
P1
1
2
P4
1
2
P2
1
2
P5
W102
W101
W105
W106
W103
W104
GND
8V
13V
13V
13V
DNB
PSTB
DSTB
PCK
PDAT
CON2
CON1
CON0
FSKK
SRST
1LO
1LOE
2LO
2LOE
BFO
BFOE
1LO
1LOE
2LO
2LOE
BFO
BFOE
1
2
3
4
5
6
7
8
9
10
11
12
13
14
15
16
J3
NC
AFO
AFO
ESPO
ESPO
ESPO
1
2
3
4
5
6
7
8
9
10
11
12
13
14
15
16
J9
GND
8V
13V
13V
13V
DNB
PSTB
DSTB
PCK
PDAT
CON2
CON1
CON0
FSKK
SRST
NC
AFO
AFE
AFE
AFE
GND
AFO
AFO
ESPO
ESPO
ESPO
SP1
W1, W2
SP
1
2
J4502
1
2
P1
UT-102
(OPT)
SPCE
SPCH
5V
GND
DRES
DINT
DSST
MDAT
MCK
DSPS
GND
SPE
GND
MDA
SBS
SST
MC
SPO
1
2
3
4
5
6
7
8
J2501
DOUT
DOE
DOUT
DOE
SEND
J5001
J5101
REMOTE
DASK
CIV
CIVE
GND
ESPO
SPE
EXT SP
J4501
SEND
ELEC-KEY
DOTK
GND
1
2
3
4
5
6
1
2
4
3
56
7
9
11
10
8
12
13
GND
GND
9
1
2
3
4
5
6
7
8
910
HV
J1
UD
8V
MIC
MICE
GND
SEND
AFO
SQLS
GND
GND
10
9
8
7
6
5
4
3
2
1
J2
1
8
7
6
4
3
2
5
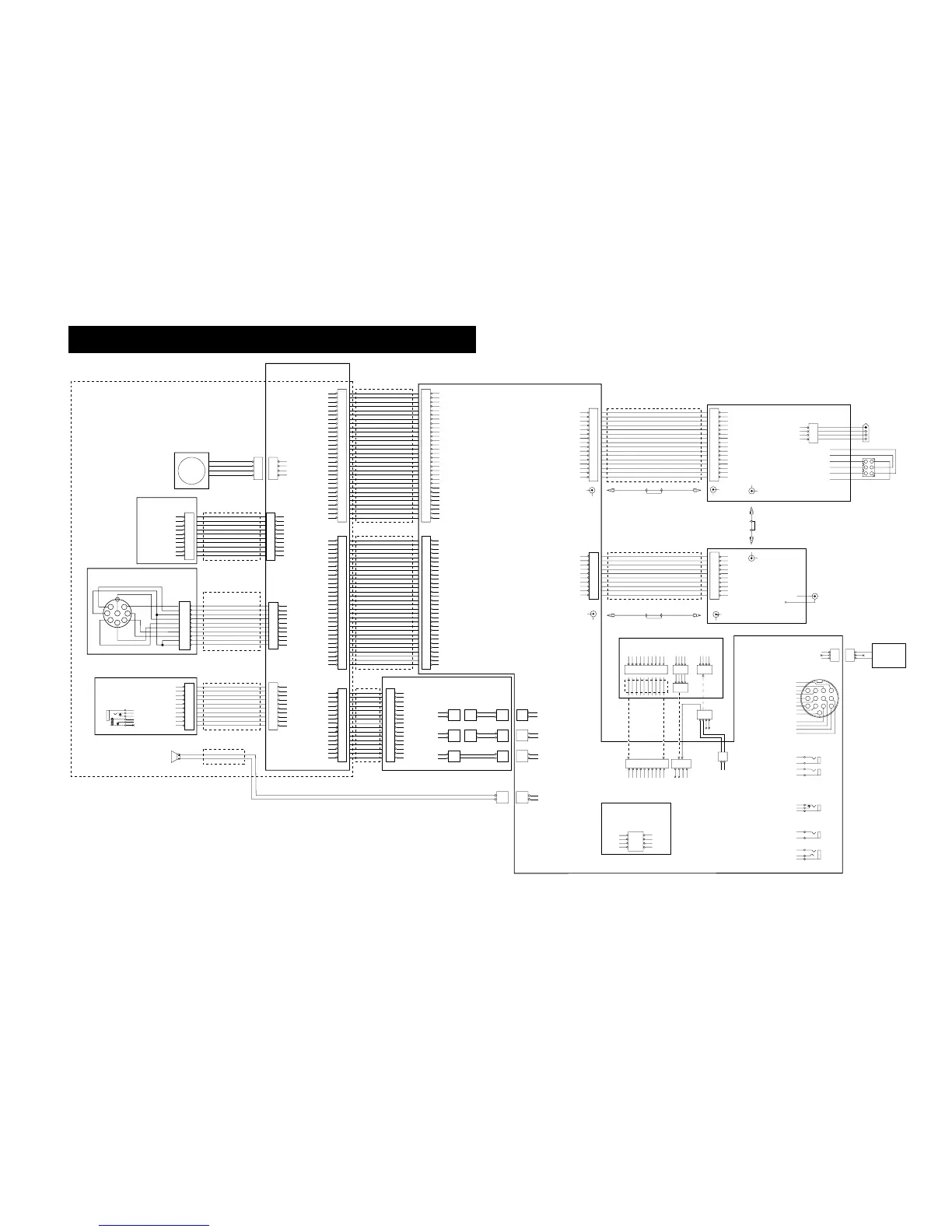
SECTION 11 WIRING DIAGRAM

Other manuals for Icom IC-718

Related product manuals