EasyManua.ls Logo

Icom IC-A25NE - Page 35

Icom IC-A25NE
90 pages
Print Icon
To Next Page IconTo Next Page
To Next Page IconTo Next Page
To Previous Page IconTo Previous Page
To Previous Page IconTo Previous Page
Loading...
(Amended page)
March 2019
The underlined parts have been updated from the previous version of the addendum, or the original page.
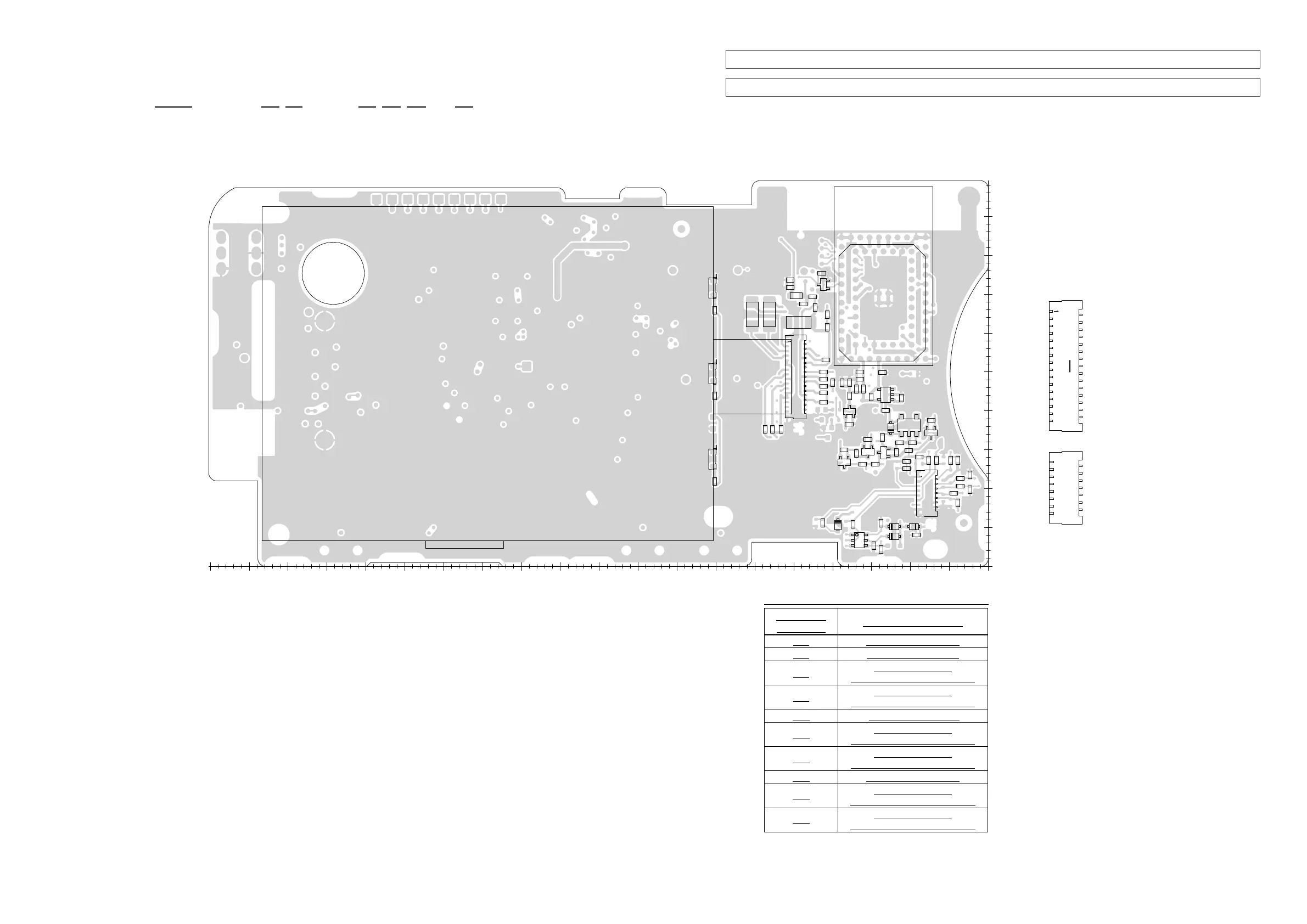
The actual configuration of the PC board can be seen by viewing the top and bottom BOARD LAYOUT pages together.
See the PARTS LIST H/V location on the PARTS LIST for location details.
7-5a
B-8848
PCON
VCC
G-RXD
G-TXD
FINED
RESET
BTTXD
BT RST
CPU3V
BTRXD
BT SW
GND
R1077
R1073
R1072
R1071
R1070
R1069
R1068
R1067
R1066
R1065
R1064
R1063
R1060
R1056
R1055
R1054
R1053
R963
R952
R949
R947
R920
R917
R878
R876
R866
R863
R152
R148
R147
R146
R145
R26R25
EP19
EP16
EP14
EP13
EP12
EP11
EP10
C725
C708
C705
C704
C703
C696
C695
C693
C667
C666
C649
C648
C161
C159
C158
C157
C156
C155
C16
C2
C1
R151
Q34
Q33
Q32
Q31
Q17
Q5
J4
J2
IC39
IC30
IC1
DS4DS3DS2
D46
D4
D2
D1
C664
C663
C662
C643
H0H5H10H15H20H25H30H35H40H45
V0 V5 V10 V15 V20 V25 V30 V35 V40 V45 V50 V55 V60 V65 V70 V75 V80 V85 V90 V95 V100
D5D6
GND
GND
KS3
KS1
KR4
KR2
KR0
GND
KEYLIGHT
PWRBTN
KS2
KS0
KR3
KR1
GND
NC
CPU3V
CPU3V
GND
LCDA0
CPU3V
LCDSCL
LCDSDA
CPU3V
CPU3V
NC
NC
NC
NC
CPU3V
GND
GND
LCDCSB
CPU3V
LCDRSTB
LCDSDA
LCDSDA
CPU3V
CPU3V
NC
NC
J2
J4
J2 J4
The serial numbers of transceivers used this PCB.
VERSION
NUMBER
SERIAL NUMBERS
#13 13002001 and above
#14 14001051 and above
#16
Future production
(Plan: 16001001 and above)
#17
Future production
(Plan: 17001001 and above)
#23 23001901and above
#24
Future production
(Plan: 24001001 and above)
#27
Future production
(Plan: 27001001 and above)
#33 33001001 and above
#34
Future production
(Plan: 34001001 and above)
#36
Future production
(Plan: 36001001 and above)
LOGIC-1 UNIT (B-8848 for #13, #14, #16, #17, #23, #24, #27, #33, #34, and #36: TOP VIEW)

Other manuals for Icom IC-A25NE

Related product manuals