EasyManua.ls Logo

Ideal Boilers Esprit 2 - Introduction, Operation, and Safety

Ideal Boilers Esprit 2
72 pages
Print Icon
To Next Page IconTo Next Page
To Next Page IconTo Next Page
To Previous Page IconTo Previous Page
To Previous Page IconTo Previous Page
Loading...
6
ESPRIT 2 - Installation and Servicing
GENERAL
INTRODUCTION
The ESPRIT 2 range of boilers are wall mounted, full sequence, automatic
spark ignition, low water content, fanned flue, high efficiency, condensing,
combination gas boilers. A seven day programmer is built into the boiler,
capable of 3 timed periods per day.
Note.
Due to the high efficiency of the boiler a plume of water vapour will form
at the terminal during operation.
Central heating (CH) output is fully modulating with a range of 8.8 to 23.4kW
(30,000 to 80,000 Btu/h. Instantaneous domestic hot water (DHW) output is
also fully modulating with a maximum of :
24 23.4kW (80,000 Btu/h)
30 29.3kW (100,000 Btu/h)
35 35.2kW (120,000 Btu/h)
The boiler is supplied fully assembled with DHW plate heat exchanger,
diverter valve, circulating pump, pressure gauge, safety valve and CH
expansion vessel.
Variable CH and DHW temperature controls are fitted on the user control and
the boiler features a DHW preheat facility. The boiler casing is of white
painted mild steel with the user controls capable of being mounted remotely
from the boiler if the option is required.
The boiler temperature controls are visible at the bottom RHS of the front
panel. The heat exchanger is of cast aluminium.
The boiler is suitable for connection to fully pumped, sealed water systems
ONLY. Adequate arrangements for completely draining the system by
provision of drain cocks MUST be provided in the installation pipework.
Pipework from the boiler is routed downwards as standard, but may be routed
upwards behind the boiler using the stand-off frame (supplied in a separate
kit).
OPERATION
With no demand for CH, the boiler fires only when DHW is drawn off, or
periodically for a few seconds without any DHW draw-off, in order to maintain
the DHW calorifier in a heated condition.
When there is a demand for CH, the heating system is supplied at the
selected temperature of between 30
o
C and 82
o
C, until DHW is drawn off.
The full output from the boiler is then directed via the diverter valve to the
plate heat exchanger to supply a nominal DHW draw-off of
24 9.6 l/min at 35
o
C temperature rise.
30 12 l/min at 35
o
C temperature rise.
35 14.4 l/min at 35
o
C temperature rise.
The DHW draw off rate specified above is the nominal that the boiler flow
regulator will give. Due to system variations and seasonal temperature
fluctuations DHW flow rates/temperature rise will vary, requiring adjustment at
the draw off tap.
At low DHW draw-off rate the maximum temperature is limited to 65
o
C by the
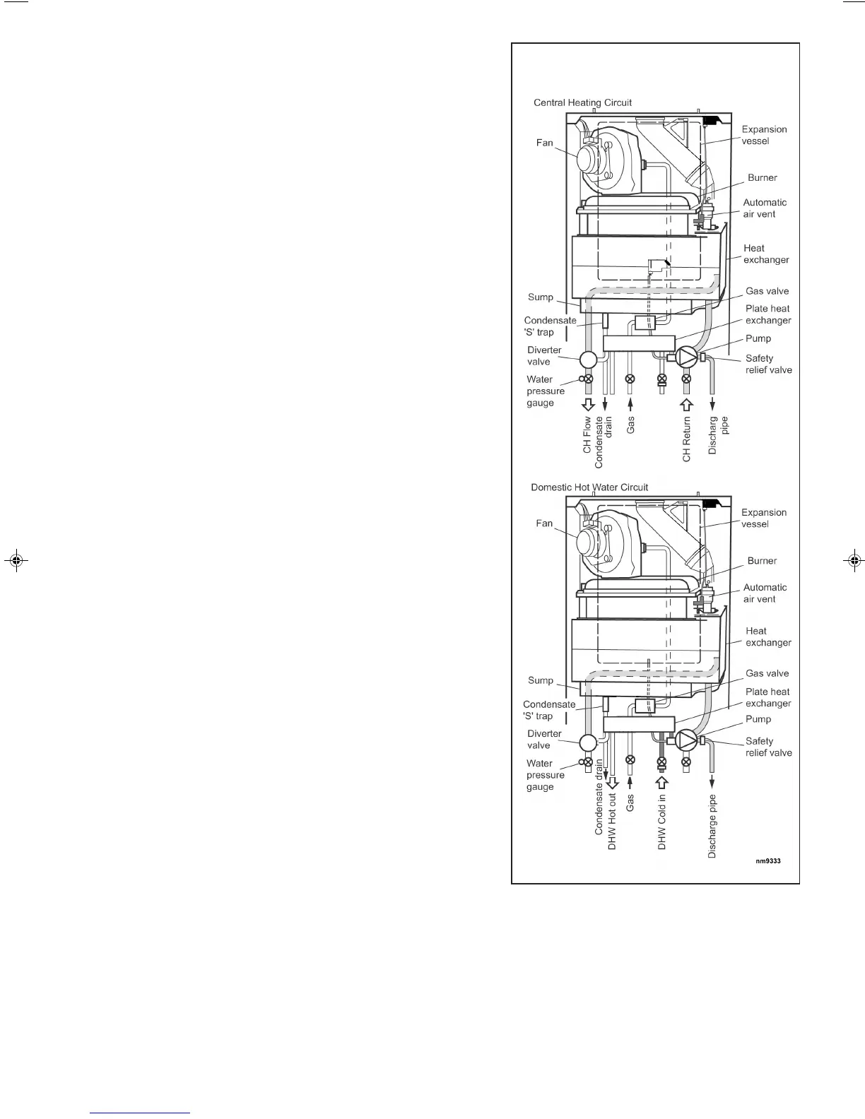
modulating gas control. Refer also to Frame 1 - 'Boiler Water Circuit
Diagrams'
An additional feature incorporated within the boiler controls is boiler frost
protection. If the flow temperature drops below 7
o
C the pump will run. If the
temperature continues to drop and goes below 4
o
C, the boiler will fire until the
temperature exeeds 7
o
C.
The boiler features a comprehensive diagnostic system which gives detailed
information on the boiler status when operating, and performance of key
components to aid commissioning and fault finding.
SAFE HANDLING
This boiler may require 2 or more operatives to move it to its installation site,
remove it from its packaging base and during movement into its installation
location. Manoeuvring the boiler may include the use of a sack truck and
involve lifting, pushing and pulling. Caution should be exercised during these
operations.
Operatives should be knowledgeable in handling techniques when performing
these tasks and the following precautions should be considered:
Grip the boiler at the base.
Be physically capable.
Use PPE as appropriate, e.g. gloves, safety footwear.
During all manoeuvres and handling actions, every
attempt should be made to ensure the following
unless unavoidable and/or the weight is light.
Keep back straight.
Avoid twisting at the waist.
Avoid upper body/top heavy bending.
Always grip with the palm of the hand.
Use designated hand holds.
Keep load as close to the body as possible.
Always use assistance if required.
1
BOILER WATER
CIRCUIT DIAGRAMS
206091-1.pmd 26/05/2010, 16:076

Related product manuals