EasyManua.ls Logo

Immergas EOLO Superior PLUS 24 - Page 4

Immergas EOLO Superior PLUS 24
27 pages
Print Icon
To Next Page IconTo Next Page
To Next Page IconTo Next Page
To Previous Page IconTo Previous Page
To Previous Page IconTo Previous Page
Loading...
Technical documentation Technical documentation
STESP ed 02/02
4
EOLO SUPERIOR PLUS
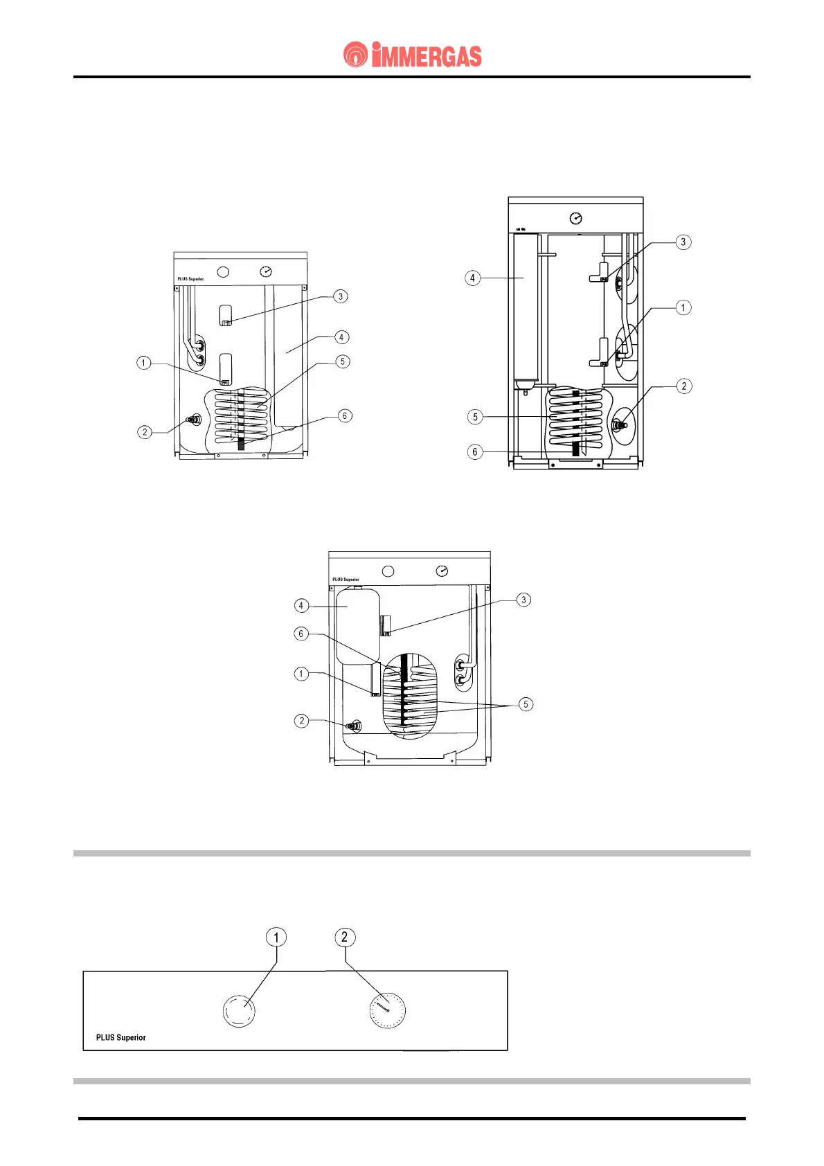
PLUS STORAGE TANK MAIN COMPONENTS
Storage tank 80 l Storage tank 105 l
Storage tank 120 l
1 - D.h.w. NTC sensor
2 - D.h.w. drain valve
3 - Thermometer
4 - D.h.w. expansion vessel
5 - Coil
6 - Anode
CONTROL PANEL
1 - Storage-tank ON-OFF
thermostat setting cap
2 - Storage tank thermometer

Related product manuals