EasyManua.ls Logo

Immergas Maior Eolo 24 4E - Page 15

Immergas Maior Eolo 24 4E
36 pages
Print Icon
To Next Page IconTo Next Page
To Next Page IconTo Next Page
To Previous Page IconTo Previous Page
To Previous Page IconTo Previous Page
Loading...
15
4
6
5
1
3
2
7
8
5
9
7
A
S
C82
1-22
C42
C52
1-23
1-25
C82
1-24
INSTALLERUSER
MAINTENANCE TECHNICIAN
Maximum usable length
(including intake terminal with grill and two 90° bends)
NON INSULATED PIPE INSULATED PIPE
Exhaust (m) Intake (m) Exhaust (m) Intake (m)
1 36,0* 6 29,5*
2 34,5* 7 28,0*
3 33,0* 8 26,5*
4 32,0* 9 25,5*
5 30,5* 10 24,0*
* e air intake pipe can be increased to 2.5 metres if the exhaust bend is
eliminated, 2 metres if the air intake bend is eliminated, and 4.5 metres
eliminating both bends.
11 22,5*
12 21,5*
• Extension pipes and elbows push-ttings. To
install push-tting extensions with other ele-
ments of the ue extraction elements assembly,
proceed as follows: engage the pipe or elbow
with the male side (smooth) in the female
section (with lip seal) up to the stop on the
previously installed element. is will ensure
sealing eciency of the coupling.
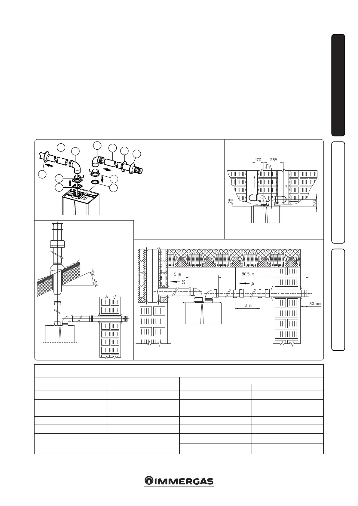
• Installation clearances. Figure 1-22 gives the
min. installation space dimensions of the
Ø80/80 separator terminal kit in limited
conditions.
• Figure 1-23 shows the conguration with ver-
tical exhaust and horizontal intake.
Extensions for the separator kit Ø80/80. e
max. vertical straight length (without bends)
that can be used for Ø80 intake and exhaust
pipes is 41 metres of which 40 intake and 1
exhaust. The total length corresponds to a
resistance factor of 100. e total usable length
obtained by adding the length of the intake and
exhaust pipes Ø80, must not exceed the values
stated in the following table. If mixed accesso-
ries or components are used (e.g. changing from
a separator Ø80/80 to a concentric pipe), the
maximum extension can be calculated by using
a resistance factor for each component or the
equivalent length. e sum of these resistance
factors must not exceed 100.
Temperature loss in flue ducts. To prevent
problems of ue gas condensate in the exhaust
pipe Ø80, due to ue gas cooling through the
wall, the length of the pipe must be limited to
just 5 m. (Fig. 1-25). If longer distances must
be covered, use Ø80 pipes with insulation (see
insulated separator kit Ø80/80 chapter).
N.B.: when installing the Ø80 ducts, a section
clamp with pin must be installed every 3metres.
e kit includes:
N°1 - Exhaust gasket (1)
N°1 - Flange seal (2)
N°1 - Female intake ange (3)
N°1 - Female exhaust ange (4)
N°2 - 90° bend Ø 80 (5)
N°1 - Intake terminal Ø 80 (6)
N°2 - Internal wall sealing plates (7)
N°1 - External wall sealing plate (8)
N°1 - Exhaust pipe Ø 80 (9)
Important: if installation requires extending the ue ttings up to the exhaust a length that exceeds the 12 m recommended, it is necessary to properly
consider the possibility that condensation may form inside the duct and therefore Immergas “Serie Blu” insulated ue ttings, or other ue ttings with
similar characteristics, should be used.

Table of Contents

Other manuals for Immergas Maior Eolo 24 4E

Related product manuals