EasyManua.ls Logo

Immergas VICTRIX PRO V2 EU - Page 77

Immergas VICTRIX PRO V2 EU
144 pages
Print Icon
To Next Page IconTo Next Page
To Next Page IconTo Next Page
To Previous Page IconTo Previous Page
To Previous Page IconTo Previous Page
Loading...
VICTRIX PRO V2 EU
77
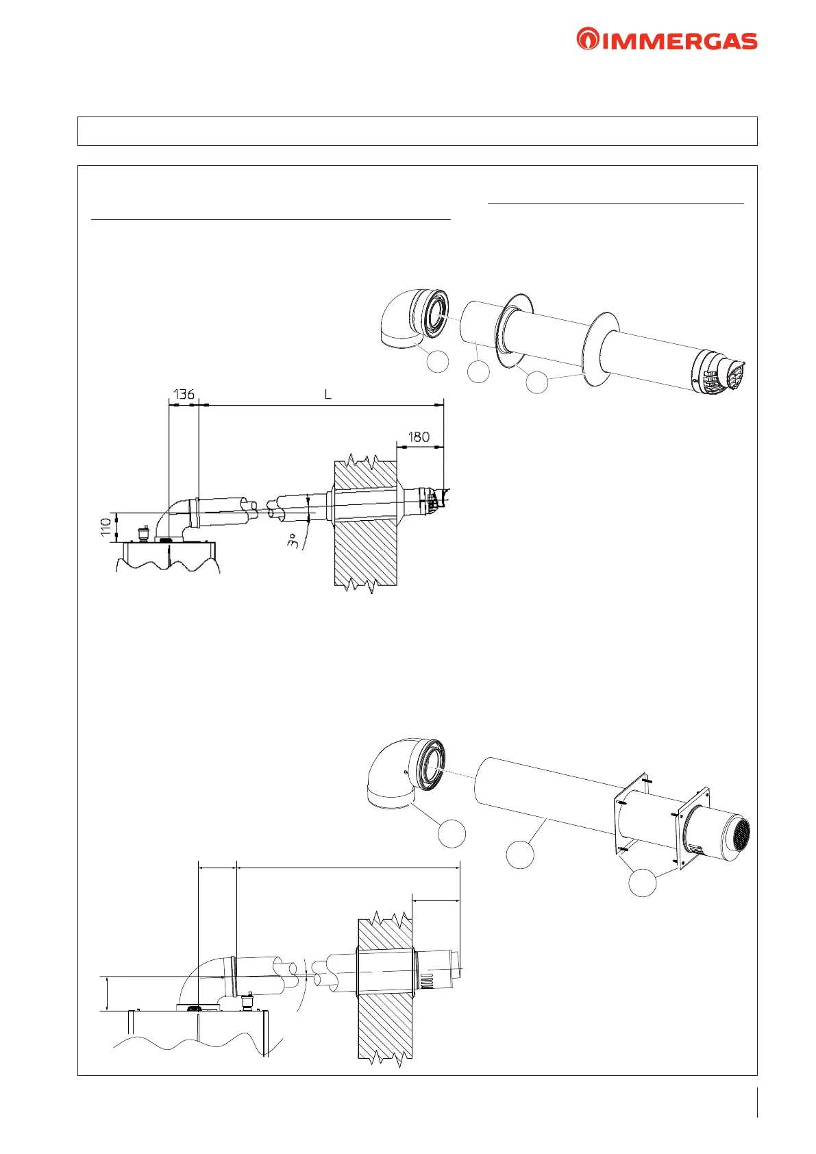
24.2 HORIZONTAL CONCENTRIC KIT
1
2
3
Key:
1 - n. 1 87° concentric bend Ø 80/125 or Ø 110/160
2 - n. 1 concentric intake/exhaust terminal Ø 80/125 or Ø 110/160
3 - n. 2 silicone wall sealing plates or n. 2 wall terminal plates
1
2
3
Ø80/125 HORIZONTAL CONCENTRIC
Ø 80/125  COD: 3.033785
Models:
VICTRIX PRO V2 35 EU
VICTRIX PRO V2 55 EU
VICTRIX PRO V2 60 EU
VICTRIX PRO V2 68 EU
VICTRIX PRO V2 80 EU
Ø110/160 HORIZONTAL CONCENTRIC
KIT CODE: 3.033789
Models:
VICTRIX PRO V2 100 EU
VICTRIX PRO V2 120 EU
VICTRIX PRO V2 150 EU
To calculate the length of the ue, simply add the corresponding “length equivalent to 1 m of pipe” value for each component
to be used until the maximum allowed length for each product is reached. ese data are provided in the specic technical
documentation supplied with each “Use and maintenance booklet”.
e maximum length that can be travelled"L" are displayed in the summary tables on pages 88 and 89.
L
185
160
145

Related product manuals